Na vrtu frančiškanskega samostana v središču Ljubljane stoji konvikt, nekdanji dom za bogoslovce – pripravnike za duhovniški poklic. Kljub precejšnjemu volumnu se ob sprehodu skozi mesto skriva pred pogledi z obeh najbližjih ulic, Čopove in Nazorjeve. Od Čopove ulice jo loči niz trgovskih stavb (del daljšega niza iz prve polovice 19. stoletja), z Nazorjeve pa pogled nanjo zakriva dolga nizka stavba, postavljena po severnem robu samostanskega vrta (zgrajena pred 2. svetovno vojno po načrtih Lada Khama).
Odmaknjenost od živahnega uličnega dogajanja v vrt samostana je povsem skladna s prvotno namembnostjo stavbe, zgrajene konec 19. stoletja. V petdesetih letih 20. stoletja so uredili dodatne sobe še na podstrešju, v naslednjih desetletjih pa je bilo bogoslovcev čedalje manj in prostori so ostajali neizkoriščeni. Vodstvo samostana je želelo ponovno odpreti študentski dom širšemu krogu študentov, za kar je bila potrebna prenova in prilagoditev stavbe sodobnim standardom. Vodenje projekta so zaupali arhitekturnemu biroju Kombinat.

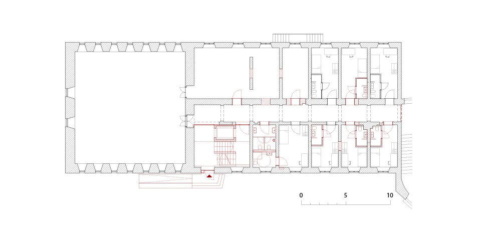
Vhod v študentski dom je urejen z dvorišča, skritega za lokali Čopove ulice. Betonski nadstrešek nad vhodom je igrivo dvoumen: od zunaj je videti, kot da se fasada privzdigne in ustvari vhod, od znotraj pa je oblikovan kot nadaljevanje stopniščnega podesta. Klop ob dostopni klančini in elementi iz hrastovega lesa v vhodnem delu (ročaj vrat, obloga stene) zbujajo občutek domačnosti.



Vhod vodi na podest novosezidanega stopnišča, s katerim so zagotovili, da stavba deluje neodvisno od preostalega dela samostana. Za ureditev stopnišča in vhoda se je bilo potrebno odpovedati po dvema sobama v vsakem nadstropju. Prvotna želja naročnika je sicer bila, da bi stopnišče dogradili kot prizidek, vendar so arhitekti na ta način našli pragmatično rešitev znotraj obstoječega volumna. Dvigalo so umestili na notranjo stran stopniščnega volumna, ob osrednji vzdolžni hodnik, s čimer so na podstrešju našli prostor tudi za strojnico dvigala, ki bi v nasprotnem primeru zahtevala dodaten volumen na strehi. Umestitev dvigala ustvarja vertikalne medetažne prostorske preplete v stopnišču in omogoča velike steklene površine, ki prepuščajo svetlobo v hodnike. Stopnišče je zelo svetlo, tudi zaradi izbire materialov: surov beton z brušenimi zgornjimi površinami je kombiniran z belo kovinsko ograjo stopnic.
Zanimiv pa je tudi dialog med novim stopniščem na eni stani hodnika in historičnim stopniščem samostana na drugi. Če prvo odgovarja na sodobno rabo in razumevanje stopnišča kot sredstva za prehajanje med nadstropji, je staro samostansko stopnišče prostorsko veliko razsežnejše. Ni le prostor prehoda, ampak tudi srečevanj in komunikacije. Lahko bi celo rekli, da gre za vertikalno dvorano.



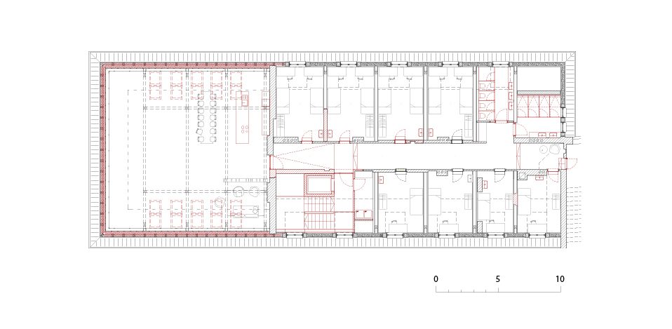
V študentskih sobah so arhitekti poskrbeli za različne prilagoditve sodobnim bivalnim standardom: uredili so kopalnice in kuhinje za študente, poskrbeli za prenovo stavbnega pohištva ter za grafično poenotenje oznak. Prej neizkoriščen del podstrešja so preuredili v velik skupni prostor za druženje stanovalcev.
Skoraj tretjino stavbnega volumna konvikta pa zavzema samostanska knjižnica, ki praznuje 790-letnico delovanja, s čimer velja za najstarejšo knjižnico na Slovenskem. Hrani kar 70.000 enot knjig in drugega gradiva, med drugim Dalmatinovo Biblijo s podpisom Primoža Trubarja in prvi izvod Krsta pri Savici s Prešernovim posvetilom. Knjižnico ter muzej s pinakoteko, kjer si je mogoče ogledati najdragocenejše predmete in slike iz samostanske zbirke, so bratje frančiškani ob prenovi študentskega doma odprli za javnost. Čeprav je knjižnica del na novo urejene celote, ni bila v sklopu del, ki so jih načrtovali v studiu Kombinat.
Prenova konvikta je tako z relativno majhnim posegom dosegla veliko: javnosti je predstavila izjemno kulturno dediščino ter zagotovila nove, kvalitetne sobe za študente v samem središču mesta.

Tloris pritličja

Tloris mansarde

Vzdolžni prerez

Prečni prerez

Južna fasada
Ime projekta: Konvikt frančiškanskega samostana na Prešernovem trgu v Ljubljani
Avtor projekta: kombinat.
Lokacija: Prešernov trg 4, Ljubljana
Leto načrtovanja: 2021–22
Leto izvedbe: 2022–23
Površine skupaj: 1036 m² neto, 2208 m² bruto
Neto površine po etažah:
Klet: 97 m²
Pritličje: 259 m²
Nadstropje: 260 m²
Podstrešje: 420 m²
Parcela: 828 m²
Pozidana površina: 552 m²
Projektanti:
Gradbene konstrukcije: Valide d.o.o.
Elektro inštalacije: Winky d.o.o.
Strojne napeljave: Projekt Rant, Boštjan Rant s.p.
Izvajalci:
Izvajalec gradbeno-obrtniških del: Gradnje Moste d.o.o.
Izvajalec strojnih inštalacij: Sanitar d.o.o.
Izvajalec elektro inštalacij: Elektro Zavodnik d.o.o.
Notranja oprema:
Mizarska dela (kuhinje, sobe): Mizarstvo Vižmarje d.o.o.
Stavbno pohištvo: Alu projekt d.o.o.
Notranja vrata: Markelj oprema d.o.o., Kržišnik Slavko s.p.
Foto: Jana Jocif
Napisal: Patrik Benedičič
Naročite se lahko v spletni trgovini ali pa nam pišite na: [email protected]
Hvala!



