Arhitekta Lena in Tomaž Krušec sta pred dobrim desetletjem odprla arhitekturno pisarno, ki je v razmeroma kratkem obdobju svojega delovanja zaslužna za mnoga presežna arhitekturna dela, ki se uvrščajo v sam vrh sodobne slovenske arhitekture. Ne glede na vrsto programa, bodisi da je govora o infrastrukturnem objektu, univerzitetnem poslopju bodisi pietetnem obeležju, rešujeta arhitekta svojo nalogo vselej z izjemno strokovno predanostjo ter z izrednim občutkom za upoštevanje duha kraja ter časa. Svoj značilen pristop k reševanju prostorskih problemov uspešno uveljavljata tudi izven meja Slovenije.
Krušec arhitekti – Tomaž in Lena Krušec ter Vid Kurinčič – so danes prejeli Prešernovo nagrado.
***
Z aktivnim delom v biroju sta pričela v letih največje gospodarske rasti, a se uspešno spopadata tudi s prisotno naložbeno krizo v gradbeništvu. Je mogoče ob pričakovanju njenega konca začutiti občutek olajšanja ter povečanega optimizma tudi pri vajinih kolegih?
Že v samem začetku sva biro zasnovala kot manjšo pisarno s stalnima sodelavcema. Z njima, ter ob občasni zunanji pomoči, zmoremo opraviti večino tekočih projektov. Naš biro se tudi takrat, ko smo imeli največ dela ni prenapihnil, vedno smo ostali mali in morda tudi zato preživeli. Nikoli tudi nismo prevzeli preveč nalog naenkrat, saj že v osnovi verjamemo da se je potrebno vsakemu projektu temeljito posvetiti. Pridobivanje posla pa je terjalo, tako v času največje konjukture kot tudi v današnjih kriznih časih, veliko truda in napora, zato kakšnega prav posebnega splošnega olajšanja ni čutiti.
Pred krizo je bilo moč med slovenskimi investitorji zaznati izredno željo le po doseganju čim večjega števila uporabnih površin, pogosto na račun kvaltiete arhitekture ali prostora. Kakšna je vajina izkušnja z naročniki danes, ali so zaradi krize postali bolj racionalni in kritični?
Najin biro nikoli ni deloval špekulativno. To ob začetnih razgovorih začutijo tudi ljudje, ki morda k nama pridejo s takimi nameni, zato do takega sodelovanja nikoli ne pride. Naše sodelovanje s strankami vedno temelji na zaupanju. Imava specifične stranke, ki se jima posvetiva in v skupnem sodelovanju vedno najdemo rešitev, ki je tako prostorsko kot funkcionalno optimalna. Potrebno pa je vedno postaviti neke razumne meje, med tem kaj je še strokovno sprejemljivo in kdaj je morda potrebno tako sodelovanje prekiniti.
Čemu gre po vajinem mnenju pripisati tako velik razkorak med arhitektom ter naročnikom, oziroma kako da pri nas dobra arhitektura doseže le zgornjih nekaj procentov ljudi, največ projektov pa prevzamejo in vodijo gradbeniki. Bi se morali spremeniti in prilagoditi arhitekti sami, ali problem leži v sistemu izobraževanja, zakonodaji?
Za dobro arhitekturo je vedno potrebno imeti dobrega investitorja. V primeru ko je govora o človeku oziroma instituciji, ki dela za trg pa mora biti arhitekt toliko širok, da se zna pogovarjati tudi o finančni vzdržnosti določenega projekta. Investitorju je v tem pogledu potrebno prisluhniti in če je upoštevan potem tudi veliko lažje sprejme predlagane arhitekturne ideje. Žal pa v Sloveniji obstaja velik delež ljudi, ki imajo lastne specifične želje, niso pripravljeni prisluhniti strokovnemu mnenju in je z njimi tudi nemogoče sodelovati. Krivda za ta delež leži predvsem v izobraževanju. Tu obstaja neka luknja, saj ljudje ne poznajo sodobne arhitekture in hkrati ne vedo, kaj jim ta nudi. Veliko krivdo za nedavni upad kvalitetne arhitekture pa nosi tudi ukinitev instituta natečajev, ki je v prejšnem desetletju poskrbel za velik bum slovenske sodobne arhitekture, arhitekture ki je tudi zaobkrožila svet. Nenazadnje pa delež krivde za trenutno situacijo leži tudi v nas samih, saj ob priložnostih morda ne znamo dovolj enotno stopiti skupaj in izpostaviti problemov znotraj stroke.
Vajina pisarna je bila uspešna na mnogih mednarodnih natečajih, od Bratislave, Beograda, Zagreba, Prage. Kakšna je vajina izkušnja s tujino in ali se tovrstni prodor na trge izven naših meja arhitektom obrestuje, tako strokovno kot finančno?
Odločitvi za nastop na tujih trgih je botrovala predvsem že prej omenjena ukinitev natečajev, zato so se mnogi biroji, vključno z najinim, pričeli ozirati v tujino. Zmagati na natečaju v tujini pa je izjemno težko, saj je nezaupanje do tujcev precejšne. Treba je biti resnično zelo vztrajen, da ti uspe. Vendar, ko ti uspe prvič, je potem drugič lažje. Strokovno se tovrstne udeležbe na mednarodnih natečajih izjemno obrestujejo, saj predstavljajo nenehne “brainstorminge” ter procese, na katerih samega sebe preizkušaš ter izpopolnjuješ.Poleg tega pa v tujini nikoli ne deluješ sam, vedno si v povezavi z lokalnimi arhitekti, s katerimi tvoriš neko interdisciplinarno skupino in se na nek način učiš od njih ter oni od tebe.
Večkrat ob svoji arhitekturi uporabita pojem brezčasnosti. Z njim bi lahko opisali tudi vajina zadnja realizirana projekta, hišo na Golem pri Ljubljani ter objekte NZS v kompleksu Brdo pri Kranju. Kakšen mora biti arhitektov premislek, predvsem pri večjih in komericalnih objektih, da ne zaide v past konfekcijskih oziroma modnih rešitev?
Pri snovanju naše arhitekture je tisti ideal, ki ga gojimo, dejansko ta komponenta brezčasnosti To je nekaj kar iščemo tudi na naših potovanjih, ekskurzijah ter v raziskavah. Modne in hipne rešitve nas ne zanimajo toliko. Veliko bolj so zanimive stvaritve, ki jim težko določiš čas nastanka in tudi kdo je njihov avtor, saj meniva da hiša lahko zaživi svoje lastno življenje šele, ko se duh arhitekta odmakne v ozadje in šele takrat dobi ta potencial, da čez čas postane brezčasna.
Hiša na Golem je razščena iz terena. Spominja na balvan, ki na zemljini negibno vztraja že tisočletja. Nasprotno pa je v notranjosti hiša izredno razgibana ter ambientalna. Je mogoče trditi, da je ta napetost med tektoniko in dinamiko tema, ki se vije med vsemi vajnimi projekti in služi kot leitmotif vajine arhitekture?
Lokacija hiše je v veliki meri narekovala njeno končno podoobo. Na vmestitev hiše v lokacijo so vplivali tako izjemni pogledi proti okoliški naravi, kot sama razgibanost terena. Hiša je kot neopren, ki se povsem prileže dani lokaciji in željam investitorja ter resnično tvori omenjeno dinamično strukturo. Ko smo skopali gradbeno jamo smo bili soočeni z zelo specifično barvo kamnine. Še nikjer nismo videli tako lepo naloženih tektonskih zemljskih plasti. To je postala osnova za izvedbo betonske fasade, ki smo jo mesece betonirali po plasteh tako, da zgornja plast vedno vidno zateka preko spodnje. Na nek način smo tako naravi vrnili tisto kar smo ji s hišo odvzeli. Pri povezovanju hiše z okolico so izjemno pomembne lokacije okenskih odprtin. Šele natančno komponiranimi pogledi proti okolici stavbo dokončno neločljivo vpnejo v okolico. Izgled objekta je na koncu dejansko takšen kot, da dejansko zraste iz terena. Kot da na tem mestu stoji od nekdaj. Ta samoumevnost je za najino delo izjemno pomembna. Pri najinih projektih je vedno v ospredju odnos med notranjostjo in zunanjostjo, saj verjameva da notranjost definira tudi zunanjo podobo objekta, oziroma v kolikor hiša tega odnosa nima, lahko postane skulptura.
Kompleks NZS tvorita dve tipološki enoti, večnamenski športni objekt ter upravna stavba. Kakšen je bil premislek v ozadju povezovanja objektov v logično celoto?
Če tudi objekta na pogled delujeta zelo različno pa imata zelo podoben odnos do tega kako stojita v okolju. Skušali smo deseči kar se da neposreden stik narave in arhitekture. Na nek način mora vedno obstajati napetost med tem, kar je delo človeških rok in med tem kar je skozi tisočletja ustvarila narava. Na podoben način smo ustvarili tudi kontakt med notranjostjo in zunanjostjo. Upravni objekt deluje kot opazovalnica krajine, pri kateri so pisarne nameščene po celotnem obodu stavbe in imajo skozi stekleno fasado popolnoma odprte poglede. Skupni porostori pa so preko notranjega okroglega atrija, kateremu dominira kompozicija treh hruškovih dreves, orientirani na Kamniško-Savinjske Alpe. Slednje omogoča razprta geometrija stavbe, ki preko zunanjosti deluje sicer kot monolitni objekt, v notrajnosti pa je zasnova izjemno dinamična. Pri večnamenskem športnem objektu pa smo se želeli navezati na obstoječ nasip bivšega hipodroma, zato smo ga ponovili in vanj skrili pretežni del servisnih prostorov. S tem je pravzaprav večina objekta očem nevidna, izpostavljeni pa je zgolj VIP pavilijon na vrhu nasipa ter travnate tribune ob njem.
Za zaključek me zanima vajino mnenje o tem ali je arhitektura ena iz med ved, ki v družbenem življenju ustvarjajo trende in so generator ter pobudnik sprememb, oziroma ali arhitektura družbenim spremembam zgolj sledi ter na njih želi podati najboljše prostorske odgovore.
Misliva, da na to vprašanje ni mogoče dati enoznačnega odgovora, saj lahko arhitektura predstavlja oboje. Arhitektura zagotovo lahko generira nov način uporabe nekega prostora, kar je vidno tudi na primeru zapiranja Ljubljane za promet, kjer se je povsem spremenila percepcija mestnega jedra in z arhitekturnimi posegi omogočila njegovo drugačno uporabo. Nikakor pa arhitekture ne gre razumeti kot predmet trenudnih modnih trendov. Arhitekturo, ki jo ustvarjamo danes, bo na tem mestu po vsej verjetnosti stala še mnogo po tem, ko nas ne bo več. In prav zato je odgovornost arhitekta še toliko večja.
Pogovarjal se je: Aleš Gabrijelčič
HIŠA NA GOLEM
Hiša je umeščena v okolje sredi narave in bi s škatlasto zasnovo in fasado iz barvanega betona lahko delovala kot napaka. Vendar pa s premišljeno umestitvijo in inovativno tehnologijo fasadnega plašča deluje kot skala, ki je tam že od nekdaj in so jo arhitekti preoblikovali v družinsko hišo.


Novo realizacijo biroja smo izkoristili za priložnost za pogovor z Leno in Tomažem Krušcem.


Šele natančno komponirani pogledi proti okolici stavbo dokončno neločljivo vpnejo v okolico. Videz objekta je na koncu dejansko takšen, kot da bi ta dejansko zrasel iz terena. Kot da bi na tem mestu stal od nekdaj. Ta samoumevnost je za najino delo izjemno pomembna.




Za dobro arhitekturo je vedno treba imeti dobrega investitorja. Kadar je govor o človeku oziroma instituciji, ki dela za trg, pa mora biti arhitekt toliko širok, da se zna pogovarjati tudi o finančni vzdržnosti določenega projekta. Investitorju je v tem pogledu treba prisluhniti, in če je upoštevan, tudi veliko lažje sprejme predlagane arhitekturne ideje.


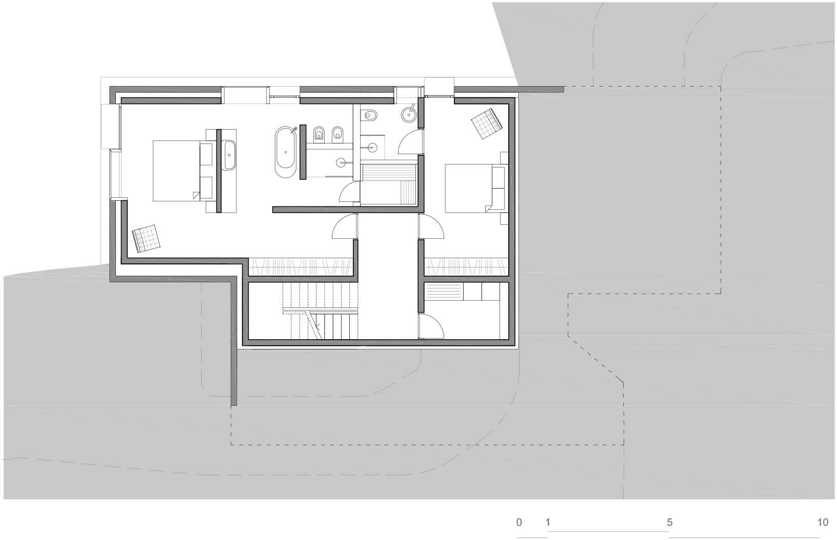
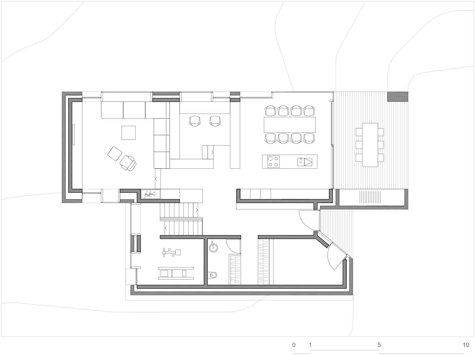
Notranjost hiše je višinsko razgibana. Bivalni prostor in jedilnica sta na različnih višinah. Središče prostora je prostor za študij, obdelan v lesu. Spalnice so umeščene v nižji nivo polvkopanega pritličja.






Ime projekta: Hiša na Golem
Arhitektura: ARK Arhitektura Krušec; Tomaž Krušec, Lena Krušec, Vid Kurinčič
Pritličje: 82 m²
Nadstropje: 138 m²
Parcela: 1315 m²
Pozidana površina: 244 m²
Investicija: 280.000 EUR
Projektanta gradbenih konstrukcij: dr. Franc Saje, Marko Saje
Projektant elektroinštalacij: Sebastjan Zelko
Projektant strojnih inštalacij: Peter Blažek
Glavni izvajalec gradbeno-obrtniških del: AS Invest, d. o. o
Pripravil: Aleš Gabrijelčič
Fotografije: Miran Kambič
*Celoten intervju preberite v aktualni številki revije Outsider. Z nakupom izvoda ali naročilom revije dobite v roke dobro branje, hkrati pa omogočite nastajanje tiskane revije in spletne strani.




