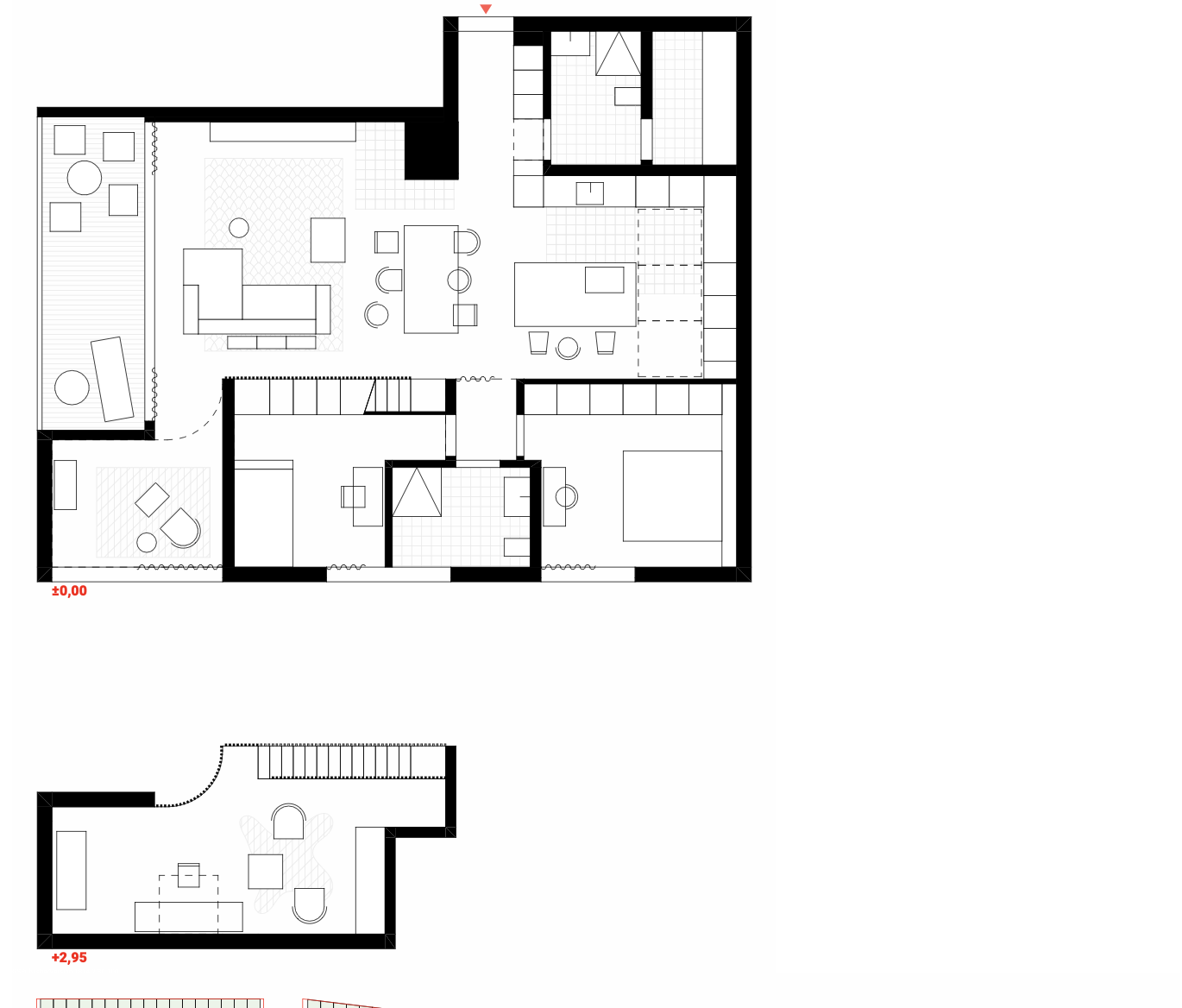
Stanovanje, locirano v mansardni etaži večstanovanjske stavbe, je zasnovano kot odgovor na možnosti mansardne konstrukcije, kjer višina prostora variira od 160 cm na nižjih delih do 5 m na najvišjem delu, kar omogoča diferencirano prostorsko organizacijo in vertikalno dinamiko.

Prostor je organiziran v tri longitudinalne pasove, ki zagotavljajo logično in funkcionalno razdelitev: vhodni pas obsega predprostor, WC in pralnico, kar zagotavlja ločeno območje za tehnične in sanitarni potrebe, medtem ko osrednji bivalni pas združuje kuhinjo, jedilnico in dnevno sobo v enoten volumen, ki je deljen na podcone z uporabo volumenskih elementov, in nazadnje spalni pas vključuje glavno spalnico, otroško sobo, kopalnico, večnamenski kabinet ter galerijo na zgornjem nivoju, kar optimizira vertikalno izrabo prostora.

Osrednji bivalni prostor je zaradi svoje velikosti in višine segmentiran v ločene volumne, ki definirajo funkcionalne cone. Strop je izpostavljen v surovem betonu, kar poudari industrijski značaj, medtem ko zavese od tal do stropa dodatno artikulirajo vertikalnost. Stena ob kaminu je ometana v belo in prilagojena za projekcijsko površino. Kot protiutež vertikalni dimenziji je v prostoru integriran 9 m dolg aluminijasti profil z reflektorji, nameščen na nižji ravni, kar uravnoteži percepcijo prostora.

Kamin, obložen z zelenimi keramičnimi ploščicami, reinterpretira tradicionalne slovenske peči z njihovimi reliefnimi motivi. Ploščice zagotavljajo teksturno in barvno kontinuiteto, hkrati pa kamin deluje kot centralni prostorski poudarek, ki presega zgolj funkcijo ogrevanja in prispeva k termični in vizualni stabilnosti bivalnega območja.

Stopnišče na galerijo je obloženo s površino iz hrastovega lesa, povezano z jeklenimi profili. Te hkrati služijo kot ograjni element za stopnišče in galerijo ter poudarjajo prostorski volumen, pod stopniščem pa so vgrajeni omarni sistemi, ki se odpirajo proti otroški sobi.

Funkcionalno delitev osrednjega prostora dosegamo s kamnitim kuhinjskim otokom, jedilno mizo iz vezane plošče ter zofnim sedežnim delom s preprogo. Ti elementi subtilno ločijo cone za pripravo hrane, prehranjevanje in sprostitev, pri čemer ohranjajo odprto prostorsko kontinuiteto.

V sodobno, minimalistično zasnovo so vključeni izbrani antikvitetni kosi: rustikalni ročaji, orientalska preproga, 150 let stari stoli, kredenca iz masivnega lesa in stare slike. Ti elementi dodajo teksturno plast in kontekstualno globino, ki uravnotežijo tehnično izčiščenost arhitekture.

Ta zasnova ponuja uravnoteženo rešitev za mansardno bivanje, kjer se funkcionalnost sreča z estetsko artikulacijo prostora.
Ime projekta: STANOVANJE BRDO
Avtor projekta: ATEKT – Rok Perme, Tim Zrimšek
Arhitektura stavbe: Coinhab arhitekti
Fotograf: Žan Vargek
Lokacija: Ljubljana
Leto načrtovanja: 2024
Leto izvedbe: 2025
Površine: 120 m2
Vgradno pohištvo, stopnišče: MIZARSTVO DACAR
Otok, pult: KAMNOSEŠTVO GRANITKO
Svetila: RAZKOŠJE SVETLOBE
Kamin: KAMINI KOČEVAR
Keramika: INTEXT
Strešna okna: VELUX
Pohištveni ročaji: GIUSTI



