V Triglavskem narodnem parku stoji naselje Radovna, ki je bilo požgano med drugo svetovno vojno. Le nekaj hiš je ogenj preživelo; ena izmed njih stoji tik ob rečni strugi, skrita za dvignjenim terenom na robu zaselka. Po letih propadanja in dotrajanosti se je lastnik odločil, da v sodelovanju z oblikovalskim studiem JVB Designworks domačijo obnovi. Poleg sanacije osrednje stavbe je projekt vključeval še odstranitev hudo dotrajanih pomožnih objektov. Arhitekti so obstoječo leseno lopo priključili h glavnemu volumnu domačije in tako za malenkost povečali njegovo površino. Zaradi omejitev in predpisov pri poseganju v Triglavski narodni park je morala hiša obdržati vse svoje zunanje lastnosti. Tako so dvokrilna lesena okna s polkni, vrata, leseni zatrepi, čopi in naklon strehe ostali oblikovno in materialno nespremenjeni ter so le obnovljeni oziroma po potrebi rekonstruirani.
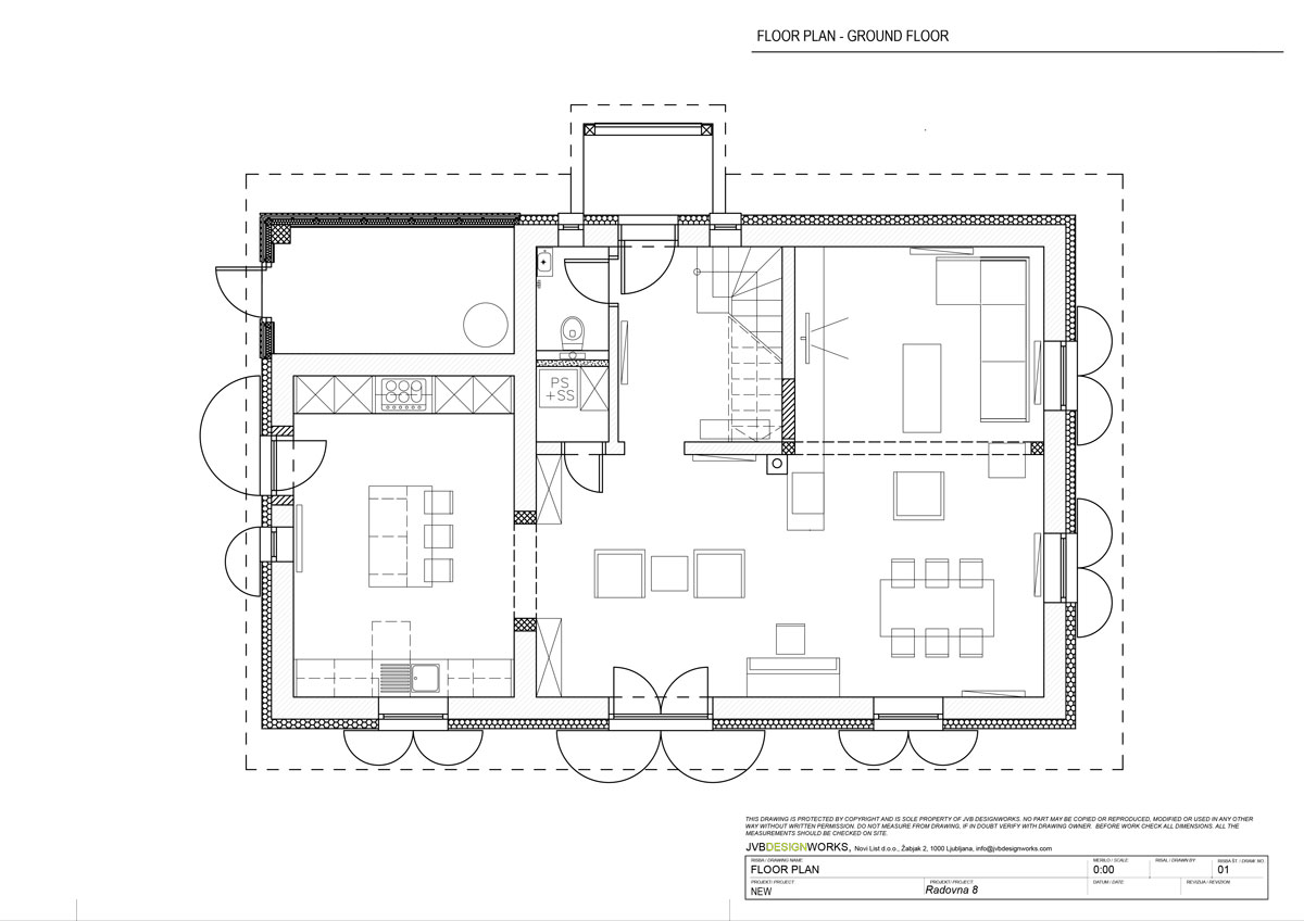
Vse zunanje stene in odprtine domačije so ohranile obstoječo postavitev, arhitekti pa so s porušitvijo nekaj notranjih sten ustvarili bolj odprto tlorisno zasnovo. Ko skozi nizka vhodna vrata vstopimo v hišo, se znajdemo v svetlem predprostoru, ki se nadaljuje do centralnega stopnišča, dnevnih sanitarij in širokega prehoda do bivalnih prostorov. Tu sta vogalno umeščeni jedilnica in dnevna soba s kaminom, obloženim s sivimi teksturiranimi ploščami, ki imitirajo skale v okolici domačije. Iz jedilnega dela nas vzdolžna os prostora vodi do počivalnikov, kjer se nam skozi na novo projektirano francosko okno ustavi pogled na vrtu, rečni strugi in gozdnatem hribovju. Nato vstopimo v kuhinjo z velikim osrednjim otokom in premišljeno postavljenim pomivalnim koritom, ki stoji tik pod oknom, da je mogoče med kuhinjskimi opravili opazovati okoliško naravo.


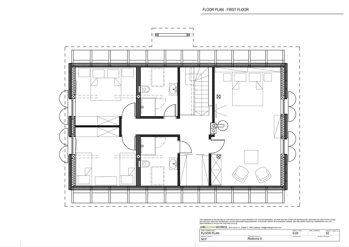
Zgornja etaža je razčlenjena na tri spalnice in dve kopalnici. V glavni spalnici je poleg postelje še sedežna garnitura za dnevni počitek, občutek domačnosti pa so arhitekti pričarali z umestitvijo kamina. Spalnica je neposredno povezana s prostorno kopalnico in garderobno sobo. Zaradi nižjega kolenčnega zidu je stojna višina v nadstropju mestoma omejena. Da so se arhitekti izognili morebitnemu občutku utesnjenosti, so v glavni spalnici odstranili prečno leseno konstrukcijo in prostor vse do vrha ostrešja odprli.


V nasprotju s tradicionalno zunanjostjo domačije se je vodja projekta Jade van Baaren pri opremljanju notranjosti odločila za modernejši pristop. Z ustreznim razmislekom in načrtovanjem je dosegla bivalno ugodje in zadostila potrebam sodobnega življenjskega sloga. Bele stene, pohištvo v nežnih naravnih odtenkih, leseni elementi, sobno rastlinje in raznovrstne tkanine pričarajo občutek topline, domačnosti in prostornosti.
»Pri oblikovanju sem imela v mislih sodobno ribiško počitniško hišo iz sredine prejšnjega stoletja. Predstavljam si, da bi v taki hiši bival sodobni James Bond in se v njej skrival pred zločinci. Tukaj bi se s prijateljico odpočil. Iz tega sem črpala navdih,« opiše svojo vizijo Jade van Baaren. V hiši tako najdemo restavrirano pohištvo iz prejšnjega stoletja, ki ga je vodja projekta poudarila z dodanimi sodobnimi elementi, nekaj starinske opreme pa je s seboj v hišo prinesel že lastnik.
Spoštovanje do kulturne dediščine, ki so ga v studiu JVB Designworks občutili do hiše, se kaže predvsem v premišljenem načrtovanju dodanih komponent in v subtilnem pristopu k opremljanju interierja. Ob prihodu k domačiji tako začutimo duha preteklosti in spomine na stare čase, ki pa nas v notranjosti spet vrnejo v sedanjost.
Ime projekta: Radovna 8 Avtor projekta: JVB Designworks Investitor: zasebni Fotografinja: Vida Dimovska Lokacija: Radovna, Gorenjska Leto načrtovanja: 2020 Leto izvedbe: 2021 Površine: Pritličje: 77,2 m2 Prvo nadstropje: 85,5 m2 Pozidana površina: 105 m2 … Vodja projekta: Jade van Baaren Projektanti:
- Gradbene konstrukcije: PVP d.o.o.
- Elektro instalacije: Elkord Aljoša Kordiš s.p.
Notranja oprema:
- Kuhinja: Mizarstvo Podjed
- Stopnice in vrata: Konstrukcije Gašper
- Tlak: Parketarstvo Pavlič
- Polaganje ploščic: Marko golob s.p.
- Ploščice: Dohe
- Kopalniška oprema: Cristina rubinetterie
- Kamin: Kamini Kočevar, Trend kamini
- Zavese: UVA Javornik
Zunanja ureditev:
- Vrtno pohištvo: Harvey Norman
Dobavitelji gradbenih materialov:
- Lesena fasada: Roman Komatar s.p.
Pripravila: Brina Meze – Petrić
Foto: Vida Dimovska
Podprite Outsider z naročnino!



