Trije kockasti kvadri, postavljeni na četrtega, bolj ploščatega, sestavljajo kompozicijo, ki je vstopni točki ob jugozahodni vpadnici v Novo mesto pred dvema desetletjema dodala svojevrsten pečat. Jasno delitev stavbne mase dodatno poudari tudi barvno kodiranje – vsak v svoji primarni barvi spominjajo na velikanske lego kocke. V prostoru je njihova igra zagotovo nekaj, kar izstopa. Lahkotni pisani volumni kompozicije sodelujejo v nenavadnem kolažu mikrolokacije.
Na nasprotni strani ceste je avtobusna postaja s pročeljem v obliki kratice NM, odeta v temno leseno fasado, v ozadju pa nad veduto kraljuje zvonik kapiteljske cerkve starega mestnega jedra.
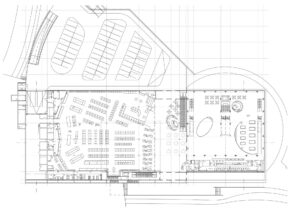
Objekt je bil načrtovan za nakupovalno zabaviščni center Portoval0, bolj znan kot Planet Tuš, ki je v enem centru združil različne programe. Postavljen je bil na degradirano območje s postajališčem za kamione, med zaledje centra mesta in stanovanjsko predmestje, natančneje med reko Krko, železniško progo, športni park Portoval in avtobusno postajo, ki je dobrih dvajset let čakala svojo protiutež na drugi strani ceste. Že avtor postaje, arhitekt Marko Mušič, je za območje predvidel pozidavo s poslovnim programom, ki bi vzpostavila nova mestna vrata. Tudi predlogi, ki so sledili za postavitev športne infrastrukture na to lokacijo, niso bili izvedeni. Kasneje je bila arhitektoma Janezu Koželju in Jožetu Jakiju dodeljena naloga oblikovanja arhitekture za nakupovalni center s kinodvoranami in poslovnimi prostori, ki je leta 2003 naposled le zapolnila vrzel.
Preprost zunanji izgled objekta v sebi skriva premišljeno zasnovo, ki je naročnikove programske smernice in zahteve po kapacitetah spretno izvedla znotraj številnih omejitev lokacije. Sorazmerno majhna površina, znatne potrebe po parkirnih mestih, omogočanje pogledov preko objekta, centralna mestna lega ter padajoč teren so bili okviri, ki so definirali center. Ta se od tipičnih nakupovalnih središč razlikuje že v samem bistvu. Gre za »poizkus arhitekturnega soočanja z vedno bolj perečim problemom nakupovalnih centrov.«1 Nakupovanje se že desetletja iz središč seli na obrobja mest, na poceni zemljišča izven naselij. S povečano mobilnostjo prebivalstva so razdalje postale zanemarljive, večji nakupi manjkrat tedensko po nižjih cenah pa bolj smiselni. Z ameriških tal je trend prišel tudi v Slovenijo, vse prevečkrat pa v prostoru pomeni stihijsko gradnjo, podrejeno kapitalu, ki se v zasnovi komaj dotika arhitekturnih načel. Avtorja sta v Novem mestu predlagala prehoden in členjen volumen z neposrednim dostopom z več strani in nivojev, ki pušča pritličje javnim površinam, parkirišča pa skrije v kletne etaže. Radikalno sta se odmaknila od tipičnih vase zaprtih nakupovalnih centrov, obdanih s preprogo parkirišč, in ponudila bolj mestotvorno zasnovo. Nadgrajena je z raznolikim programom, ki center oživlja ob različnih delih dneva, saj združuje komercialne vsebine, poslovne in družabne prostore.

Konstrukcijsko je kompleks sestavljen iz dveh delov – betonskega podstavka, ki je delno vkopan, in jeklenih paviljonov, odetih v lahko, prosojno fasado. V kletnih etažah so dvostransko naravno zračena garaža ter spodnji kinodvorani. Prečna pasaža v pritličju povezuje cesto in park, hkrati pa razmejuje trgovino ter pritličje zabaviščnega paviljona. V slednjem je konstrukcija najbolj ekspresivna; volumen je namreč odprt po vsej višini, školjki zgornjih dvoran pa znotraj njega zalebdita.
Trije programi, trije kubusi in tri barve rahlo odzvanjajo principe uporabe barv iz modernizma – saturirane primarne barve so tudi v primeru Portovala uporabljene za definiranje prostorov, zbujanje emocij in poudarjanju konstrukcije. Modra barva poslovnih prostorov deluje pomirjujoče, rumena v nakupovalnih prostorih razveseljuje, rdeča pa vznemirja in spomni na tradicijo gledališčnih ambientov. Neločljivo povezana z barvo je tudi svetloba, ki jo ustvari prosojna fasada iz obarvanega polikarbonata. Podnevi v notranjosti zaznamuje ambient, ponoči pa navzven paviljoni zasijejo kot nekakšna japonska lanterna.

Povezovanje objekta z okolico je večplastno. Poleg glavne povezovalne pritlične pasaže so dostopi do paviljonov mogoči tudi preko ploščadi na strehi, s čimer se aktivirajo dodatne javne površine. Ploščad osmišljajo gostinski lokali ter izložbe, z nje pa se pogledi odpirajo na gozdnato zaledje v okljuku Krke. Center preko fasade komunicira z okolico tudi vizualno. Polprosojna opna, ki obdaja kubuse, zabrisano izrisuje drobovje hiše; viseče kinodvorane, stopnišča in instalacije dodajo globino ravni ploskvi fasade. Mestoma je obod kubusov tudi zastekljen. Ob vseh javno dostopnih površinah, tako v pritličju kot ob ploščadi na strehi, se pretakanje življenja v notranjosti tudi neposredno projicira navzven. Pasovno je zastekljena etaža s poslovnimi prostori, veliko okno pa uokvirja vertikalne komunikacije srednjega volumna.

V projekt je bila vključena tudi celovita ureditev javnih površin. Nova dovozna cesta s parkiriščem, urejene pešpoti, zelen park ob reki ter lesena brv, ki bistveno skrajša povezavo z mestnim središčem, območje funkcionalno in prostorsko povežejo tudi s širšo okolico.
Leta uporabe so idejo o odprtem in razlivajočem se tlorisu postavila na vidno preizkušnjo. Ko so komercialne vsebine umaknili iz nadstropij in skrčili na pritlično etažo, so umanjkani prostor zavzele v horizontalo, zunaj prvotno predvidenega območja. S časom dodani boksi in pregrade si tako prilaščajo javne površine, s tem pa onemogočajo fizično in vizualno pretočnost. Uporabniki so se v takem prostoru dodatno udomačili, čemur lahko pripišemo tudi opazne poškodbe in servisno uporabo manj izpostavljenih vogalov izvorno enovite javne površine. Srednji kubus je bil z menjavo vsebine deležen adaptacije za potrebe novega izobraževalnega programa, tloris je bil razdeljen in pregrajen z manjšimi prostori in pisarnami. Ob pogledu na zastekljene pritlične prostore, ki so zastrti z zavesami, žaluzijami ali matiranimi prevlekami stekel, dobimo še en namig o izkušnji uporabnikov danes – pred kom ali čim se skrivajo?

Tipologija nakupovalnih centrov običajno ostaja v periferiji zanimanja arhitektov in se z njo ukvarja le redkokdo. Sprejeti takšen izziv in v projektni nalogi prepoznati resnični potencial objekta ni dano vsakemu projektantu. Koželj in Jaki sta pripravila drzen koncept in ga tudi uspela realizirati, kar je z nagradami za konstrukcijo in arhitekturo potrdila tudi mednarodna stroka. Prav tako je odmevnost projekta lokalno spodbudila nekaj dodatnih razmislekov ob načrtovanju objektov s podobno vsebino, ampak le za kratko obdobje. Še največji vpliv je projekt najbrž imel na področju uporabe materialov in odprl vrata arhitekturi2, ki v zasnovo vključuje transparentne polikarbonatne panele in jih združuje z lahkimi konstrukcijami.

Zdi se, da je bil Portoval le kaplja v morje produkcije komercialnih središč. Tipizirane konzerve, kot jih poimenuje Koželj, brez spoštljivih arhitekturnih in prostorskih vrednosti, danes še vedno vznikajo na novih prostih parcelah izven naselij. Brez odgovornosti do konteksta in brez družbenih ambicij so v celoti še vedno podrejene težnji po hitrosti in se na svojo okolico ozirajo le samopromocijsko.
So okrašene lope3, v katerih je bolj malo arhitekture, le preprosta inženirska konstrukcija in kaotični ovoj iz grafičnih reklamnih sporočil. Fasade nakupovalno-zabaviščnega centra Portoval so sicer živopisanih barv, vendar ima njihova implementacija drugačen učinek v prostoru, saj ustvarja abstrakten grafični poudarek in mimoidočega ne zasiči z informacijami. Lahko trdimo, da so prostorske kvalitete projekta še vedno aktualne.

Morda imata njegov specifičen izraz in vpadljiva zunanjost namen, da nas znova opomnita na pomen zgoščanja grajenega tkiva, ohranjanja starih in vzpostavljanja novih povezav v prostoru ter vnašanja vsebine, ki okolico bogati. Ob odprtju je bil pomembno vozlišče družabnih interakcij centra multikino, z upadom obiska kinodvoran pa se tudi življenje celotnega objekta upočasnjuje. Morda bo v prihodnosti napočil trenutek, ko bo kompleks spet postal »programska praznina, ki pričakuje dogajanje«.4 Takrat se lahko spet spomnimo na predloge, da bi te prostore namenili izobraževanju, rastoči Univerzi v Novem mestu, ki bi z mladostno energijo v objekt vnesla osvežen mestotvorni program. Morda bi odprta arhitektura v mladih ljudeh podprla tudi odprtost uma in duha.



0 Portoval: Port (pristanišče) in Wald (gozd)
1 Hrausky, A., 2003, str. 2
2 primeri: Poslovni objekt Trata, OFIS, 2009; Telovadnica OŠ Vižmarje Brod, Medprostor, 2019; Športni šotor Domžale, Hafner arhitekti, 2025
3 po definiciji iz besedila Learning from Las Vegas (Venturi in Scott Brown, 1972)
4 Koželj, J., 2003, str. 5
Hrausky, A., 2003. drugačen način življenja. Arhitektov bilten : AB, 33(161–162 november), str. 2–3
Koželj, J., 2003. portoval. Arhitektov bilten : AB, 33(161–162 november), str. 4–9
Napisala: Patricija Bratuž
Fotografije danes: Boštjan Pucelj
Fotografije nekoč: Miran Kambič
Rubrika Odtisi časa je posvečena refleksiji življenja stavb skozi čas. Kako se arhitektura stara?
Zabaviščno-trgovski center Portoval v Novem mestu (Planet Tuš)
Avtorja: Janez Koželj in Jože Jaki
Lokacija: Topliška cesta, Novo mesto
Leto projekta: 2002
Leto izvedbe: 2003
Sodelavci: Jože Marinko, Veronika Ščetinin, Alenka Korenjak
Naročnik: Tuš d. d.
Investitor: REAL d. o. o., Novo Mesto
Površina: 23.935 m2 bruto
Nagrade: Detailpreis 2005, European Award for Steel Structures 2005, Zlati svinčnik ZAPS 2005






