Pred časom sem nekje prebrala, da so v okviru neke študije starejše posameznike spraševali, kdaj so bili v življenju najsrečnejši. Večina odgovorov se je okvirno nanašala na čas mlade odraslosti, ko se gradniki nadaljnjega življenja počasi postavljajo na svoje mesto, čeprav se morda kdaj zdi, da ni tako. To je čas ustvarjanja družine, začetka kariere, urejanja doma. Čas sladkega pričakovanja in grenke negotovosti. Sama ta čas živim ravno zdaj in pogosto se zdi, da prav nič ne gre tako, kot bi moralo. Pa vendar – lahko razumem, da so to leta neskončnih možnosti, ki so skoraj otipljive. Nekaj takšnega se je na kolektivni ravni bržkone dogajalo v šestdesetih in sedemdesetih letih prejšnjega stoletja.





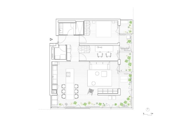
Stanovanje na Mesarski Arhitektov Počivašek Petranovič je stanovanje, ki kar kipi od vznemirjenja nad lastno prihodnostjo in prihodnostjo svojih lastnikov. Starejše stanovanje je bilo prenovljeno za potrebe novih lastnikov, mladega para s psom in obilo rastlinskih prijateljic. Prav zaradi teh »nečloveških« sostanovalcev so se arhitekti odločili za spremembo tlaka v stanovanju ter parket zamenjali s trpežnim teracem, ki mu samosvoj videz daje dodatek modrega stekla. Bivalni del je prestal preureditev, ki ga je blago razdelila na dva dela: svetlejši kuhinjsko-jedilni del in temnejšo, intimnejšo dnevno sobo. Kuhinjski pult se nadaljuje v masivno jedilno mizo, okoli katere je dovolj prostora za vse prijatelje, servisne kuhalne površine iz inoksa pa se lahko popolnoma zaprejo, kadar kuhinja ni v uporabi. Dnevni del je namenjen branju, sprostitvi in prijetnim pogovorom ter z mehkobo žameta in globokih barv vabi k počitku.




Oprema stanovanja z eno nogo tiči v drugi polovici prejšnjega stoletja, ki je bila polna zanosa, z drugo pa neustrašno koraka v današnjo prihodnost: morda najočitnejši primer te dvojnosti je izbira stolov v jedilnici: polovica je znamenitih Thonetovih modelov, polovica pa njihovih sodobnih izpeljank. Kontrasti med svetlim in temnim, domačnim in metropolitanskim, hladnim in toplim, mehkim in gladkim – vse to daje stanovanju (p)oseben značaj. Vrača se nazaj, da bi se ozrlo v prihodnost, in preteklo pričakovanje postavlja ob bok današnjemu. Na zemljevidu nekega življenja pomeni svetlo točko sreče, kamor se znova in znova vračaš: na začetek vsega dobrega.

Odgovarjajo: Arhitekti Počivašek Petranovič
Kakšno je bilo stanje stanovanja pred posegom? Katere elemente ste pri prenovi ohranili?
Notranjost stanovanja je bila dokaj dotrajana, brez izrazitih prednosti, s temnimi stenami in slabo postavitvijo opreme. Odlika stanovanja, ki smo jo ohranili oz. izpostavili, je predvsem vogalna lega z dvostransko stekleno fasado in pogledi na Golovec.



Kako ste (če ste) spremenili programsko shemo prostorov?
Programska shema je ostala praktično enaka, le da smo dnevni WC spremenili v utiliti. Odstranili smo nepotrebno shrambo v kuhinji in ložo, posledično pa dobili večji in bolj urejen dnevni bivalni prostor.
Kaj je bil največji izziv, s katerim ste se srečali v času izvedbe projekta?
Izvedba projekta je potekala brez večjih zapletov. Mislimo, da je bila največja težava postavitev velike kuhinjske mize s kuhalno ploščo, saj je miza v enem kosu in so jo morali v stanovanje pripeljati prek zunanjega dvigala skozi okno.
Po fotografijah sodeč vam je uspel čudovit barvni teraco. Je bilo težko doseči takšen rezultat?
Ob začetku projektiranja smo se odločili, da mora biti teraco barvno zelo svež in sodoben, zato smo kar nekaj časa raziskovali, kako lahko sestavimo pravi agregat. Na koncu smo se odločili za agregat, sestavljen iz belega carrarskega marmorja, oker granita in modrega stekla, povezanih z belim lepilom. Proces izbire končnega agregata je potekal v sodelovanju z izvajalcem teraca in na podlagi kar nekaj izdelanih vzorcev. Tudi sama izvedba v nadstropju večstanovanjske hiše je bila zahtevna.
Kaj je največja prednost vaše zasnove, kaj bi sami izpostavili?
Kuhinjski pult z jedilno mizo se je izkazal za odličen prostor za druženje s prijatelji ob kuhanju, tudi sama kuhinja se je izkazala za zelo funkcionalno. Prav tako transformacija standardne blokovske kopalniške kabine v oblikovano kopalnico, brez keramike in z unikatnim umivalniškim pultom ter prho iz teraca.

Ime projekta: Stanovanje Mesarska
Avtorji projekta: arhitekturni biro Arhitekti Počivašek Petranovič
Ekipa: Davorin Počivašek, u. d. i. a., Urban Petranovič, u. d. i. a., Nuša Gruden, abs. arh.
Lokacija: Ljubljana
Leto: 2018
Površina: 95 m2
Investitor: zasebni
Fotografije: Urban Petranovič
Projekt je bil prvič objavljen v tiskani številki Outsider 16: Intimnost.




