V bohinjski kotlini, natančneje, v starem jedru Bohinjske Bistrice, nov vtis v prostoru ustvarja hiša, odeta v lesen ovoj. Oblikovana po vzoru tradicionalne gorenjske hiše, a z reinvencijo za prostorski kontekst značilnega ganka, izstopa v likovnosti fasadnega plašča. Načrtovali so jo arhitekti studia Raketa.




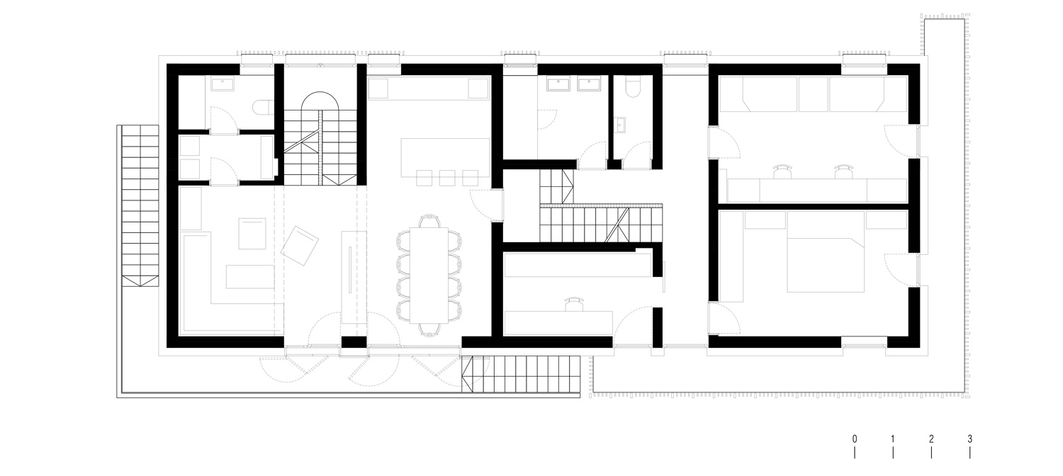
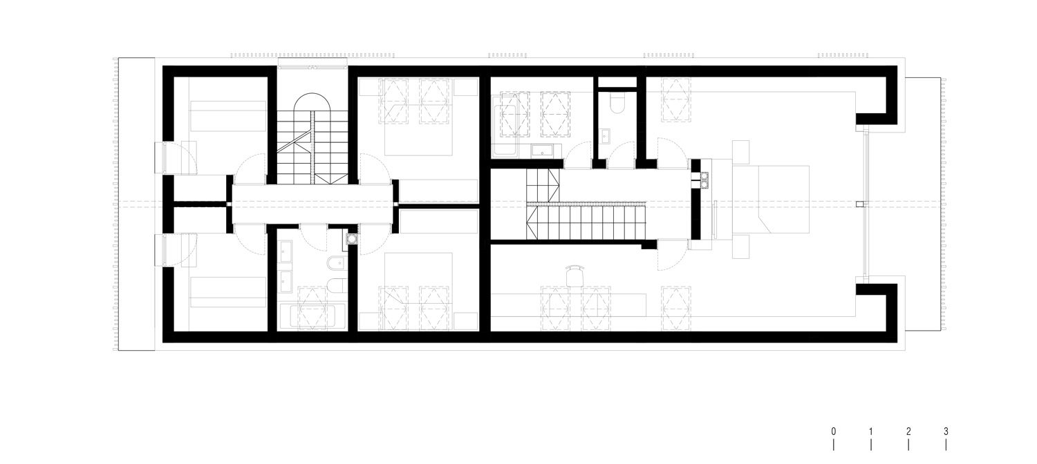
»Začelo se je z gankom za gorenjske nageljne in z garteljcem pred hišo. Za hišo v starem jedru Bohinjske Bistrice je to izvrstno izhodišče,« pripoved o začetku projekta opišejo avtorji. Hiša se funkcijsko deli na zasebni in apartmajski del, kar se odraža tudi v sami členitvi fasade in zunanje ureditve, ki je v apartmajskem delu nekoliko poglobljena. Arhitekturna interpretacija ganka, ki na vzhodnem delu objekta sledi znani tradicionalni formi, na jugu deluje kot izstopajoč karakteristični element. Tu se iz višjih nadstropij nekonvencionalno spusti do pritličja, kjer zakrije velika okna v wellnessu in omogoči prostorsko intimnost brez čistega zapiranja pred okolico. Hkrati prikrije tudi vhod v apartmajski del in ga, po besedah arhitektov, tako postavi v sekundarno pozicijo. Preplet tipoloških lastnosti gorenjskega ganka, ki se združi z lesenim ovojem, tudi skrije vse velike steklene površine, ki v prostor spuščajo obilico svetlobe. Vidna okna so tako zgolj manjših dimenzij in smiselno sledijo lokalni tipologiji.




Interier zagotovo zaznamuje slikovita okolica, ki skupaj z veliko svetlobe vstopa v ambient notranjosti. Slednji ton narekuje izbrana lesena materialnost, ki se pojavlja v tlaku in pohištvu, nad vsem pa v odločni, a nevsiljivi maniri gospoduje vidna lesena konstrukcija. Ta se v ubranem redu konstrukcijske logike odkriva v mansardni etaži, kot središče hiše pa tradicionalno deluje lončena peč s klopjo.




Ime projekta: HIŠA BBL
Avtor projekta: Katjuša Kranjc, Rok Kuhar, Vesna Draksler, Raketa
Investitor: Naspro d.o.o.
Fotografija: Žiga Lovšin, Ana Skobe
Lokacija: Bohinjska Bistrica
Leto načrtovanja: 2015
Leto izvedbe: 2020
Površine:
Klet: 29,6 m2
Pritličje: 136,9 m2
Nadstropje: 115,4 m2
Podstrešje: 180,8 m2
Parcela: 670 m2
Pozidana površina: 153,20 m2
Projektanti:
– Arhitektura: Katjuša Kranjc, Rok Kuhar, Vesna Draksler, Miha Žgank, Aleš Žmavc, Meta Fortuna
– Interier: Katjuša Kranjc, Rok Kuhar, Vesna Draksler, Zala Košnik
– Gradbene konstrukcije: Diana Fonda, univ.dipl.inž.grad.
– Elektro instalacije: Janez Slobko, univ.dipl.inž.el.
– Strojne napeljave: Marijan Nedoh, univ.dipl.inž.st.
Glavni izvajalec gradbeno obrtniških del: Inštalacije ROR
Notranja oprema:
– Mizarstvo Kamiz
– Kopalnica: Villeroy Boch
– Jedilnica: Rutar
– Kamin: Pečarstvo Hrovat
– Oblazinjeno pohištvo: Feydom
– Dobavitelji stavbnega pohištva: Okna vrata Nagode, Megušar Les
– Armature: Hans Grohe
Zunanja ureditev:
– Travni tepihi Krivic
– Talni elementi (tlakovci, les): Gradbeništvo Kocjanc, Mizarstvo Kos
– Vrtne konstrukcije: Mizarstvo Kos
– Ograjni sistemi: Mizarstvo Kos, Ograje Žugič
Pripravila: Manca Košir
Podprite Outsider z naročilom!



