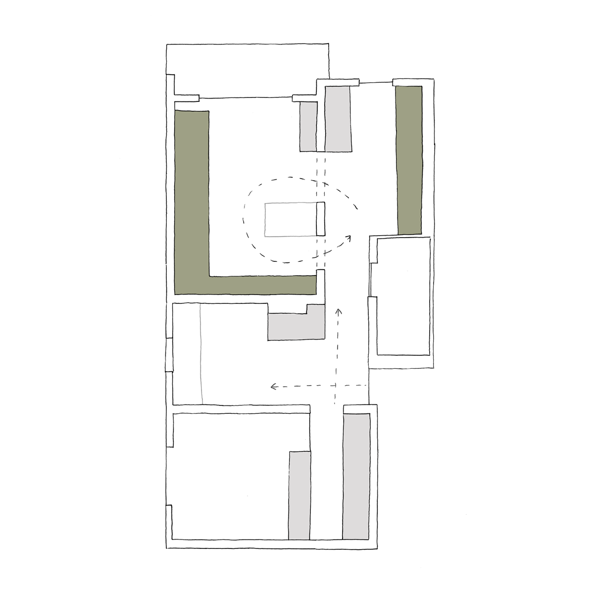
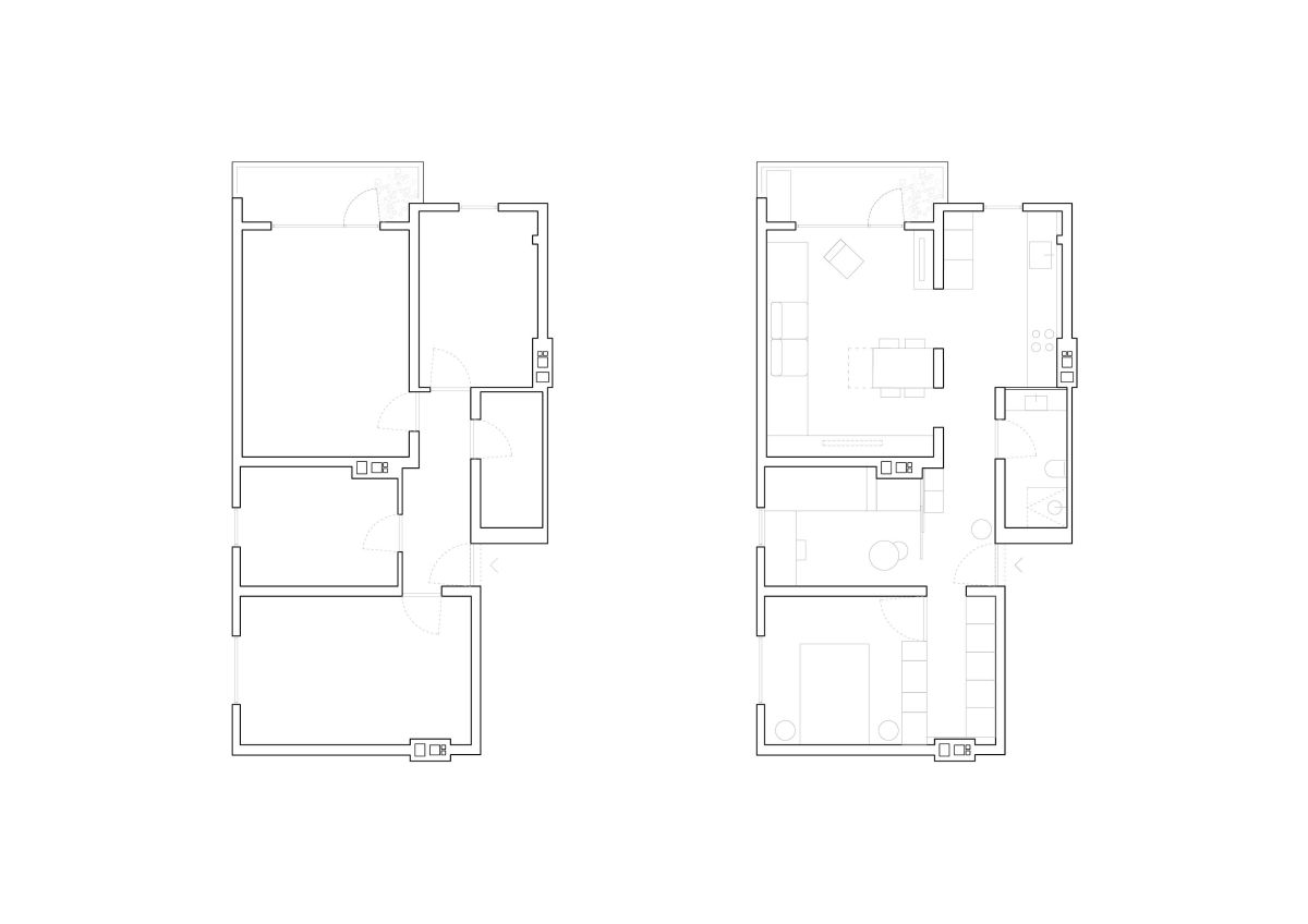
Manjše dvoinpolsobno stanovanje v bloku iz petdesetih let v ljubljanski Šiški, razdeljeno na več sobic in podprostorov, je bilo potrebno pomladitve, da je lahko sprejelo mlad par. Z izzivom, kako temačne, zadušljive prostore povezati v bolj odprt tloris, prilagojen sodobnemu bivanju, so se spoprijeli arhitekti iz studia a2o2.

Z minimalnimi preboji in novim svetlim tlakom so oblikovali povezan, svetel bivalni prostor. Pri tem so mestoma vrata odstranili ali premaknili. V kabinetu (otroški sobi) so vpeljali drsna vrata, ki lahko v celoti odprejo steno, in ga tako povezali s hodnikom v enoten prostor. Z visokimi svetlimi servisnimi elementi opreme so zrahljali delitev na dnevni in spalni del stanovanja

Notranje prostore so dodatno optično povečali z velikim ogledalom, ki navidezno podaljšuje garderobni hodnik, prevladujoča belina zidov in vgradnih elementov pa svetlobo pelje v globino stanovanja. Edini barvni kontrast v zasnovo stanovanja vnaša oprema v kuhinji in dnevni sobi v odtenkih nežno zelene, ki interier povezuje z drevesi pred blokom.

Z učinkovito rabo skromnih sredstev so a2o2 arhitekti zasnovali interier, ki ga odlikuje jasna, trezna atmosfera. Na mestu nekdaj utesnjenega stanovanja je danes zračno domovanje, kjer svetloba in praznina kot arhitekturna elementa v ospredje postavljata življenje novih stanovalcev.






Ime projekta: Prenova stanovanja AA
Avtor projekta: a2o2 arhitekti; Klara Bohinc, Andraž Keršič, Žiga Ravnikar, Eva Senekovič
Investitor: zasebni
Lokacija: Ljubljana, Šiška
Leto načrtovanja in izvedbe: 2021
Površine: 57 m²
Projektant gradbenih konstrukcij: Projekt Franc Pezdirc s.p.
Izvajalci:
Glavni izvajalec: Žgur d.o.o.
Gradbena dela: Obnova gradnje d.o.o.
Instalacije: Ivan Marjan s.p., Gradbeništvo Mustafovski – zaključna gradbena dela d.o.o.
Okna, vrata: Peter Keršmanec s.p.
Tlaki, parketi, keramika: GRADMED d.o.o. / Aleš Bokalič s.p., Aledra s.p.
Notranja oprema: Mizarstvo Čuk – Gregor Čuk s.p.
Svetila: Elpra d.o.o.
Kuhinja: Mizarstvo Čuk – Gregor Čuk s.p.
Fotograf: Ana Skobe
Pripravil: L. J.



