Arhitekti studia ADX so v kraju Minamisōma na Japonskem zasnovali hišo iz zemlje za naročnike, ki so svoj dom izgubili v velikem potresu leta 2011. Nekdanji dom družine je stal na lokaciji, ki je bila obkrožena z naravo. Zaradi okoliščin, povezanih s potresom, so se odločili za selitev v gostejšo stanovanjsko sosesko, kljub temu pa so želeli, da arhitekti pri načrtovanju vzpostavijo podobno povezavo hiše z naravo in zemljo, ki jo obdaja.

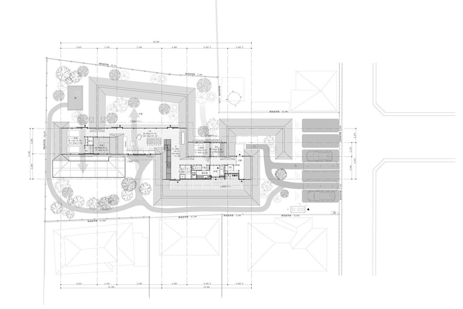
V studiu ADX so se na željo družine odzvali tako, da so pred samim objektom načrtovali njegovo okolico, šele nato so vanjo umestili tudi enonadstropni dom. Med projektom pa so arhitekti ugotovili, da je strošek odvoza odvečne zemljine veliko višji, kot so sprva predvidevali. Zastavljeni načrt so zato spremenili, in sicer tako, da so lahko čim več že prisotnega materiala vključili v samo strukturo, s tem pa so tudi sledili duhu povezovanja hiše z naravo.

Koncept oblike in postavitve sten je navdihnila otroška igra s peskom in mivko. Izkopano zemljino so tako uporabili skupaj z bolj standardnimi gradbenimi metodami. Za zagotovitev toge statične konstrukcije so gomile, grajene iz zemlje, prekrili z ekspandiranim polistirenom, nato pa jih poškropili z gradbenoinženirsko tehniko EPS. Vidni rezultat po besedah arhitektov ustvarja prostorski ambient, ki se zliva z naravo in sledi naročnikovi predstavi o novem domu.

S svojo okolico se hiša povezuje tudi prek oken, ki se v celoti odpirajo vzdolž ene od sten ter tako zabrišejo mejo med vrtom in notranjostjo. Prioriteti pogledov, usmerjenih proti naravi, ki obdaja objekt, sledijo tudi steklene predelne stene. Te v prostore (hiša ima dve spalnici in sobo za goste) pripeljejo veliko naravne svetlobe.

Arhitekti ob pripovedovanju o hiši izpostavijo zanimiv odnos med konceptoma umirjenosti in dinamike. Želijo si, da bi projekt ljudi spodbudil, da bi razmišljali o sebi, svoji družini, veri in družbi v udobnem in mirnem bivališču. Ob tem poudarjajo željo, da bi ideja hiše, grajene iz lokalnega materiala, v fukušimski regiji ustvarila svojevrstno simboliko.


Ime projekta: Soil House
Avtor projekta: ADX, Kotaro Anzai
Investitor: zasebni
Krajinska arhitektura: AKKA
Fotografije: Nao Takahashi
Lokacija: Minamisōma, Japonska
Leto izvedbe: 2019
Površine: 137 m²



