Že pred stoletjem in pol so zaskrbljeni meščanski kritiki po Evropi in tudi pri nas opozarjali na nezdrav življenjski slog prebivalcev urbanih središč. V povprečnem meščanskem stanovanju se je kljub novim navadam in standardom na pomanjšan in karikiran način pogosto le oponašalo stari aristokratski slog bivanja z reprezentančnimi paradnimi sobami, ki se jih je navadno uporabljalo samo ob boljših obiskih. Majhne dvoriščne kamrice, v katerih so bile kuhinja, shramba in kakšen kabinet za otroke, pa so bili kljub dejstvu, da se je v njih odvijala večina družinske dnevne rutine, zapostavljene, slabo prezračene in nasploh nezadostne. Kuhinja seveda danes ni pomožni, daleč od oči obiskov umaknjen prostor, ampak se je prerodila v simbolno in dejansko središče doma. To velja tudi za predelavo starega meščanskega stanovanja na Levstikovi v Ljubljani, ki je doživelo temeljito programsko prevetritev. Umestitev prostorov, kjer se srečujejo skupni interesi prebivalcev stanovanja: kuhinje in kopalnice, bi se zdela obiskovalcu iz 19. stoletja nadvse nespodobna – dejstvo ki kaže tako na hitro se spreminjajoče predstave o domu, obenem pa tudi na neizmerno fleksibilnost starih meščanskih hiš, za katere se zdi, da lahko enako uspešno preživijo v kateremkoli času. Čeprav je tu vse sodobno, ob sprehodu po sobah srečujemo tudi bežne reminiscence minulih časov: ribjo kost po tleh, opečnate oboke nad sabo, zavese med kuhinjo in dnevno sobo. Interjer je nov, ne pa tudi očiščen; je sodoben, obenem pa ne minimalističen. Je reinterpretacija in ne izjava.

Hodnik in garderoba – vstop v stanovanje


Jedilnica s kuhinjo

Pogled v dnevno sobo


Stranišče

Kopalnica

Otroška soba

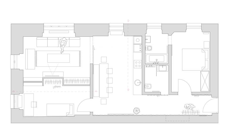
Tloris

Ana Gruden
Ime projekta: LEVSTIK
Avtorica projekta: Ana Gruden
Sodelavka: Tina Semolič
Investitorka: Ana Gruden
Fotograf: Primoz Korošec
Lokacija: Levstikov trg 4a
Leto načrtovanja: 2016
Leto izvedbe: 2016
Površine: 86 m 2
Besedilo: Miloš Kosec
Članek je bil objavljen v Outsider #09, april 2017.



