Ljubljana ni ravno metropola, a tudi v evropskem merilu že dolgo ni več ravno malo mesto. Je pa še vedno eno bolj zelenih, in v teku svoje skokovite rasti v preteklem stoletju je vase vključila več nekdanjih vaških naseljih, zato drobce podeželja še vedno srečujemo tudi sredi že povsem mestnega okolja. Tak vezni člen s preteklostjo je tudi gostilna Čad pod Rožnikom, ki je že od konca 19. stoletja priljubljeno srečevališče Ljubljančanov. Če je nekoč pomenila postanek na izletu ali romanju izven mesta, se danes nahaja na robu urbane strukture ob zeleni pokrajini Rožnika, ki ga je Ljubljana v svoji rasti že skoraj povsem obkrožila. To je bil čas burnih sprememb tudi za družinsko gostilno, ki je po vojni bila nacionalizirana in se je v roke družine Čad vrnila po več kot pol stoletja. Dediči, ki so ohranili podjetniški duh prednikov, so se odločili, da izkoristijo odlično lego na robu gozda pod Rožnikom in ponudbo gostilne nadgradijo. Del te vizije je novi hotel s kavarno na mestu nekdanjega lesenega gospodarskega objekta.
K zasnovi so pritegnili arhitekte Ano in Petra Cesarja (Arhitektura 2211) ter Bineta Tekavca, ti pa so zasnovali stavbo, ki se odziva na svojo lego ob gozdu in umestitev v območje, ki le streljaj od Rožne doline ohranja delček podeželske identitete. Glavni nosilec te navezave je sekundarna lesena fasada iz smrekovih moralov, ki se navezuje na predhodno gospodarsko poslopje, preplet okoliških dreves in vidno leseno konstrukcijo vil v Rožni dolini. Artikulirana lesena fasada obenem v sobah omogoča poglede in zasebnost hkrati.

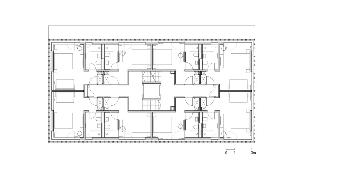
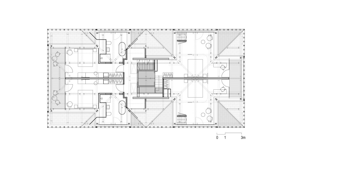
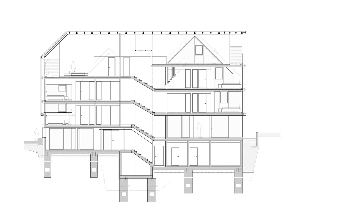
Poletažni zamik in premišljeni tlorisi omogočajo kar največji izkoristek znotraj dovoljenega gabarita in umestitev 18 hotelskih sob za leseno fasado v zgornjem delu, s pod streho skritimi ložami v mansardi. Glede na prostorska določila so sprva zasnovali objekt z ravno streho, v procesu usklajevanja pa so kot primernejšo rešitev za stavbo na območju kulturne dediščine in varstva narave izbrali razgibano dvokapnico z rdečkasto kritino v tonu tradicionalne opečne kritine.
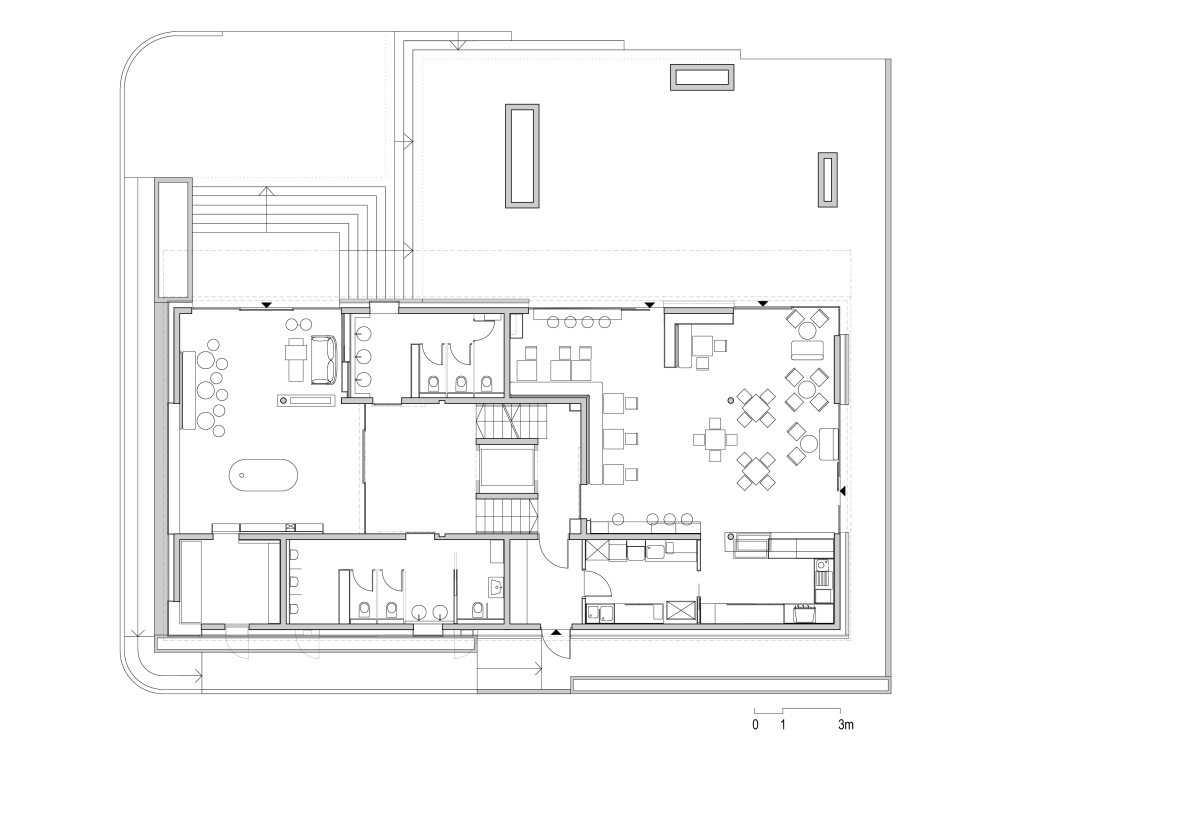
Odstop od konvencionalne reinterpretacije vernakularnega s posnemanjem oblik in materialnosti pomeni postavitev lesenega hotelskega »skednja« na piedestal pritličja. Ideja kamnitega podstavka je sicer tudi tu prenešena iz ljudske in klasične tradicije (avtorji navajajo tudi rimsko in paladiansko vilo), a je vertikalni obrat radikalnejši. Javno pritličje z (delno vkopano) recepcijo in kavarno z vrtom (avtorja interierja Anja Rupnik in Andraž Žitnik) ima namreč povsem drugačno logiko, z modernističnim rezom horizontalnega okna v enovito fasado iz sivih vlaknocementnih plošč, ki vzpostavlja neposrednejši stik z javnim prostorom.

Po besedah arhitektov jih je ideja rimske podeželske vile, ki je bila zasnovana kot skupina objektov, vodila tudi pri razmisleku o oblikovanju kakovostnega vmesnega prostora med novim hotelom in obstoječo gostilno, letnim vrtom ter konjsko manežo. Parkirne površine so umeščene na rob, vmesni prostor pa je zamišljen kot tlakovan trg.
Avtorji projekta:
»Družina Čad se lahko pohvali z dolgoletno tradicijo strežbe jedi z žara v prijetnem zavetju gozda, tik pod Rožnikom in hkrati v neposredni bližini mestnega središča. Kot odlični gostitelji so imeli že nekaj časa idejo, da bi na mestu degradiranega gospodarskega lesenega objekta ob obstoječi gostilni in letnemu vrtu, razširili ponudbo z gradnjo kavarniškega paviljona. Leta 2016 smo nato prejeli naročilo za projektiranje manjšega hotela s kavarno in pripadajočim vrtom v pritličju. Krošnje okoliških dreves, pravljični preplet senc in sonca ter vidni leseni konstrukcijski elementi vil v sosednji Rožni dolini so bili inspiracija pri raziskovanju konceptualne zasnove fasade. S svojo materialnostjo in simetrično obliko novogradnja spominja na reinterpretacijo odstranjene lesene lope na sodobnem piedestalu.«






Tloris kleti

Tloris pritličja

Tloris nadstropja

Tloris mansarde

Vzdolžni prerez

Prečni prerez
Ime projekta: Novogradnja Hotela Čad
Avtorji arhitekture: ARHITEKTURA2211 + Bine Tekavec (Ana Cesar, Peter Cesar, Bine Karol Tekavec)
Avtorji interierja: ATRI arhitekturni studio + DECOR&DESIGN (Anja Rupnik, Andraž Žitnik)
Investitor: Gostilna Čad d.o.o.
Lokacija: Cesta na Rožnik 18, 1000 Ljubljana
Leto načrtovanja: 2016-2021
Leto izvedbe: 2019-2021
Površine:
Klet: 222 m²
Pritličje: 232 m²
1. nadstropje: 229 m²
2. nadstropje: 232 m²
Masarda: 211 m²
Parcela: 1257 m²
Pozidana površina: 278 m²
Površina bruto: 1300 m²
Projektanti:
Detajl: Christian Volpi
Gradbene konstrukcije: Alan Sodnik
Glavni izvajalec: Remont
Svetila: Strle
Kopalniška oprema in talne obloge: Interrier
Dobavitelji stavbnega pohištva: M Sora, Arcont
Zunanja ureditev: Žurbi Team
Jeklena strešna konstrukcija: Bemija
Dobavitelj in izvajalec strešne kritine: Boštjan Kraševec
Dobavitelj fasadnih elementov: RIKO, ASTEH
Dobavitelji hišne tehnike: Gostinska oprema LIAS
Foto: Miran Kambič
Pripravil: Luka Jerman



