Projekt prenove Osnovne šole Vič arhitekturnega biroja ARP Studio raste in se razvija, tako kot otroci, ki ta prostor uporabljajo. Ker je to za njih čas, ko se najbolj spreminjajo, je pomen prostora in počutja v njem brez dvoma bistven. Zato arhitekti z manjšimi posegi in intervencijami postopoma izboljšujejo šolske prostore.

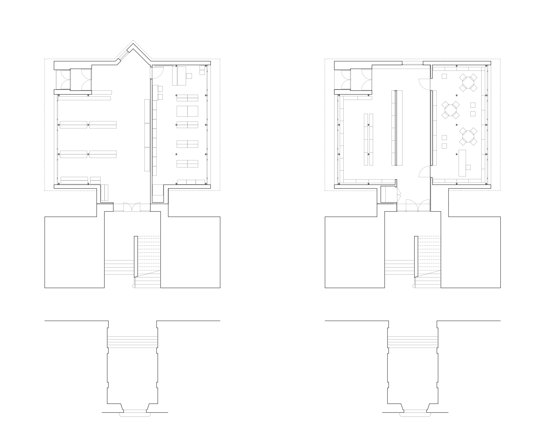
V arhitekturni praksi nemalokrat pride do razvoja projektov iz konkretnih problemov v celostne rešitve, ki na začetku mogoče niso vidne na prvi pogled. To zaznamo tudi v projektu pričujoče prenove, katere predmet zadnje realizacije so bili prostori garderob. Zaradi bogate in dolge zgodovine stavbe avtorji k prenovi pristopajo previdno in hkrati ponovno izpostavljajo njeno preteklost. Zaradi razvoja mesta in spremembe okolice je šola ostala brez primernega vstopa, kar je bilo rešeno pri projektu prenove prizidka iz leta 1984, kjer se nahajajo garderobe in knjižnica.

S celotno prostorsko reorganizacijo so bile zasnovane nove garderobe in majhna vhodna avla. Posegi so bili minimalni – prostostoječi zid, ki razmeji odprte garderobne omare in vzpostavi avlo ter preoblikovanje trikotnega fasadnega zaključka v večje okno. S slednjim posegom je bila poudarjena centralna os stavbe, ki se nadaljuje v historični del šole. Poleg tega okno omogoča vstop naravne svetlobe v notranjost prostora in ga vizualno poveže z zunanjostjo – pogled na šolsko igrišče. Knjižnica je bila v večini ohranjena; premaknjen je bil njen vhod za boljšo vzpostavitev avle, dodan pa je bil še en vhod. Njena notranja zasnova je bila zgolj optimalno preoblikovana – knjižne police po obodu in prilagodljiv prostor za delo na sredini.

V avli so ohranjene bele opečne stene, ki v kombinaciji z lesenimi oblogami in klopmi prostor naredijo prijeten. Kovinske garderobne omarice so razporejene po obodu in sredini, kar omogoča lažje in hitrejše razporejanje učencev. Prebarvane so v pomirjujočo modro barvo in se tako vanje zlijejo obstoječi podporni stebri iste barve.

Arhitekti so s projektom, katerega prvotna naloga je bila prenova dotrajanih garderob, uspeli na novo vzpostaviti primeren vstop v šolo ter so hkrati kvalitetnejše povezali notranjost tako z zunanjostjo kot zgodovinskim delom stavbe. S to intervencijo ter tudi prejšnjimi in tistimi, ki še sledijo, oblikujejo celostno prenovo šolskih prostorov in prispevajo k boljšemu razvoju učencev.

Stanje pred prenovo



Pred in po prenovi
Ime projekta: Prenova vstopnih prostorov Osnovne šole Vič
Avtor projekta: ARP studio, Matjaž Bolčina, Ernest Milčinović, Urška Bertok Herman, Jan Žonta
Investitor: Mestna občina Ljubljana
Lokacija: Osnovna šola Vič, Tržaška cesta, Ljubljana
Leto načrtovanja: 2024
Leto izvedbe:2024
Površine:
Pritličje: 87,50 m²
Foto: Ana Skobe, arhiv ARP studia
Napisala: Maja Perpar


