Planotasti značaj sveta nad Grosupljem ponuja razlago za poimenovanje vasi, ki se razteza med njegovimi polji in gozdovi, prav tako pa daje ime novi družinski hiši na severnem robu te pokrajinske police. V občutljivi kontekst podeželske krajine nad gozdnato brežino, ki se strmo spušča proti Velikemu potoku, je arhitekt Bojan Mrežar postavil novogradnjo, ki v nevsiljivo celoto spaja značilnosti podeželja in potrebe sodobnega družinskega življenja.
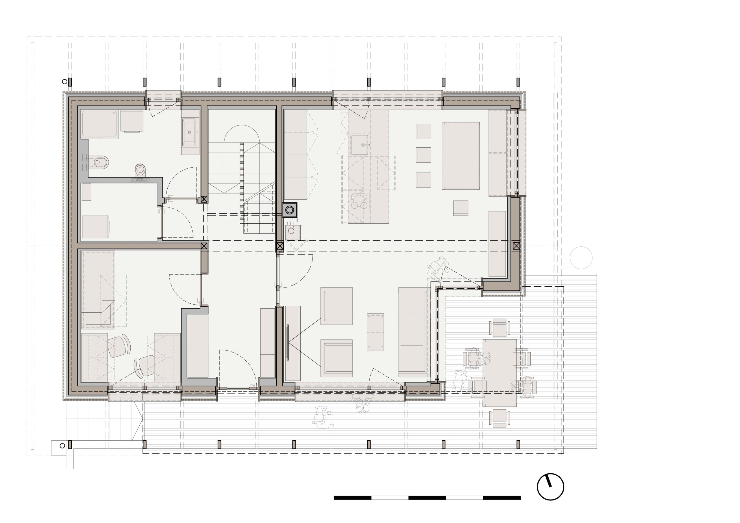
Zasnova hiše spretno izkorišča zahteven teren in njegove slabosti obrne v prednosti. Ker se teren spušča v gozdni rob na severu razpršeno poseljene planote, je bilo treba bivalne prostore umestiti na zgornjo koto zemljišča, da bi tako kar najbolje izkoristili osvetlitev in poglede. Pod njimi je delno vkopano pritličje s servisnimi prostori in garažo, obrnjeno proti tlakovanemu dovoznemu dvorišču na osojni strani. Tako je lokacija kar najbolje izkoriščena, hiša pa se vizualno zniža.

Stik s terenom odraža tudi konstrukcijska zasnova: v teren vkopano pritličje je armiranobetonski podstavek leseni gradnji nad njim – odločitev za les je bila želja investitorja, ki je tudi izbral glavnega izvajalca. Vertikalno skeletno konstrukcijo horizontalno povezujejo mozničene plošče, ki so jih zaradi svojega naravnega, toplega videza v dnevnem delu pustili vidne. Naklonjenost naročnika naravnim materialom se odraža tudi v uporabi ilovnatih ometov v notranjosti; ti skupaj z difuzijsko odprtim sistemom gradnje uravnavajo vlago, obenem pa njihova pH vrednost preprečuje nastanek plesni in iz zraka absorbirajo škodljive snovi. O angažiranem naročniku govori še poseben detajl: v objektu nameščenih več senzorjev vlage, prek katerih sam spremlja dogajanje v notranjosti konstrukcije – kot poudarja arhitekt, je projekt hiše tako »na nek način tudi raziskovalne narave«. Premišljeno tehnično plat zasnove dopolnjuje prezračevalni sistem z rekuperacijo in talno gretje, ki se napaja s toplotno črpalko zrak-voda, hiša pa ima porabo manjšo od 10 W/m²K in tako dosega pasivni standard.

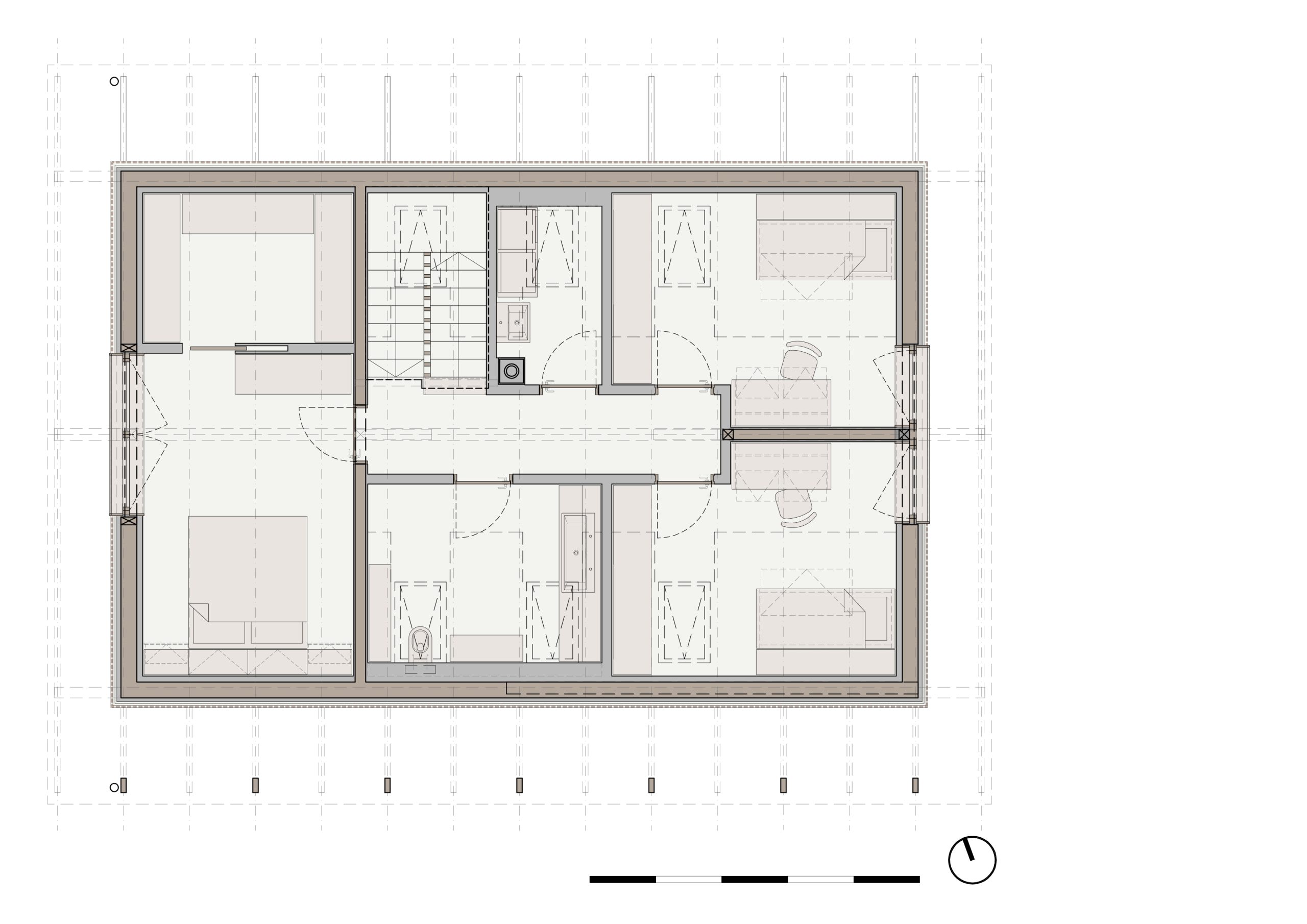
Funkcionalno hiša sledi uveljavljenim vzorcem sodobnega bivanja, z odprtim dnevnim prostorom čez polovico tlorisne površine nadstropja (oz. funkcionalnega pritličja), ki se z velikimi zasteklitvami odpira na vrt, ter s spalnicami in prostori za osebno higieno v mansardi.
Streha z velikimi napušči hišo navezuje na pojavnost gospodarskih objektov in jo tako umešča v ruralno okolje. A ne gre zgolj za formo: napušči imajo poleg varovanja lesene fasade tudi jasno funkcionalno vlogo s senčenjem notranjosti poleti, obenem pa definirajo in ščitijo pripadajoč zunanji prostor terase z lesenim podestom na južni strani, kjer napušč nosijo leseni stebri. Ti se na severu oprejo v fasado in tako postanejo poševne ročice, s tem pa tvorijo mogoče – pa še to le na prvi pogled – najbolj ekscentričen poudarek v umirjeni podobi hiše, ki jo najbolj definira prezračevana lesena fasada. Vertikalne letve, ki ustvarjajo valujoč ritmični vzorec z različnimi širinami in rotacijo ob vzdolžni osi, so že v fazi izvedbe dodatno obdelali s sredstvom za pospešeno sivenje in tako dobili enakomerno varovalno patino.

Raje, kot da bi okna v dnevnem prostoru potegnili do tal, so izbrali nizek parapet na višini 45 cm, ki na zunanji terasi pod napuščem služi kot lesena zunanja klop, na vzhodni stranici pa se isti princip obrne, tako da jedilnica pridobi veliko površino za sedenje s pogledom na vrt in okolico. To je še ena preprosta in učinkovita poteza te hiše, ki se (nalašč ali ne) duhovito povezuje z njenim imenom.

Hiša Polica je nedavno prejela nagrado na festivalu OHS, ki se podeljuje na podlagi glasov najširše javnosti. Nagrado lahko razumemo kot priznanje občutljivi arhitektovi zasnovi, ki uporabnost in bivanjsko kakovost postavlja pred trendovski ali avtorski izraz, da bi tako na preseku tradicije in vzdržnosti ustvarila družinski dom.











Tloris pritličja

Tloris nadstropja

Tloris mansarde
Prereza

Ime projekta: Hiša Polica
Avtor projekta: Bojan Mrežar
Investitor: Boštjan in Mateja Lesar
Lokacija: Polica, Grosuplje
Leto načrtovanja: 2020
Leto izvedbe: 2021
Površine: 180 m² neto
Pritličje: 36 m²
Nadstropje: 73 m²
Mansarda: 71 m²
Parcela: 800 m²
Pozidana površina: 103 m²
Projektant arhitekture: Arhi-tura d.o.o.
Gradbene konstrukcije: EKOART hiše lesena gradnja d.o.o., Ciril Bogataj
Elektro instalacije: ELGOM Marko Golob s.p.
Strojne napeljave: Gregor S. Tavčar s.p.
Krajinska arhitektura: Sara Peternel s.p.
Izvajalci:
Glavni izvajalec gradbeno-obrtniških del: EKOART hiše d.o.o.
Gradbena dela (pritlični del): Kordiš gradbeništvo in inženiring d.o.o.
Notranja oprema:
Oprema razen kuhinje: Mizarstvo Gnidovec d.o.o.
Oprema kuhinje: Mizarstvo Zupanc
Dobavitelji gradbenih materialov:
Lesena konstrukcija: EKOART hiše d.o.o.
Okna, panoramska vrata: M Sora d.o.o.
Strešna okna: VELUX Slovenija d.o.o.
Senčila: Roletarstvo Medle d.o.o.
Streha: EKOART hiše d.o.o.
Dobavitelji hišne tehnike:
Elektro inštalacije: SMMG d.o.o.
Strojne inštalacije: H2O storitve in inženiring d.o.o.
Fotograf: Miran Kambič
Pripravil: Luka Jerman



