Od leta 2007 več Zemljanov živi v mestih kot na podeželju. Globalni trend preseljevanja v mesta se še nadaljuje in ta v zadnjih letih doživljajo enormno rast. V Sloveniji je trend obraten. Vse več ljudi išče svojo bivalno idilo na podeželju.

Razloge gre iskati v tem, da je Slovenija razmeroma majhna in je vse pri roki, po drugi strani pa je naše podeželje tako slikovito, da je skyline gorskih grebenov neprimerno bolj navdihujoč kot skyline postindustrijskih slovenskih mestec in generičnih nakupovalnih središč.

Selitev na podeželje ima tudi svoje slabe plati, predvsem je problematična stihijska razpršena generična pozidava krajine, ki briše edinstveno kulturno identiteto prostora. Ta proces je na slovenskem podeželju prisoten že več desetletij in trend je v zadnjem času še v porastu.
Hiša, ki jo predstavljamo v pričujočem članku, je eden od mogočih odgovorov, kako ta negativni trend spremeniti. Na problem odgovarja s kakovostno in subtilno arhitekturo.

Na prvi pogled ni nič posebnega – in prav to je njena največja posebnost. V okolje, kjer povprečne hiše med sabo tekmujejo, katera bo bolj slikovita, razgibana in barvita, vnaša red in mir. Hiša je preprosta. Vendar je v življenju tako, da do preprostih rešitev vodi najtežja pot.

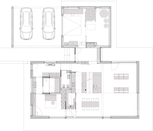
Hiša je, čeprav na prvi pogled ni videti tako, velika. Poleg bivalnih prostorov, spalnic (spalnica za starše in tri otroške sobe) z vsemi pripadajočimi kopalnicami in garderobami ter servisnih prostorov ima še manjši wellness, študijski kabinet, delavnico, shrambo za športno opremo in nadstrešnico za dva avtomobila. Arhitekta sta program razporedila v dva med seboj povezana stavbna volumna. Nastala je kompozicija, ki od daleč spominja na tradicionalne podeželske hiše, od blizu pa ponuja razgiban prostor za sodoben način bivanja.
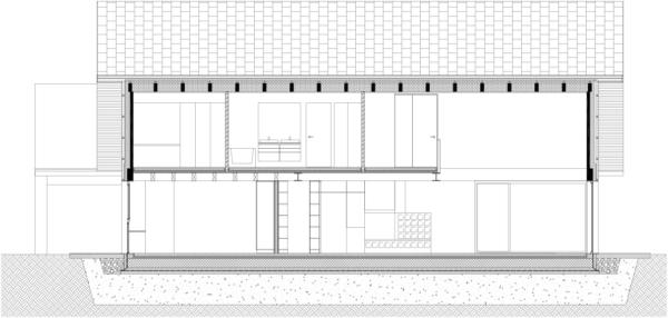
V središču hiše je, kot se spodobi, ognjišče. Okoli njega so v pritličju nanizani bivalni prostori, ki se prek prostranih panoramskih oken odpirajo k naravi. V nadstropju so nanizane spalnice oz. otroške sobe. Celotni volumen pa »prebada« praznina, ki vertikalno povezuje obe etaži in se konča v majhni galeriji pod slemenom strehe. Namenjena je igri otrok.

Preprostost hiše se odraža tudi v izboru materialov. Tako zunanjost kot notranjost sta arhitekta premišljeno izoblikovala s tremi osnovnimi elementi: masivnim lesom, belimi stenami in velikimi zasteklitvami.

Hiša stoji na robu vasi. S svojo umirjenostjo in skladnostjo ustavi naš korak. Povabi nas, naj z njo za trenutek uživamo v harmoniji človeka in narave.

Podvrh, 2016–2019
Ime projekta: Hiša na podeželju
Lokacija: Podvrh, Braslovče
Arhitektura: BOAR + PESA
Avtorja projekta: Bor Pungerčič, u. d. i. a., Petra Stojsavljević, u. d. i. a.
Leto načrtovanja: 2016
Leto izvedbe: 2018
Površina: 310 m2 (bruto)
Pritličje: 150 m2 (neto)
Nadstropje: 90 m2 (neto)
Foto: Lara Žitko
Besedilo: Matevž Granda
Kmalu izide nova številka revije Outsider! Podarite (si) odlične vsebine!



