V rubriki Atlas predstavljamo brezčasno arhitekturo z vseh koncev sveta.
Modernistično hiško Korshagehus na Danskem je leta 1960 zgradil arhitekt Erik Korshagen za lastne potrebe.

Leta 1965 in 1984 je dodal še garažo in hišo za goste. Vse tri stavbe so bile leta 1999 vpisane v danski register zaščitenih stavb in krajev. Vse so zgrajene iz lesa s strmimi slamnatimi strehami po minimalistični zasnovi z navdihom japonske arhitekture.

Poletna hiša stoji na vrhu nekdanjega obalnega klifa, drugi dve stavbi pa sta ob njegovem vznožju. Prostor med stavbami je tlakovan – tudi zunanja ureditev je del arhitekture kompleksa.

Korshagehus je preprosta enonadstropna stavba, zgrajena iz lesa na drogovih, s konzolno kritimi sprehajališči na treh straneh. Stavba je pokrita s strmo, slamnato, polkapno streho. Strešni greben prebada pobeljeni dimnik. Stene so obložene z navpičnimi deskami, prekinjajo jih vrata z velikimi zastekljenimi deli, ki jih je mogoče zapreti z roletami, in zastekljen južni ščit. 
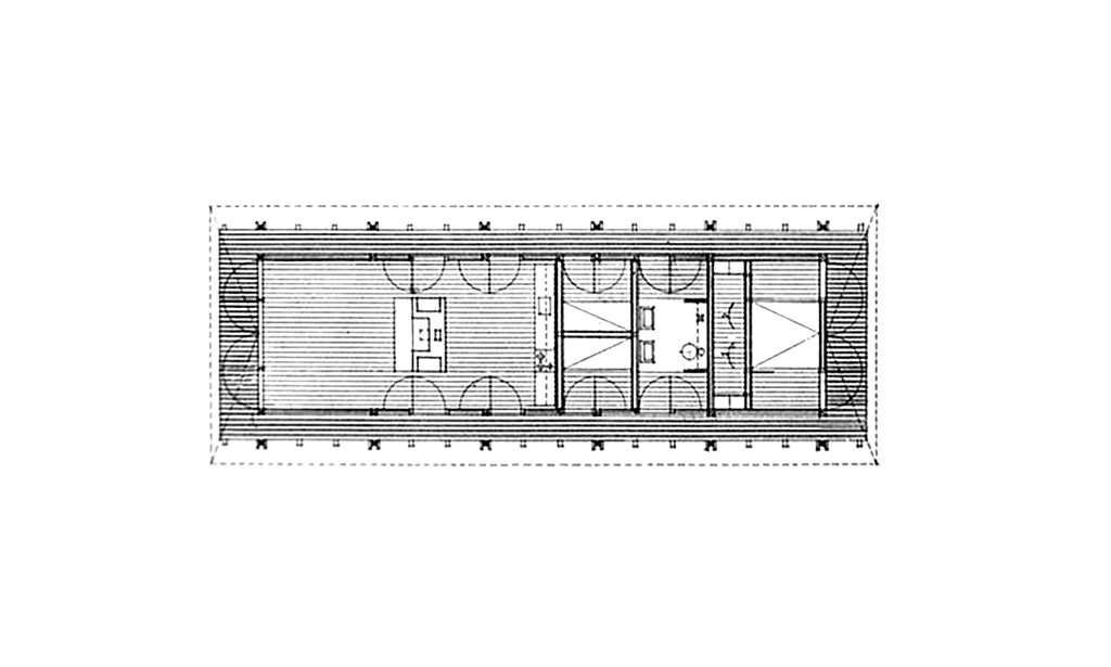
Hiša ima pravokotni tloris, ki meri 18 x 4 metre. Pod osrednjim delom stavbe je bila pozneje dodana ometana in črno pobarvana opečna klet, ki je služila kot opora leseni konstrukciji. 
Interier je simetrično organiziran po celotni dolžini stavbe. V južnem delu stavbe je velika dnevna soba, ki jo od sosednje kuhinje delno ločuje osrednje opečno jedro s kaminom in omarami. Spodnji del opečnega jedra je obložen z navpičnimi deskami. 

Na zgornjem delu je relief, ki ga je okoli leta 1987 izdelal Bjørn Nørgaard. V severnem delu stavbe sta najprej dve manjši sobi, nato kopalnica, ki jo obkrožata dva hodnika, in nazadnje, najbolj proti severu, spalnica v celotni širini stavbe. Podstrešje je ena sama velika soba brez virov naravne svetlobe. V kleti je savna in nekaj skladiščnih prostorov. 
Arhitektura: Erik Korshagen
Lokacija: Rørvig, Danska
Foto: Keld Helmer-Petersen
Pripravila: N.G.



