Interier stanovanja Dama, ki so ga oblikovali arhitekti Idea:list studia, je natančno premišljeno in celostno oblikovano. Elegantna meščanskost stanovanja je tudi izrazit odraz naročnice.





Mehke, zaobljene linije v projektu dobro pridejo do izraza, ker so uporabljene le tu in tam, v kombinaciji z ostrimi koti in volumni. Tudi materialnost pripomore k razvoju značaja – toplina lesa v kontrastu z različnimi elegantnimi odtenki modre, premišljena uporaba tekstila in žametno oblazinjeni detajli nam v mislih orišejo lastnico.






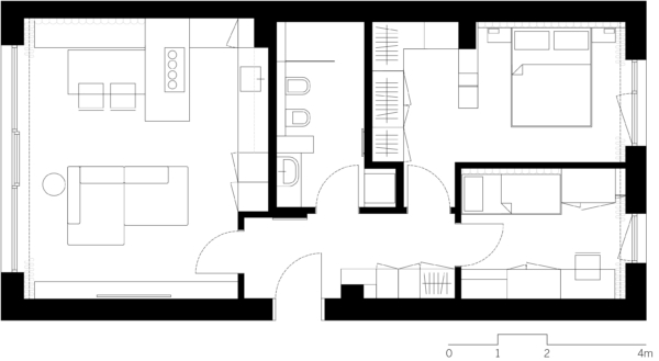
Uporabnost stanovanja sledi potrebam in vsakdanu naročnice, ki je prepleten s hobiji, delom, gosti … Zagotavljanje zadostnega shranjevalnega prostora za modne dodatke, športne rekvizite in vse ostalo je uravnoteženo skozi preprost princip izmenjevanja volumnov in praznin. Kot protiutež omaram se tako pojavljajo prazni okvirji, namenjeni prehodu svetlobe in umestitvi lastnici ljubih predmetov, s katerimi lahko svoj dom še bolj personalizira.







Idea:list studio:
»Oblikovalskega pristopa lastnica ni začrtala z referencami, pač pa nam je pustila, da jo spoznamo – njo in njen značaj. Oblikovanje smo tako razvili zgolj na podlagi njenih spominov, vrednot in značaja. Največje priznanje pri končnem izdelku nam pomenita njeno zadovoljstvo in potrditev njenih najbližjih, ki pravijo, da v stanovanju prepoznajo njo – našo damo.«


Ime projekta: Dama
Avtor projekta: Idea:list studio – Urša Kres, Tina Begović, Urban Pahor
Investitor: zasebni
Fotograf: Blaž Gutman
Lokacija: Ljubljana
Leto načrtovanja: 2018
Leto izvedbe: 2019
Površina: 62 m2
Izvajalci: Mizarstvo Alič, KAUCH, Dorval
Notranja oprema: NOVA Showroom, Meavista, UVA – tekstil za interier, Sense of Design, Formadoma, Keramoteka
Piše: Gaja Golob
Radovedni? Naročite se na revijo Outsider!



