Preureditev stanovanja za mlad par so uresničili pri idea:list studiu. Stanovanje zdaj bolje ustreza življenjskemu slogu uporabnikov po uporabni plati, notranja oprema pa izraža tudi njun duhovit in živahen značaj.

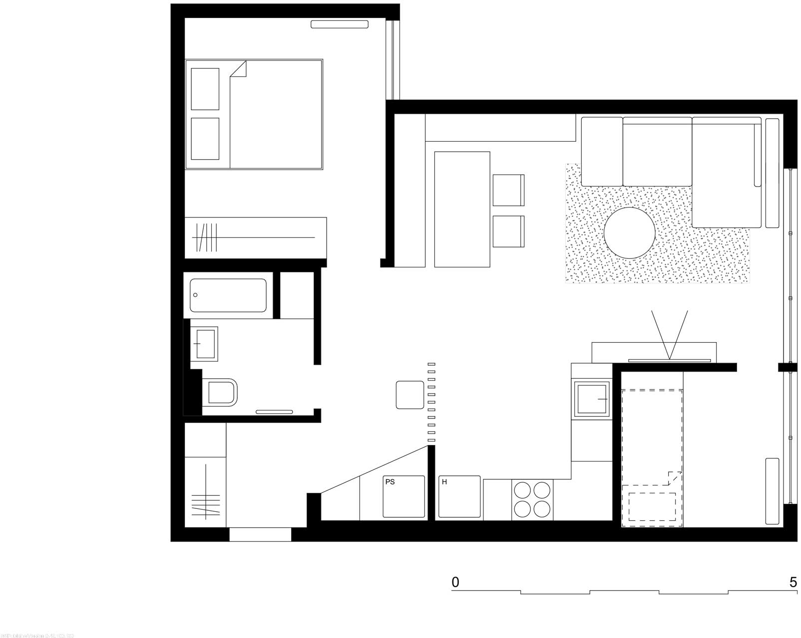
Posegov v obstoječi tloris je bilo pri tej prenovi kar nekaj. Par si je želel dodatno sobo – to so arhitekti priključili na velike zasteklitve v dnevnem prostoru, kuhinjo, ki zaradi odprtosti novega bivalnega prostora dobiva obilico svetlobe, pa so zavihali v obliko črke L. Dnevni prostor so povečali na račun spalnice, ki je bila prej nesorazmerno velika. Problem prejšnje razporeditve je bila tudi osvetlitev: zaradi obilice predelnih sten se dnevna svetloba kljub velikim zasteklitvam ni uspela preriniti niti do hodnika. Pozicija obstoječih nosilnih sten je seveda določala osnovno cirkulacijo v prostoru, in kljub odpiranju nekaterih je vstopni prostor ostajal ozek in temen. Arhitekti so k izzivu pristopili inovativno in steno med predprostorom in glavnim bivalnim prostorom prebodli s polkrogom, ki zdaj odpira pogled in prepušča svetlobo.

Znova je videti, da arhitekti studia idea:list površine prostora obravnavajo kot kompozicijsko celoto: liki različnih barv in tekstur skozi stanovanje vlečejo oblikovno rdečo nit. Odprti polkrog z lamelami denimo, dopolnjuje polkrog v predsobi, na katerem je obešen surf, drugi liki, ki so razpršeni po stanovanju, podaljšujejo linije in povezujejo posamezne elemente v celoto. Dodatno plast vizualnih dražljajev dodajo tehnični objekti, kot so radiator in nadometne cevi, pobarvani v funky barve. Arhitekti se jih niso trudili skrivati, temveč so jih samozavestno postavili na ogled, s tem pa jim podelili skoraj skulpturalno vlogo v prostoru.

Idea:list studio:
“Kljub temu, da je starejše stanovanje iz obdobja, za katerega je bilo sicer značilno racionalno ter kakovostno oblikovanje, le-to ne ustreza več sodobnemu načinu življenja mladega, družabnega ter duhovitega para. Stanovanje je bilo potrebno popolnoma prenoviti, v procesu pa sta si naročnika želela še nekaj funkcionalnih sprememb.”

Ime projekta: FUNKY
Projektanti: idea:list studio – Urban Pahor, Urša Kres, Tina Begović
Investitor: zasebni
Fotograf: Blaž Gutman
Lokacija: Ljubljana
Leto načrtovanja: 2020
Leto izvedbe: 2020
Površine: 56 m2
Pripravila: Ajda Bračič



