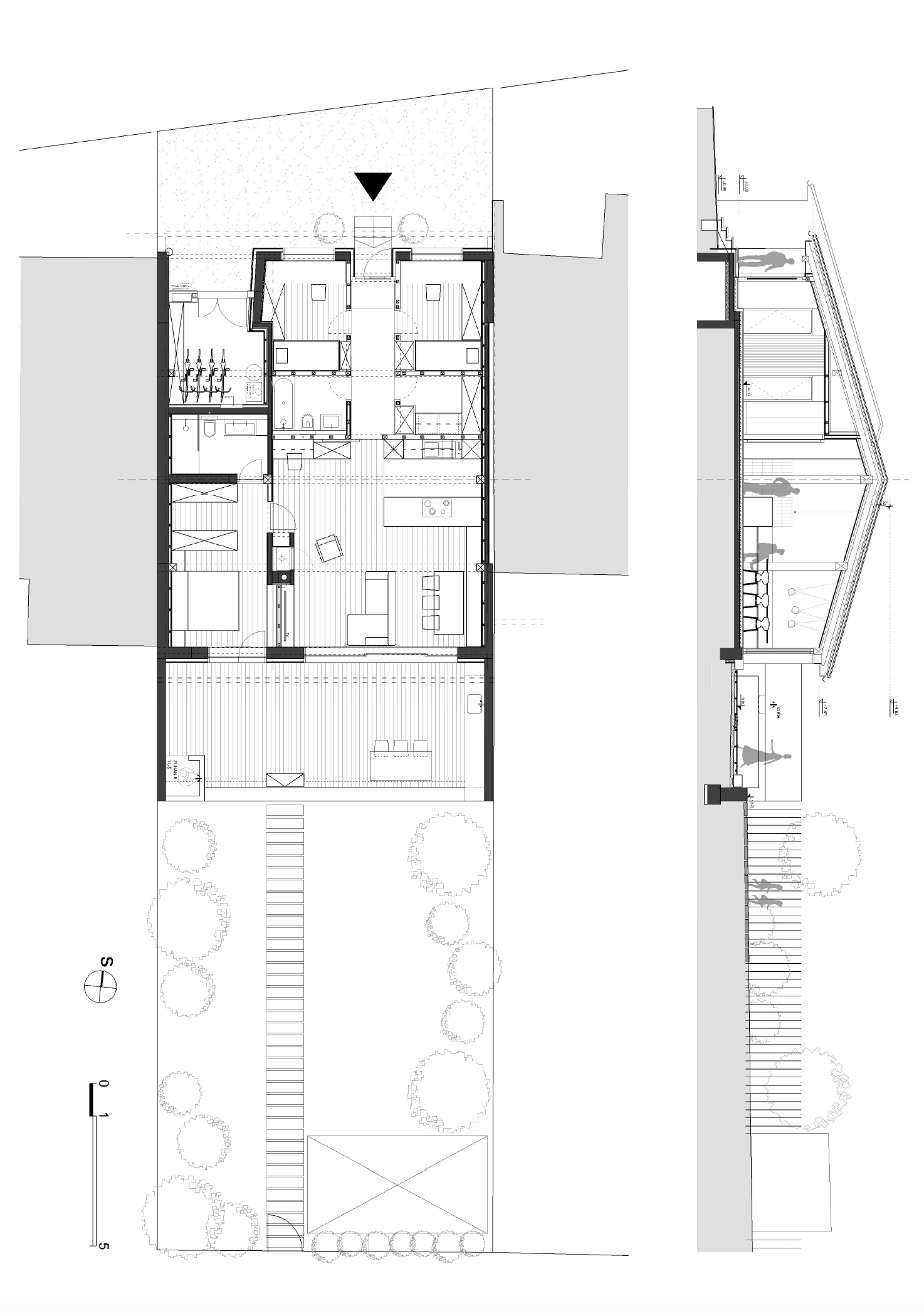
Štiričlanska družina iz Ljubljane je v iskanju svojega lastnega doma našla vrstno hišo v Podutiku, ki pa je bila potrebna temeljite prenove. Skupaj s preostalim naseljem je bila zgrajena v 60. letih 20. stoletja. Montažna pritlična stavba je dvignjena nad teren, prvotni lastniki pa so jo razširili z dvema zidanima prizidkoma: garažo in zimskim vrtom na južni strani. Ta je v kombinaciji z majhnimi originalnimi okni zmanjšal osvetljenost osrednjih bivalnih prostorov.
Naročniki so prenovo zaupali arhitektkama Kaji Lipnik Vehovar in Urši Rems, ki sta se odločili, da hiši povrneta prvotno ulično fasado. Potrebna je bila tudi prilagoditev tlorisa potrebam družine in sodobnemu načinu življenja. Zaradi skromnih dimenzij osnovne stavbe sta ohranili oba prizidka in ju vključili v novo zasnovo, osredotočeno na skupno življenje družine. Kuhinjo, jedilnico in dnevno sobo sta združili v velik dnevni prostor, ki se z velikim panoramskim oknom odpira proti vrtu. Prostor sta odprli tudi navzgor: strop sledi strešini, kar še dodatno pripomore k občutku prostornosti.
Pri izbiri materialov in barv sta se avtorici odločili za tople odtenke lesa, ki ga še poudarijo velike bele površine, z nekaterimi poudarki v sivi in olivno zeleni. Ob bivalnem prostoru sta uredili spalnico staršev z lastno kopalnico. Otroški sobi, kopalnica in utility so zasnovani zelo racionalno in opremljeni s pohištvom po meri, ki omogoča najboljši izkoristek omejenega prostora.
Kaja Lipnik Vehovar o procesu gradnje pravi: »Projekti so vedno odsev odnosa z naročnikom oziroma tega, kako naročnik razume vlogo arhitekta in interierista pri svojem projektu. Res smo odlično sodelovali, zelo smo si bili blizu v razumevanju, kaj je lepo in kaj nam je všeč, zato tudi ni bilo treba sklepati kompromisov. Nastali so lepi prostori in naročniki so zadovoljni, uživajo v svoji hiši.«

Ime projekta: Vrstna hiša v Podutiku
Avtor projekta: Kaja Lipnik Vehovar, Urša Rems
Lokacija: Podutik, Ljubljana
Leto načrtovanja 2020–21
Leto izvedbe: 2021–22
Površine: 123 m2
Parcela: 385 m2
Projektanti:
Gradbene konstrukcije: DIA, projektiranje in inženiring
Fotografije: Maruša Vehovar
Napisal: Patrik Benedičič



