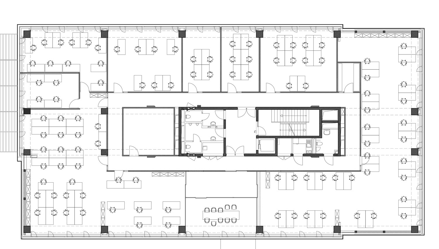
Dobra zasnova arhitekturnega oblikovanja in učinkoviti koncepti pisarniške tipologije predstavljajo veliko prednost zdravega, produktivnega delovnega okolja. V Ljubljani so arhitekti Kosi in partnerji prenovili pisarniške prostore podjetja XLAB, ki deluje na področju informacijske tehnologije. Pred prenovo so pisarne, nizane krožno okoli komunikacijskega, servisnega jedra, delovale kot zaprte, strogo ločene enote, ki jih je povezovala le krožnost anonimnega hodnika brez naravne svetlobe. Z novo zasnovo, prilagojeno razmisleku o poteku dela v podjetju in dinamiki vsakodnevnih interakcij zaposlenih, so ustvarili svetlo, odprto celoto.

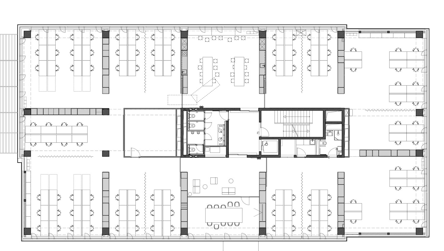
»Pri prenovi prostorov računalniško-razvojnega podjetja smo sledili ideji odpiranja, pretočnosti in povezanosti celotnega prostora,« so vodilni koncept projekta opisali v biroju. Med pisarnami so odstranili vse predelne stene in jih nadomestili z desetimi elementi, ki služijo kot večfunkcionalne omare. Za dodaten nivo zasebno skrbi premišljena umestitev zaves, ki omogočajo prostorsko organizacijo prostorov, hkrati pa z nežno prepustnostjo dopolnijo urejen, izčiščen ambient z mehkobno fluidnostjo. »Prostor je zasnovan enovito in ritmično z jasno potjo in organizacijo programa. Vsi elementi so oblikovani enotno, vsak od elementov pa je v svoji mikroorganizaciji unikaten.«

V sredino tlorisa so arhitekti umestili prostor s programom souporabe. Na eni strani je prostor za odmor s čajno kuhinjo, na drugi pa je manjši »lounge«, ki napove vhod v sejno sobo. Poleg tlorisne izčiščenosti poseben karakter pisarnam daje oprema, ki so jo v arhitekturnem studiu oblikovali s premislekom o naročniku in viziji, ki ji globalno podjetje sledi. »Elementi so zasnovani kot velike strukture, v mrežo katerih so ujeti omare, police, okna, delovni pulti, table, rastlinjaki … Elementi so fizična interpretacija mreže programske opreme, ki jo podjetje ustvarja. Materialno so omare izdelane iz belih profilov in polnil iz surove plošče MDF.«


Tloris pred prenovo:

Tloris po prenovi:

Skica koncepta:

Ime projekta: XLAB pisarne
Avtor projekta: Kosi in paernerji
Investitor: XLAB
Fotograf: Miran Kambič
Lokacija: Ljubljana
Leto načrtovanja: 2019
Leto izvedbe: 2020
Površine: 750 m2
Glavni izvajalec gradbeno obrtniških del: Promobile, d.o.o.
Notranja oprema:
Stare Tomaž, mizarstvo s.p. (mizarska dela)
Decor & Design, d.o.o. (premična oprema)
Svetlarna, d.o.o. (svetila)
Pripravila: Manca Košir
Delo revije Outsider lahko podprete s celoletno naročnino:


