Prenova v procesu je rubrika, ki raziskuje arhitekturno prenovo z obiski gradbišč. Prav tam prenova še ni bleščeč, zaključen arhitekturni projekt, temveč prostor, kjer se odpirajo različna vprašanja in dileme. Gre za iskanje odgovorov na vprašanje prenove in vedno vnovično vzpostavljanje odnosa med sodobnostjo in obstoječo substanco, bogato z zgodbami.
Na vprašanje, kaj je prenova, je odgovorov lahko toliko, kot je prenovljenih objektov. Nekateri arhitekti bi hišo prenovili, kot je bila nekoč, drugi verjamejo v posodobitev z novo intervencijo. Ne le to, konteksti starih hiš so zelo različni. Nekatere so bolj, nekatere manj poškodovane. Nekatere so stabilne že same po sebi, nekatere za preureditev v bivalne objekte potrebujejo »pomoč«. Pri vsakem projektu gre za odkrivanje in ponovno vzpostavljanje odnosa do obstoječega.
Manifestacijo mikrokozmosa odnosov novega do starega lahko lahko prepoznamo že v eni sami prenovi, Neues Museum Davida Chipperfielda. Nekateri deli prvotne zasnove muzeja Schinklovega učenca Stülerja so bili dokaj ohranjeni, drugi skoraj popolnoma uničeni v bombardiranju. Arhitekti so se zavedali, da skozi celoten projekt ne morejo vzpostavljati enakega odnosa novega do starega, saj lahko to v različnih situacijah privede do zelo različnih rezultatov. 10-centimetrske razpoke v zidu ni težko popraviti s posnemanjem okolice, pri 20-metrski razpoki pa je zgodba čisto drugačna. Tam je potrebna bolj konkretna, nova intervencija. To je v projektu rezultiralo v množici odnosov novega do starega, od subtilne restavracije do konkretnih posegov.
To pove tudi Matjaž Bolčina iz studia ARP, ko govori o svoji izkušnji prenove: »Včasih morajo biti posegi nevidni, spet drugič koreniti. Včasih je dovolj, da zgolj nakaže ali izpostavi že dano. Resnično je vse odvisno od posameznega primera.« V slovenskem prostoru je studio ARP vodil že kar nekaj prenov. Pred petnajstimi leti so prenovili (ruševine) stare domačije v Divači v muzej filmskih igralcev, v zadnjih letih pa so prenovili Tivolski grad ter hišo v Rožni dolini. Pri njihovih intervencijah se opazi raznolikost posegov – od vstavljanja pohištvenih volumnov v praktično nedotaknjeno substanco, do konkretnejših ukrepov, ki zaznamujejo tudi trenutna projekta v teku. Ta sta kulturni center Libertas v Kopru ter prenova nekdanjega hleva v bivalno hišo.
Slednji objekt se nahaja v Dobravljah, v sončni Vipavski dolini; valoviti pokrajini, zaznamovani z vinogradi. Na gradbišču smo se z arhitektom in vodjo gradbišča pogovarjali o izzivih prenove in konkretnih ukrepih, pa tudi o zgodbi objekta; konceptu, ki se nasloni na funkcijo in s tem vplete svojo lastno poetiko. Beseda pa je nanesla tudi na povezanost nekdanje anonimne gradnje z okoljem in pomembnostjo njene ohranitve. Hiša mogoče ne presega praga za zaščito v kontekstu kulturne dediščine, a zato ni brez vrednosti – to moramo biti zmožni prepoznati, da lahko ohranimo specifike in zgodovino prostora.
Sledi intervju na odprtem gradbišču z Matjažem Bolčino iz studia ARP.


Kakšna sta zgodovina in kontekst objekta?
Objekt je zaključek hiše v nizu in s svojo konstrukcijo nakazuje, da je bil prvotnemu volumnu dozidan kasneje. Nekoč je bil hlev, z živino v pritličju, v nadstropju so shranjevali seno. Oblikovan je skromno, utilitarno, njegova preprostost pa vendarle odslikava način gradnje in skrb naših prednikov. V času gradnje hleva je bila vez med človekom in prostorom še nepretrgana. V starih hišah so odtisnjeni geografija, teren, vetrovi, razpoložljivost materiala in zmožnosti tehnike. V vsem tem se odraža odnos do krajine in skupnosti, ki je viden tudi v organizaciji vasi.
Dobravlje niso tipična primorska strnjena vas, temveč jo sestavljajo zaselki, ki so med seboj še danes ločeni. Pravega centra vas nima. Celo cerkev sv. Petra, ki je prvič omenjena že v 16. stoletju, je zgrajena med polji, daleč stran od hiš. Razlog njene odmaknjenosti je nepojasnen. Zaselek, kjer se nahaja objekt, se je nekoč imenoval Dobrava (danes Hrobači) in ga sestavlja niz strnjenih hiš. Nespremenjeno zasnovo lahko zasledimo že na starih katastrih. Naš hlev zaključuje stavbni niz in je bil očitno dozidan kasneje. Hlev je namreč sestavljen iz treh zidov, njegov četrti zid je zid sosednje hiše. Detajl, na katerega nas je opozoril investitor, je odločilen tudi za novo rešitev.


Če bi sledili samo dosedanjemu opisu, bi imeli občutek, da je kontekst idiličen. Je res tako?
Ne. Odnos do prostora se je v zadnjem stoletju precej spremenil, ljudje so pretrgali tesne vezi s prostorom, zemljo in krajino. Bivanje je postalo drugačno, na krajino smo vezani bolj z vedutami kot z nujo. V zaselku so se v zadnjih desetletjih porušile mnoge stare hiše, zgradile pa so se nove, ki so večinoma zaobšle koncept strnjene zidave. Tudi oblikovno niso več odsev lokalnega prostora, temveč so stihijsko brezoblične.
Nekoč jasen kontekst strnjene vaške gradnje, ki ga obdaja kulturna krajina, se je v pol stoletja bistveno spremenil. Investitorjeva odločitev za ohranitev hleva in njegovo preobrazbo v novo namembnost je zato izredno pomembna. Prenova bo ohranila zaključno hišo v nizu, ki bo vsaj navzven ohranjala tudi svoj značilen izgled. Obenem bo omogočala družini nov, sodoben dom.
Prenova bo s tem prostorska in družbena.
Kako je prišlo do pričetka projekta?
Investitor je živel v bližini opuščenega hleva, zato ga je pred tremi desetletji tudi kupil. Že takrat je prenovil streho, kar je objekt ohranilo do danes. Po treh desetletjih je dozorela ideja, da bi objekt spremenil v enodružinsko hišo, ki bi lahko postala nov dom za enega od otrok.
Zakaj se vam je hiša zdela vredna ohranitve?
Nikoli nam ni prišlo na misel, da bi hlev porušili in nadomestili z nečim novim. S čim bi ga lahko nadomestili? Bi nam uspelo s sodobnim oblikovanjem ujeti pričevanje predhodnikov, bi ohranili njihove zgodbe? Bi lahko nadomestili enega zadnjih, še nedotaknjenih arhitekturnih elementov zaselka? Bi nam sodobne urbanistične usmeritve še dovolile, da bi hiša zaključila stavbni niz ali bi v vasi zgradili še eno ločeno hišo na sredini parcele?
Hišo bi preprosto lahko porušili, saj ni pod spomeniško zaščito. Naš hlev je anonimna arhitektura, ki ji ni uspelo preseči praga za zaščito. Nezaščitenega stavbnega tkiva je ogromno, zanj pa smo najbolj odgovorni arhitekti. Z rušitvijo hleva bi enostavno izgubili preveč.
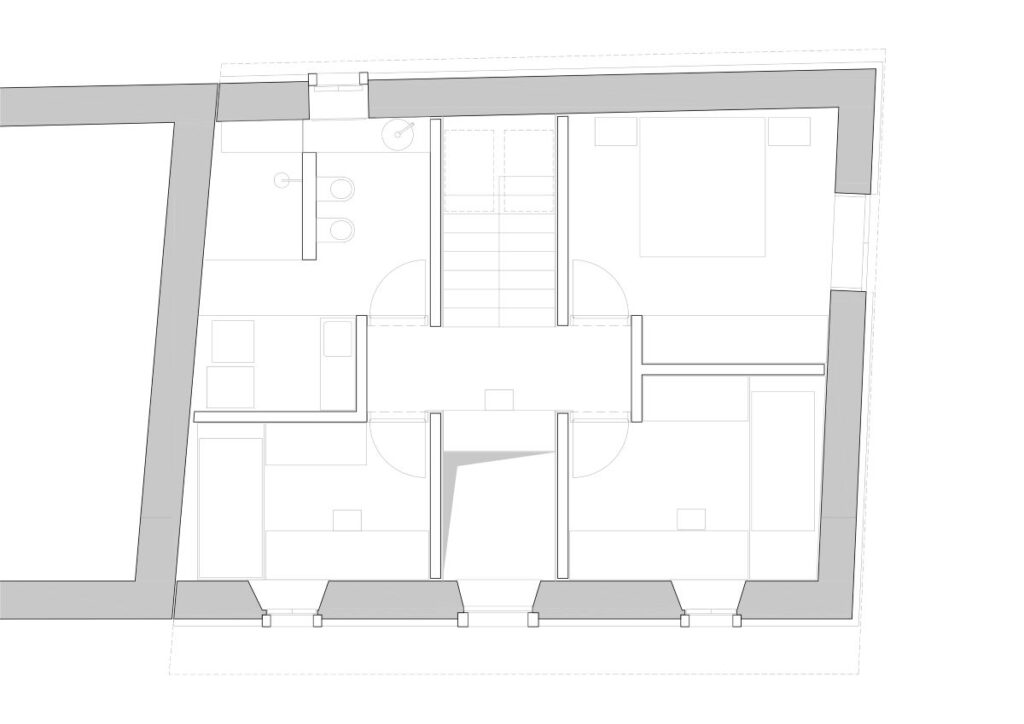
Predvsem pa je bil nekdanji hlev primeren tudi za enodružinsko hišo. Tlorisna organizacija je lahko upoštevala vse obstoječe odprtine, ki ostajajo na svojih prvotnih mestih. V fasado smo posegli zgolj na vzhodu.


Kakšen je vaš proces snovanja prenove?
Proces prenove je kot snovanje vsake arhitekture iskanje presečišča mnogih poti. Pri prenovi se presečišče zgodi v obstoječem, slednje ima glavno besedo in je izhodišče vsakršnemu posegu.
Prenova je sicer širok pojem, s še širšim poljem nalog in rešitev. Prenavljate lahko ruševino ali do potankosti ohranjen dvorec. Prenavljate lahko anonimno stavbno tkivo. Prenova ima izreden razpon, ki se s poglabljanjem zavesti o njenem pomenu samo še širi.
Včasih morajo biti posegi nevidni, spet drugič koreniti. Kaj bi v tem razponu lahko bilo skupno vsem prenovam? Verjetno to, kar iščemo v vsakem umetniškem delu. To je celovitost. Celovitost, ki sklene pripoved, idejo, koncept, ki tisto, kar je bilo in kar še bo, združi v berljivo in eno delo. Včasih je dovolj, da zgolj nakaže ali izpostavi že dano. Resnično je vse odvisno od posameznega primera.
S to mislijo prenavljamo. Za nami je že nekaj prenov. Začeli smo s prenovo Škrateljnove domačije v Divači, trenutno poleg objekta v Dobravljah prenavljamo tudi nekdanje skladišče soli v Kopru. Trije omenjeni objekti so si v izhodišču zelo podobni, njihove rešitve pa primerljive. Pri vseh treh smo med prazne zidove umestili novo konstrukcijo in program, ki komunicirata z obstoječim.
Povsem drugače pa smo zasnovali prenovo sprejemnih in servisnih prostorov na Tivolskem gradu v Ljubljani. Tivolski grad ima izredno jasno zasnovo in ni potreboval večjih sodobnih intervencij. Delo se je osredotočilo predvsem na odkrivanje jasnega historičnega stanja. V tem primeru so sodobni posegi zgolj nevidna vez, ki deluje povsem iz ozadja.


Ali ste med procesom odkrili kakšne nepričakovane posebnosti, zanimivosti?
Objekt je bil že pred pričetkom prenove prazen, manjkala je medetažna plošča, možno ga je bilo zaobjekti z enim pogledom. En prostor, trije zidovi, izvotljena hiša. Nismo pričakovali večjih odkritij ali presenečenj. Pozornost smo posvetili predvsem zidarski spretnosti naših prednikov. Kamnit zid je izredno natančno zidan, nad okni v pritličju je zaključen s kamni, zidanimi v loku. V nadstropju so nad okni nizke lesene preklade, ki levo in desno segajo v kamniti zid. Odprtine na glavni fasadi imajo kamnite okvirje, celo prostor med špirovci je pozidan s kamnom. Resnična skrb za gradnjo, če pomislimo, kako bi enako nalogo rešili danes.
Med prenovo skrbimo, da se večina detajlov ohrani, četudi ne bodo vsi vidni, bodo ohranjeni tudi za tiste, ki pridejo za nami.





Vaša prenova vzpostavlja materialno distanco do obstoječe substance, ki spominja na modernistični pristop, ki, sicer pri spomenikih, strogo izključuje rekonstrukcijo poškodovanega. Kakšen je razlog, da ste se odločili za intervencijo v jeklu namesto v izvornem materialu – lesu?
To je zelo kompleksno vprašanje, ki odpira temeljne vidike prenove in arhitekture nasploh. V mnogih primerih je strategija distanciranja prej zanimiv intelektualni in konceptualni manever kot dejanski diskurz z danim prostorom. Na tem mestu ne govorimo samo o prenovi. 20. stoletje je tako v umetnosti kot arhitekturi prežeto z mnogimi koncepti in strategijami, ki so povsem odtujeni od življenja. Spomnimo se misli Alberta Moravie, ki ob razmišljanju o Picassu ugotavlja, da so mnogi umetniki 20. stoletja ubili življenje v oblikah in jih skrčili na sheme. Umetnost 20. stoletja nam večinoma ne pripoveduje več, temveč nam želi nekaj dati.
Zakaj torej reinterpretacija v jeklu namesto ohranjanje izvornega?
Zelo smo zavezani jasnosti arhitekturnega koncepta, tudi ko govorimo o odnosu med obstoječim in novo intervencijo. Novega nikoli ne skrivamo. Ga pa tudi ne distanciramo od obstoječega. Namen prenove ni vzpostavljanje distance. Razlage mnogih sodobnih projektov, ki so utemeljene zgolj na dejstvu, da je nekaj izpostavljeno novega dodano staremu, nas ne prepričajo. V distanci je vedno pomanjkanje – bližine, odnosa, skupnega.

Zato se ne bi strinjali, da izbira novega, drugačnega materiala že pomeni to distanco. Razlog za intervencijo v kovini je zelo preprost. Investitor je izredno dober izvajalec vseh vrst kovinskih konstrukcij. Delu s kovino je posvetil življenje in svoje izkušnje prenesel na sina, ki danes vodi načrtovanje in proizvodnjo v podjetju. Idejo o kovinskem obroču oziroma pasu, ki stabilizira tri zidove in nadomešča četrtega, nam je sugeriral sam. Ideja samostojne notranje konstrukcije, ki nadomesti obstoječi zid, obenem pa nosi težo in vsebino nove etaže, se nam je zdela zanimiva.
V to idejo smo dodali 4 pare stebrov, da bi težo prenesli na tla in ne bi obremenili zidov. Z vidnimi stebri v pritličju šele razumemo pomen posega. Nova kovinska konstrukcija postane stičišče programskih, konstrukcijskih, funkcionalnih, bivanjskih vprašanj prenove obstoječega objekta. Ni samo konstrukcija, je tudi koncept prenove, način sanacije obstoječih zidov in je prostorska organizacija. Vse na štirih konstrukcijskih oseh, na osmih stebrih, ki odmaknjeni od kamnitega zidu, ne le da nosijo in prostorsko določajo novo vsebino v nadstropju, temveč imajo tudi neposredno nosilno vlogo. V teh osmih stebrih in kovinskem obroču je povzeta celotna arhitekturna zgodba prenove.
Ob tem bi še dodali, da se posegu v obstoječe ni mogoče izogniti. Morda je to mogoče zgolj v primerih ohranjenih ruševin, ki jih zavestno prepustimo učinku časa. Tudi v Dobravljah so posegi v obstoječe neizogibni. Na vzhodni fasadi vzpostavljamo sodobne, velike odprtine, ki bodo izboljšale bivalni prostor in ga povezale z vrtom. Na mestu okna na južni fasadi bodo nova vhodna vrata. Kamniti okvir okna, ki bo s tem odstranjen, bo vgrajen v kopalnico na severni fasadi. V primeru stroge (modernistične) distance tega ne bi smeli storiti in bi okno na severni fasadi moralo biti povsem novo. Koncept je vezivo arhitekturne prenove, ne sme pa postati premočno zategnjen pas. Končno, ljudje ne bivamo v konceptih.




Kakšen odnos želite vzpostaviti do obstoječe substance, kakšno vlogo ima ta v novi zasnovi?
Obstoječa substanca je temelj, vzvod in razlog arhitekture, o kateri govorimo. Brez obstoječe substance ta hiša ne bi bila taka, kakršna je. Trije ohranjeni zidovi in streha so izhodišče. Ohranitev treh zidov in nadomeščanje četrtega je bil prvi, konkreten vzvod novi arhitekturi. Ta vzvod sam po sebi še ne nosi nobenega prostorskega pomena. Nima nikakršne lirične dimenzije. Povezava treh zidov bi lahko bila samo gradbena gesta.
Na tem mestu nastopi arhitektura, ko iz mnogih izhodišč projekta, tudi najbolj banalnih, gradi novo celoto. Že opisana intervencija se prilagaja tako obstoječemu zidu z vsemi odprtinami, kot tudi tlorisni zasnovi enodružinske hiše. Na večkrat prehojeni poti od enega do drugega pa mora ohraniti še svojo jasno zasnovo. In končno, ker zgolj ta jasnost ni dovolj, mora v prostoru vzpostaviti še nekaj, kar sega onkraj koncepta in se uresniči v bivanjski izkušnji uporabnika.
Ali so se pri projektu pojavili kakšni problemi? Kako ste se jih lotili?
Če se pri tem vprašanju omejimo na tehnične vidike prenove, bi izpostavil dve vrzeli med preteklostjo in sedanjostjo. Prva je v načinu gradnje, ki je nekoč temeljila izključno na uporabi lokalnega gradiva, tehnika gradnje pa je bila v celoti podrejena gradivu. Stavbni detajli iz preteklosti nas danes privlačijo prav zaradi te zavezanosti notranji logiki materiala. Zanima me, če so se graditelji v preteklosti spraševali o lepoti gradnje ali je bila lepota preprosto prisotna preko njihove tesne vezi s prostorom in materialom. Današnjim izvajalcem so tehnike preteklosti slabo znane, tudi zaradi časa in stroškov, ki jih taka gradnja zahteva.
Druga vrzel je na poti iz sedanjosti v preteklost. Sodobne gradbene in predvsem bivanjske zahteve so stroge, zato je velik izziv med starimi zidovi doseči sodobno bivalno udobje, vsaj takšno, ki je normativno predpisano. Tistim, ki želijo prenavljati, vedno pojasnimo, da se bodo tudi sami prilagajali starim zidovom. Star zid ne more nositi vse odgovornosti.
Konkreten primer v Dobravljah je bila sanacija zidov proti vlagi. Gradnja v strnjenem vaškem nizu, kjer se vode odvodnjavajo bolj po naključju kot načrtovano, na tleh, ki vodo zadržujejo ob temeljih, je velik izziv. Vodi nismo zapirali poti, odvedli smo jo stran od objekta. Ob tem smo z našim projektom rešili tudi odvod vode za celoten stavbni niz. Poleg vlage bi lahko omenil še sanacijo stavbnega ovoja, predvsem iskanje primernih rešitev, ki bi zagotovili bivalno ugodje, obenem pa ohranili pričevalnost starega.

Kako ste se povezali z izvajalci za prenovo?
Kot smo omenili, je investitor izkušen izvajalec kovinskih konstrukcij. Dolgo je že vpet v lokalno gradbeno okolje, zato je sam izbiral izvajalce. Vsi izvajalci so iz Vipavske doline, dobro poznajo ljudi in okolje, v katerem delajo, od tod tudi občutek odgovornosti pri gradnji. Ob zadnjem obisku mi je izvajalec, ko sva bila skupaj na strehi, ki se prenavlja, pokazal svojo hišo na sosednjem hribu in mi povedal o razgledu na dolino.
Z izvajalci smo navezali profesionalen odnos, vsak pozna svoje mesto in zadolžitve. Veliko je komunikacije, tudi za najmanjše detajle in navidezne malenkosti. Koncept prenove se morda v začetku vsakemu izvajalcu zdi nenavaden (vsekakor jim je nov), zato ga vedno znova utemeljujemo.
To kar smo mesece razvijali na papirju, bo njihova spretnost udejanila v dejanski prostor. Dejstvo, da zna nekdo zamisli pretvoriti v prostor, nas je vedno fascinirala. Izredno pomembno je, da pripravljamo berljive načrte in jih po potrebi tudi dopolnjujemo. Načrti so naše orodje komunikacije.

V prvi fazi se usklajujemo predvsem z zidarji, ki delajo temeljna in večja dela. Več izzivov pričakujemo pri delu z obrtniki. Dejstvo, da so v zadnjem stoletju na krhkih krilih napredka izginile generacijske veščine gradnje, se pozna predvsem pri prenovah, ko je treba kakšen element uskladiti s tistim iz preteklosti.
Koliko časa traja prenova in koliko časa naj bi trajala po načrtu?
Gradbena dela se izvajajo od začetka lanskega oktobra. Gradbena dela vključujejo notranji in zunanji izkop, izvedbo drenaž in odvoda vode, notranjo temeljno ploščo, nove preboje, zamenjavo strehe in del zunanje ureditve. Dela naj bi trajala do konca februarja. Skupaj bodo gradbena dela trajala pet mesecev. Že pred pričetkom gradbenih del je bila vgrajena kovinska konstrukcija, ki je stabilizirala zidove in omogočila nadaljna dela. Kot rečeno, je ta dela opravil investitor sam.
Želimo si, da bi po zaključku gradbenih del čim prej stekla tudi obrtniška dela, ki bodo objektu dala končno podobo. Že zdaj iščemo primerne izvajalce stavbnega pohištva in fasade. Predvsem slednja je trd oreh gradbene industrije. Ometi v preteklosti so nosili sled materiala in roke obrtnika. Danes so ometi drugačni, manj materialni, na njih ni nikakršne sence.


Kako se odločiti, kdaj prenavljati in kdaj graditi novo hišo?
V zadnjem času se stroka in javnost vedno bolj posvečata pomenu prenov v zelo širokem okoljskem pomenu. Ta sprememba pogleda je pomembna, saj je prenova dobila enakovreden status novogradnjam, v kolikor jih ni celo presegla. Pogled na prenovo se je spremenil.
Vendar aktualnost teme ni dovolj. Kot pravi Pevsner, arhitektura ni proizvod družbenih razmer, temveč jo ustvarjajo spremenljivi duhovi spreminjajočih se časov. Pomembno je čutiti odnos do tega, kar prenavljamo, in biti pripravljen na kompromise. Če smo v 20. stoletju prilagajali okolje človeštvu, je čas, da se pričnemo tudi sami prilagajati okolju in obstoječi arhitekturi. Če nam prenova zagotovi primeren prostor bivanja, umika, varnosti, sreče, skupnosti, ne potrebujemo novogradnje.
Kaj vas pri prenovi najbolj pritegne?
Iskanje manjkajočega (sodobnega) arhitekturnega člena, ki omogoči nova poglavja v zgodbi obstoječe arhitekture. Pri tem imamo vedno v mislih dejstvo, da bodo v prenovljene objekte vstopale nove generacije. Naša prenova zagotovo ni zadnja.

Pripravila: Nina Dolar



