Arhitekti: SADAR+VUGA (Jurij Sadar, Boštjan Vuga, Tina Hočevar)
Fotografije: Miran Kambič
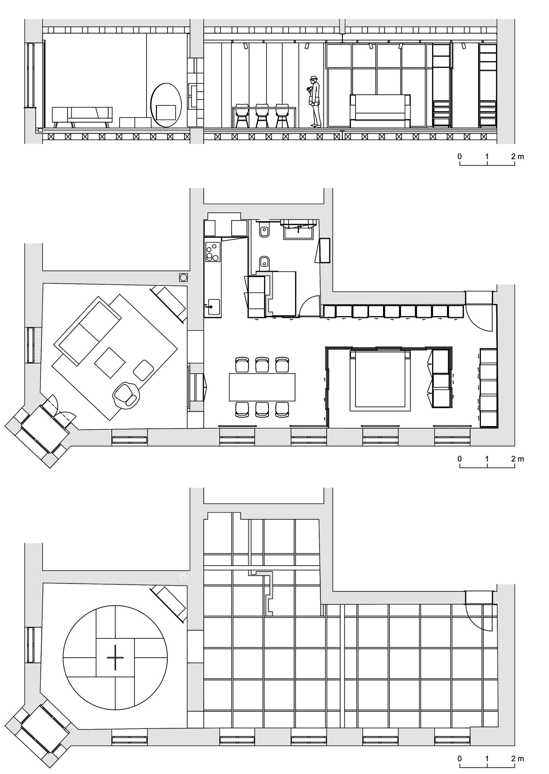
Stanovanje SP je prostor nasprotij: je hkrati toplo in hladno, mehko in ortogonalno, odprto in zaprto proti svoji okolici, v stiku in v konfliktu s svojo preteklostjo. Je interpolacija dveh različnih, a med seboj vizualno povezanih ambientov z različnima identitetama in materialnostima: lofta in salona.


Dnevni prostor, odet v teksturirane in tople materiale, je sodobna reinterpretacija secesijskega salona.
Ta materialno večplasten bivanjski prostor, ki se odpira na Kongresni trg, je svet zase. Materiali – od prosojnega oniksa, s katerim je obložen odprt kamin, do vintage parketa – se odsevajo v okroglem ogledalu na stropu, ki prevzame vlogo baročne iluzionistične freske. Prostor je ambientalno osvetljen: poleg svetlobe lestenca, ki se odseva tudi v ogledalu in površini kamna, je svetilo tudi kamin sam.


Loft definira stroga mreža aluminijevih nosilcev pod stropom: nanjo so pritrjeni drsni paneli, ki definirajo volumne kopalnice, kuhinje, spalnice in garderobnih omar. Odstiranje in zastiranje le-teh omogoča širjenje bivalnega prostora onkraj jedilnice v spalnico in kopalnico in ustvarjanje funkcionalno raznolikih ambientov – od enoznačnih do kompleksnih.

V loftu je uporabljena široka paleta materialov z industrijsko noto: aluminij, pleksi steklo, tekstil, beton in zrcala. Reflektorji na aluminijevih nosilcih, premišljeno razporejenih po mreži, enakomerno osvetljujejo prostor.


Stanovanje omogoča neke vrste vojerizem: z zofe lahko vidimo tako nasproti si ležeča kamin in balkon, skozi preboja se ponujajo pogledi v jedilnico in spalnico, stropno ogledalo pa nam omogoča celo pogled nase. Podobno nam izza jedilne mize pogled steče v kuhinjo, spalnico ali na stekleno tuš kabino, ki izzivalno meji na osrednji bivalni del.

Zastiranje prostorov s paneli omogoči ustvarjanje urejenih in funkcionalno ločenih prostorov. Odstiranje pa nam, po drugi strani, nudi plastenje vizualnih izkušenj: industrijsko in stilsko, eterično in zemeljsko, fizični prostor in njegov odsev.



Stanovanje SP
Ljubljana, Slovenija 2016
Tipologija: stanovanje
Vir: zasebno naročilo
Lokacija: center Ljubljane
Površina: 91,28 m2
Nadstopja: 1
Materiali: aluminij, pleksi in tekstilni paneli, betonski tlak, zrcalne površine, kamin iz oniksa
Arhitekti: SADAR+VUGA (Jurij Sadar, Boštjan Vuga, Tina Hočevar)
Fotografije: Miran Kambič



