V Studiu.a+v so poskrbeli za celovito prenovo enodružinske hiše v Podutiku in njen dotrajan interier spremenili v privlačen sodoben dom.





Štiričlanska družina z dvema majhnima otrokoma – tako si naročnike običajno zamišljamo arhitekti, ko oblikujemo generično stanovanjsko arhitekturo. Bivalne enote oblikujemo v skladu z namišljeno posplošitvijo ter idealiziramo robne pogoje projektov, da bi zadostili potrebam teh neobstoječih družin. Pa vendar, če bežno parafraziramo Tolstoja, si v resničnem življenju nista med seboj podobni niti dve družini, prav vsaka ima svoje specifične potrebe in navade. Znati prisluhniti naročniku ter se vživeti v kožo bodočih prebivalcev in soustvarjalcev arhitekture je lastnost, ki bi jo morali imeti vsak arhitekt – na ta način bi bil vsak realiziran projekt zares dober.





Arhitektom iz studia.a+v je nekaj tega uspelo uresničiti pri prenovi interierja hiše v Podutiku. Kljub temu, da je prenova estetsko dovršena, očem in dotiku prijazna ter se dobro fotografira, ni žrtev trenutnih modnih smerinc stanovanjske arhitekture. V sebi nosi nekaj brezčasnega, nekaj klasičnega, kar se ne pusti zapeljati trendom, in nekaj zelo specifičnega, nekaj, kar je prilagojeno karakterju točno določene družine. Novi stanovalci jo bodo seveda s časom naredili še bolj svojo, vendar se da hiši že takoj po sami prenovi čutiti, da pripada točno določenim naročnikom z vsemi njihovimi malimi posebnostmi.





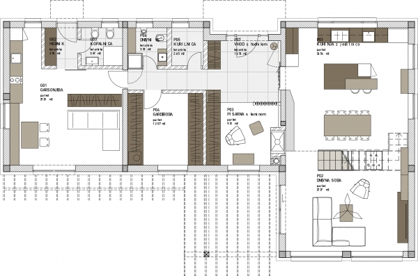
Velika knjižna omara, zanimivi detajli keramičnih ploščic in toplina lesa se dopolnjujejo s funkcionalno predelanim tlorisom, ki bo mladi družini zagotovil prijetno in udobno bivanje tudi, ko se bo njen karakter z odraščanjem in zorenjem prebivalcev postopoma spreminjal.
Studio.a+v:
Pri materialih in barvah, ki so uporabljeni v interierju, smo želeli doseči brezčasnost in uporabnost, zato nismo želeli vključevati trend barv, ampak smo ostali v nevtralnih in naravnih barvah v kombinaciji z lesom in kovino.
V sprejemni sobi s kaminom, ki je dvostranski in povezuje dnevno sobo s sprejemnico, je umeščena dolga vgradna omara v celoti oblečena v starano ogledalo, ki ustvari poseben efekt in z refleksijo vizualno poveča prostor, v njej se odseva tudi ogenj iz kamina.
Dodatek barve je le v otroškem delu, kjer se v kopalnici pojavi barva magente, kopalniška keramika pa ostaja v nevtralnih barvah z nekoliko bolj igrivim reliefnim vzorcem. Igrivost pri opremljanju se v otroškem delu nadaljuje z oblazinjeno nišo v omari, ki povzame obliko hiše v igralnici.

Ime projekta: Prenova hiše v Podutiku
Arhitektura: Studio.a+v
Investitor: zasebni
Fotograf: Klemen Brumec
Lokacija: Podutik, Ljubljana
Leto izvedbe: 2017
Površine: 240m2
Gradbena dela: Arba plus d. o. o.
Mizarstvo MBM Rezar
Luči Arcadia
Keramičarska dela: Gracia d. o. o.
Parketarska dela: Miro Čander s.p.
Napisala: Ajda Bračič
Podprite Outsider z naročilom!



