Arhitekti iz pisarne 3biro so v škofjeloškem predmestju zasnovali enodružinsko hišo neobičajne geometrične oblike.



Pod vznožjem hribovja, ki Škofjo Loko obroblja z jugozahoda, v mesto vodi stara cesta, ob kateri se pobočja začnejo zelo strmo dvigovati. Kljub temu je tam zraslo dolgo obcestno naselje in prazno parcelo v njem je preteklo leto zasedla nova enodružinska hiša, ki so jo načrtovali v arhitekturni pisarni 3biro. Strmina, na kateri hiša stoji, je tudi odločilni dejavnik za njeno zasnovo: da bi rešili nekaj osnovnih vprašanj lokacije, so arhitekti stavbo zasadili v zemljino kot zob. Z globoko korenino in neortagonalno obliko se hiša tako staplja s krajino in upošteva lokalne robne pogoje.




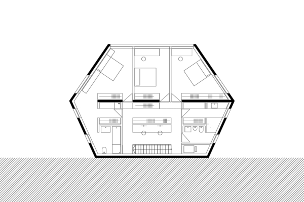
Vprašanja so bila tri, povedo arhitekti: najprej, kako ob že omenjenem hribovju na jugu objektu zagotoviti optimalno osvetlitev? Zaradi naklona terena in vkopanosti objekta so se bivalni prostori premaknili iz tradicionalnega pritličja v zgornjo etažo, kjer lovijo južno sonce skozi velike odprtine, spalni del pa je umeščen na temnejšo spodnjo stran. Drugo vprašanje so bili pogledi – mimo okoliške zazidave se namreč odpira panorama Sorškega polja in Alp na severu. Arhitekti so na to odgovorili z veliko razgledno teraso v zgornji ter dolgim panoramskim oknom v spodnji etaži. In še tretjič: kako objekt prilagoditi pritisku zemljine, ki ga tu in tam dodatno obremenjujejo hudourniki? Neortodoksna geometrična oblika stavbe ni naključje, temveč se elegantno odziva na statične potrebe objekta.




Hiša v Puštalu ne bi mogla stati nikjer drugje: upošteva vse zakonitosti lokacije, na kateri je zgrajena, in se vanjo vrašča kot neločljiv element prostora. Po drugi strani pa s premišljeno zasnovo lahko predstavlja arhitekturni prototip za kakovostno gradnjo na hudourniških pobočjih.

Ime projekta: Enodružinska hiša Puštal
Arhitektura: 3biro
Investitor: zasebni
Fotograf: Miran Kambič
Lokacija: Škofja Loka
Projektanti:
Gradbene konstrukcije: Gradbi, Iztok Zajc s.p.
Elektro instalacije: Esprit d.o.o.
Strojne napeljave: ProjektRant d.o.o.
Izvajalci: Zidarstvo Marko Božnar s.p., Tesarstvo in krovstvo Marko Česen s.p.
Leto načrtovanja: 2014
Leto izvedbe: 2017
Površine:
Klet (m2): 55m2
Pritličje (m2): 115m2
Nadstropje (m2): 60m2
Parcela (m2): 700m2
Pozidana površina 145m2
Podprite Outsider z naročilom!



