Je objekt v vinorodnih Halozah zgrajen zaradi stare vinogradniške stiskalnice, ki obvladuje glavnino notranjosti? Ali pa je bila stiskalnica pred stoletjem in več stesana zaradi hiše, ki jo danes ščiti?



Obe, stiskalnica in hiša, oblikujeta nenavadno celoto, v kateri si je težko predstavljati neovirano gibanje človeških teles, ki naj bi ga bivališča navadno omogočala.


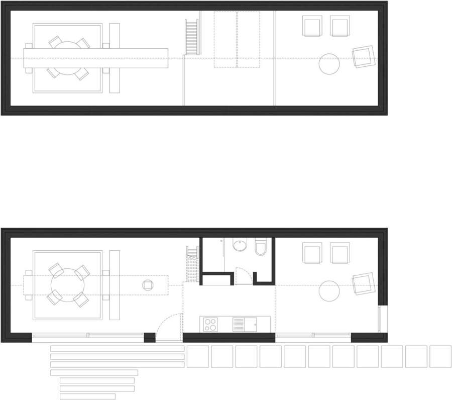
Vendar pa ne stojimo sredi nekakšnega abstraktnega spomenika stoletni vinogradniški tradiciji. Dejstvo, da se je novi arhitektonski okvir stiskalnici skoraj utesnjeno prilagodil, obiskovalca sili k neposrednemu stiku z vseobsegajočim arhaičnim kmečkim strojem, ki ga za še večjega delajo minimalne dimenzije asketskega arhitekturnega okvirja.



In ravno to dejstvo pretvori stiskalnico iz arhaičnega spomenika, kar bi v veliki jedilnici kmečkega turizma ali lokalni etnološki zbirki nedvomno postala, v prostorski eksperiment. Izkaže se namreč, da je stiskalnica že skoraj hiša: po njej se da posedati, na njej jesti, jo uporabljati za police in za shrambo.


Tu se arhitekturna poteza ne izkaže le za nekakšen servis potrebam, ampak tudi za minimalno gesto prisile. Vendar pa je ta prisila dobronamerna in osvobajajoča, podobno kot kadar nas kdo na plesišču potisne k plesalki, do katere si sami morda ne bi upali. Le redko nam je pozneje žal, tako kot tudi obiskovalcu hiše-stiskalnice ni žal, da je bil znano prisiljen odkrivati na neznan način.



Ime projekta: KALAS CONTEMPORARY
Avtorja projekta:
Matevž Granda, Aleksander Brezlan
Fotograf: Matej Lozar
Lokacija: Haloze, Brezovec, Cirkulane
Leto načrtovanja: 2008
Leto izvedbe: 2015
Površina: 61 m2
Percela: 856 m2
Besedilo: Miloš Kosec



