Javni pokriti bazen v španskem mestu Toro je zgrajen iz zbite zemlje. Zasnovali so ga v arhitekturni pisarni Vier Arquitectos.





Arhitekti so stavbo novega bazena razumeli kot javno stavbo, ki se mora samozavestno in reprezentativno umestiti v obstoječe mestno tkivo. Ne da bi pozabila na sodobne arhitekturne smernice, mora po svojih najboljših močeh zastopati tradicionalno arhitekturo regije in nadaljevati rdečo nit mestnega urbanizma. Stavba novega bazena je zato navzven monolitna in mogočna. Najbolj pa jo zaznamuje to, da so obodne stene zgrajene iz zbite zemlje.





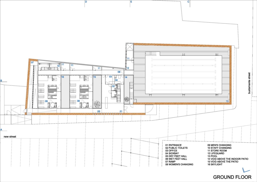
Obodne stene preprečujejo poglede iz okolice in proti mestu obračajo čvrsto fasado, ki pa je zaradi edinstvene materialnosti zbite zemlje kljub vsemu skoraj ornamentalna. Za obodno steno se dvigajo strehe garderob, in tako je že z ulice mogoče slutiti, da se v notranjosti stavbe skriva večja razgibanost. Takoj, ko stopimo čez prag, se pred nami odpre serija notrajih dvorišč, senčnih in sončnih prostorov, ki obkrožajo glavni bazen – pravo mediteransko kopališče, ki v vročih poletnih dneh s premišljenim senčenjem in ventilacijo, pa tudi zaradi izbire materiala, nudi hladno oazo sredi mesta.




Ime projekta: Občinski pokriti bazen v mestu Toro, Zamora (Španija)
Naročnik: Občina Toro
Natečaj: September 2004
Načrtovanje projekta: December 2005
Izvedba: Oktober 2006 – December 2010
Arhitektura in konstrukcije: VIER ARQUITECTOS SLP (Antonio Raya, Cristóbal Crespo, Santiago Sánchez, Enrique Antelo)
Sodelavci: Pablo Vilares Calvete, Cristina De Vera Juárez y Ruth Varela Rodríguez, arhitekti
José María Sastre Martín, monter
Izvajalci: Valsan Construcciones y Contratas S.L. (od marca 2009 – delna betonska konstrukcija)
Ferrovial Agromán S.A. (od septembra 2009)
Površine: 2.441,00 m2
Fotografije: Héctor Fernández Santos-Díez
Besedilo: Ajda Bračič



