Blizu Celja stoji hiša arhitekta Davorina Počivaška, ki skozi steklene stene svojega odprtega pritličja razgrinja prelepe poglede na celjski grad in bližnji sadovnjak.




Hiša, ki je leta 2015 pod taktirko arhitekta Davorina Počivaška zrasla v naselju blizu Celja, zelo odkrito parafrazira neko drugo hišo, ki je menda vsem sodobnim arhitektom vraščena v kolektivni spomin. Govorim seveda o hiši Farnsworth, ikonični arhitekturi, ki jo je na prelomu preteklega stoletja v Illinoisu zgradil Mies van der Rohe, in ki je sprožila več deset let trajajočo obsesijo z velikostjo stenske zasteklitve. Romantična predstava o človeku, ki v visoko industrializirani družbi živi v stiku z naravo, se danes, 70 let po hiši Farnsworth, z enakim zanosom odslikuje na Hiši Mraz.




Kar hišo Mraz dela drugačno in zanimivo, je njena lokacija – s tem ne mislim starega sadovnjaka, očarljivega skrivnega vrta, ki služi kot pribežališče pred dnevnim vrvežem mesta. Ne, bolj presenetljiva je njena umeščenost v slovenski prostor in njeno drzno preseganje le-tega. Življenje v steklenem paviljonu, ki popolno zasebnost ponuja le v notranjosti kopalniških in servisnih kubusov, zahteva nekaj poguma. Arhitekt je dodal še nadstropje, kjer v nekoliko bolj zaprtih prostorih bivata dva skoraj odrasla otroka. Kot je hiša Farnsworth to pred več kot pol stoletja počela na mednarodni ravni, hiša Mraz vztrajno preizkuša nove možnosti bivanja v Celju.
Elegantni jekleni stebriči okvirjajo sicer neprekinjen pogled na okolico in hiši dovolijo, da prav zares živi z vrtom. Okvirjajo pa tudi pogled navznoter, na premišljeno oblikovan interier in na uporabnike, ki v svoji transparentni hiši prebivajo z veseljem in v stiku z naravo.





Davorin Počivašek:
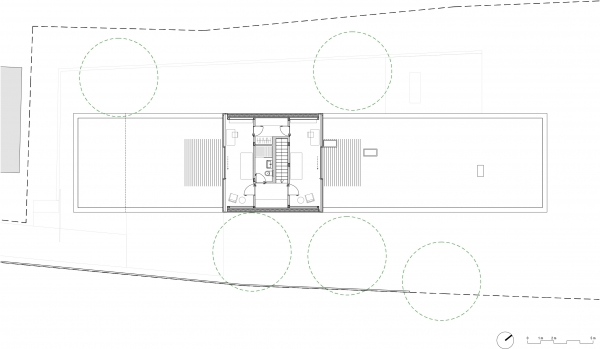
Zaradi oblike parcele je objekt zasnovan vzdolžno. Na strani kjer je dostop in so sosednje hiše, je zaprt servisni blok (kolesarnica, kotlovnica, skladišče) in pokrito parkirišče z vhodom. Bivalni del pritličja je popolnoma zastekljen, spalni in dnevni prostori so nanizani eden za drugim in se zaključijo z višjo dnevno sobo, ki izkoristi padec terena. Iz vseh prostorov je mogoč izhod na vrt preko velikih steklenih drsnih sten.




Fotografije: Miran Kambič
Ime projekta: Stanovanjska hiša Mraz, Celje
Leto izgradnje: 2015
Avtor: Davorin Počivašek u.d.i.a.
Krajinska arhitektura: Zaš Brezar
Proj. gradbenih konstrukcij: HP – hiša projektov d.o.o. / Ivo Hafner u.d.i.g
Proj. strojnih inštalacij: Ekoklima d.o.o. / Ivo Peperko u.d.i.s.
Proj. elektro inštalacij: Profi K2 d.o.o., Anton Kokelj d.i.e.
Gradbeni nadzor: Gašper Blejec u.d.i.g.
Izvedba: Tojnko gradnje d.o.o., Reflex d.o.o.
Velikost / neto: 233 m2
Napisala: Ajda Bračič
Podprite Outsider z naročilom!



