Hiša Casper je enodružinska mestna rezidenca, polna domiselnih rešitev, tehnoloških podvigov in zanimivih zgodb.



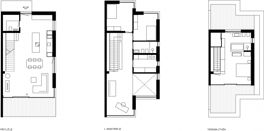
Casper je pravzaprav dvojček, a je njegova polovička, v kateri stojimo, samostojna in zaključena celota. V hiši se življenje pomika po vertikalni osi, navzgor in navzdol, z urami dneva, s soncem. Glavna prometna žila hiše je betonsko stopnišče, ki je pravi tehnološki dosežek. Ker se stopniščne rame vpenjajo le v medetažne plošče, ne pa tudi v nosilno konstrukcijo, je bilo potrebno pripraviti prav poseben okrepljen beton. Tako med steno in stopniščem nastane dovolj prostora za dimenzijsko in vsebinsko impresivno knjižno polico.



V pritličju stopimo ven, na zelen atrij, pa spet nazaj v kuhinjo z otokom, ki obiskovalca preseneti prav pri vhodu. Nekaj belgijskega menda, nekaj, kar diši po loftih in svobodnejšem načinu bivanja, kjer se ni treba drenjati v prenatrpanih vežah. V pritličju je tudi dnevna soba, v kateri najdemo obilico zanimivih pohištvenih kosov z živopisnimi zgodbami. Nad njo se odpira zračen dvovišinski prostor, stene katerega so dopolnjene z skrbno izbranimi umetninami. Kasneje se premaknemo višje, v srednjo etažo, kjer z galerije pogled zanese nazaj v kuhinjo, po hodniku navzdol pa najdemo dve otroški sobi.



Prav na vrhu, na razgledni točki hiše, kjer se okna ozirajo čez dobršen del Ljubljane, kot v orlovem gnezdu spita lastnika. Poleg postelje, od nje ločena le z žlahtno starinsko klopjo, sredi sobe stoji kopalna kad. Majcena predrznost, ki si jo lahko privoščiš, dražljiva kot liker sredi čokoladnega bonbona: pripraviti si kopel z razgledom na ljubljanski grad. Samo zato, ker lahko.


Miha Maček in Gašper Demšar:
Glavno vodilo pri oblikovanju hiše je to, da mora biti dobra. Ravnali smo se po nekih naših notranjih vzgibih ali občutkih, seveda v kombinaciji z znanjem in bogatimi izkušnjami. Pomembno je, da začutimo da je neka rešitev dober odgovor na prostorski problem ali izziv ter na potrebe in pričakovanja naročnika ter njegovega načina bivanja.

Ime projekta: Hiša Casper
Investitor: zasebni
Fotograf: Janez Marolt
Lokacija: Ljubljana, Trnovo
Leto izvedbe: 2014
Površine: 180 m2
Gradbene konstrukcije: Andrej Koglot u.d.i.g.
Elektro instalacije: Ingrid Kokalj u.d.i.g.
Strojne napeljave: Marko Vrabec u.d.i.str.
Napisala: Ajda Bračič
Podprite Outsider z naročilom!



