Prenova baročne palače v Galižani v nastanitveni objekt je delo arhitekta Emila Jurcana.

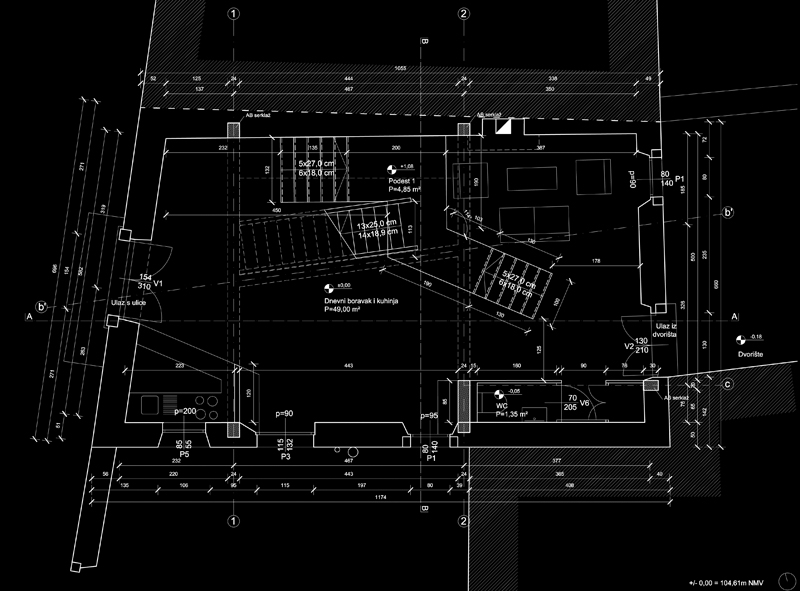
Rekonstrukcija palače z reprezentativnim baročnim portalom je arhitektu omogočila uresničitev ideje o stopnišču kot osrednjem elementu, ki določa smer gibanja v prostoru. Glavno kamnito stopnišče iz palače je bilo znova uporabljeno in prestavljeno v nov prostorski kontekst. Na nizki podest je mogoče priti z dveh strani: iz smeri glavnega vhoda in z dvoriščne strani. Vse stene v pritličju so odstranjene, da bi stopnišču zares pripadla osrednja vloga.




Novi, kovinski del stopnišča nato vodi do balkona v prvem nadstropju, ki predstavlja osrednji kraj srečevanja v palači. Stopniščna rama je rahlo zarotirana in usmerjena naravnost proti odprtini v fasadi, da bi svetlobi omogočila prodiranje v pritličje.

Avtor: Emil Jurcan
Sodelavci: Aleksandar Ćelović (arhitektura), Marko Martinčić mlajši (statika), Sunčica Mustač (konservatorstvo)
lokacija: Galižana, Istra
investitor: Kocka d.o.o.
izvedba: Kapitel d.o.o.
Leto izvedbe: 2017. – 2018.
fotografije: Edna Jurcan
Podprite Outsider z naročilom!



