Sredi Krajinskega parka Goričko, kjer med zaobljenimi griči, prepredenimi z vinogradi, travniki in gozdovi gnezdijo štorklje, stoji hiša, ki je kot gnezdo ptic selivk in po vzoru tradicionalnega stavbarstva nastala s strpnim zlaganjem v okolici najdenega materiala.

Gre za prenovljeno leseno kolibo, ob kateri je nekoč stala cimprača – značilna panonska hiša, narejena iz lesa, blata in slame. Ker je bila ta v zelo dotrajanem stanju, jo je bilo potrebno porušiti, a se je njeno izročilo materializiralo skozi prenovo še zdrave lesene konstrukcije nekdanjega pomožnega objekta. Za slednjo sta takrat absolventka arhitekture Alja Petric in takratni raziskovalec naravne gradnje Kristijan Zver uporabila gradiva, po katera se ni bilo treba odpraviti dlje kot pičlih 22 kilometrov stran.

Pri prenovi sta leseno konstrukcijo kolibe dopolnila s stenami iz slamnatih bal. Gre za način gradnje, ki v tej obliki izhaja iz Amerike, sicer pa pozna široko paleto različic od modularne gradnje do mešanja z ilovico in zbijanja. Slednje se je včasih uporabljalo pri konstrukciji tako imenovanih nabijanic – ilovnatih kmečkih hiš, značilnih za Balkanski polotok, nekoč razširjenih tudi v Prekmurju.
Bale, potrebne za konstrukcijo, so bile kupljene na bližnji kmetiji, postavljene med lesene stebre in nanje pritrjene s horizontalnimi lesenimi deskami. Na ta način se pri tovrstni gradnji omili posedanje slame, ki je sicer v manjši meri pričakovano.
Prav zaradi slednjega pa mora biti posebna pozornost namenjena kompresiji slame, poudari Alja. Učinkovito kompresijo dosežemo s kontrolirano izdelavo kakovostnih gradbenih slamnatih bal in z dodatnim stiskanjem izdelanih stenskih elementov z zategami, kot se jih običajno uporablja za pritrjevanje cerad na tovornjake. Tako so nastale približno 50 centimetrov debele stene. Sledilo je obrezovanje odvečnih slamnatih bilk z motorno žago ter nanašanje ometa. Na zunanjih stenah je bil uporabljen apneni omet, izveden v treh slojih: najprej se je na slamnato polnilo naneslo apneno tekočino za boljši oprijem, sledil je dvocentimetrski nanos grobega apnenega ometa, vse skupaj pa je pokrila približno centimeter in pol debela plast finega ometa. Za zaključni sloj v notranjosti sta avtorja izbrala ilovnati omet, prav tako v treh slojih, ki v prostore vnaša toplino, dobro regulira vlago ter posledično ustvarja ugodne bivanjske pogoje.

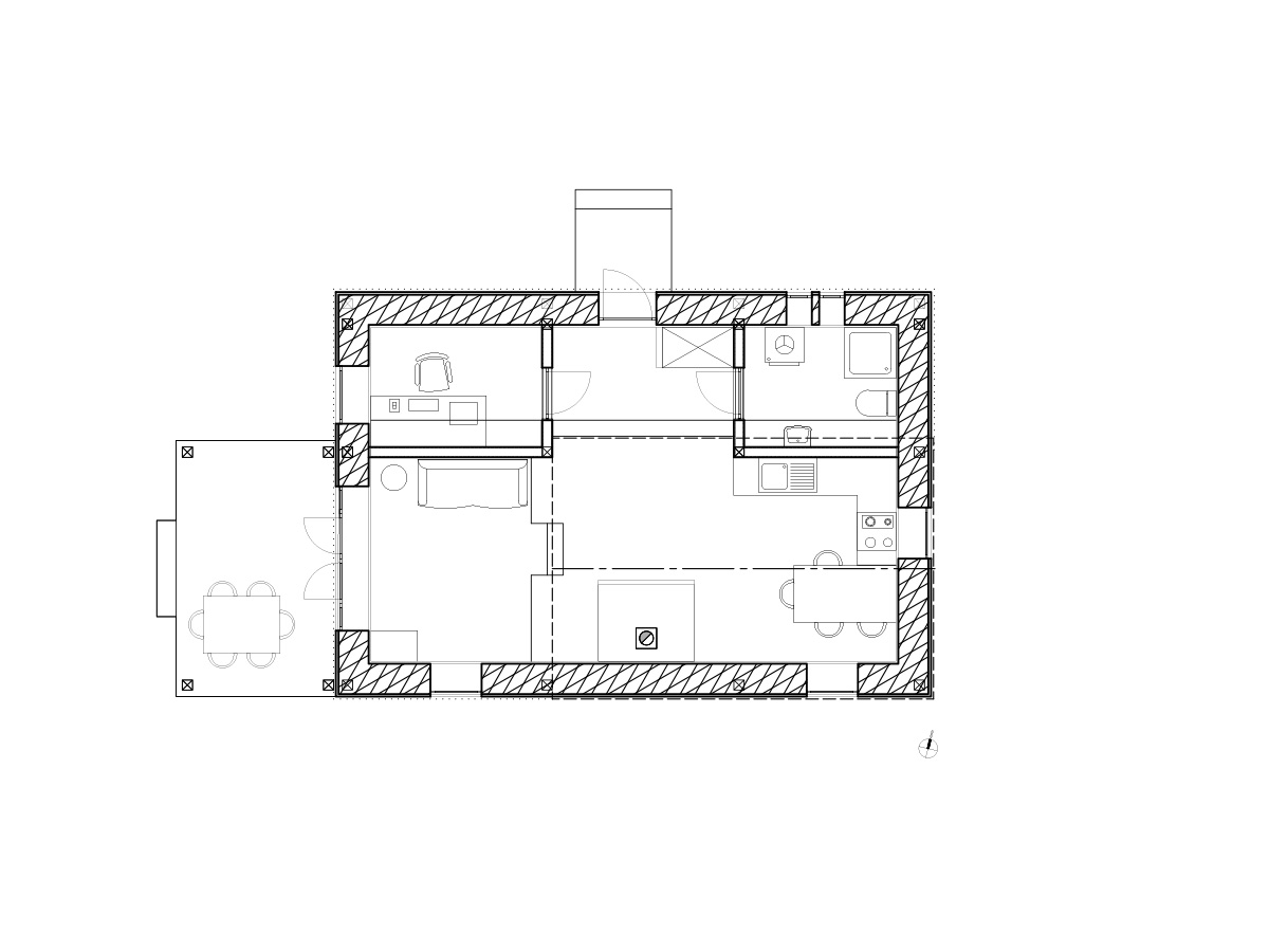
Preprosto tlorisno zasnovo malega objekta ločujejo predelne stene, izvedene iz stisnjene mešanice ilovice in slame, debele približno 10 centimetrov, na katere so bile kasneje pritrjene lesene deske, dodatno prekrite s plastjo trstike in ilovnatega ometa.

Obdana s toplimi stenami se ob vhodu na severni strani nahajata manjša soba in kopalnica. Ostala površina hiše, z izjemo spalnice v mansardi, je namenjena osrednjemu bivanjskemu prostoru: kuhinji in dnevni sobi, med katerima stoji krušna peč. Prostor druženja napolnjuje svetloba, ki pronica skozi velika okna in zasteklenjena balkonska vrata. Ta vodijo na teraso, objeto med leseno fasado in zelenje prekmurskega vrta.
Notranje prostore poleg naravnega ometa dopolnjuje igrivo oblikovanje stenskih elementov, polic, svetil in notranje opreme. Gibljiva slama in ilovica omogočata svojevrstno ustvarjalno izkušnjo ne zgolj pri načrtovanju, temveč tudi pri sami izvedbi. Večino notranje opreme sta avtorja izdelala sama, iz lesa, nabranega v neposredni bližini hiše, in suhih lesenih plošč ter tako tudi v notranjosti dosledno upoštevala vodilo lokalne gradnje.

Hišica v Gornjih Petrovcih, ki danes služi kot turistična nastanitev, je tudi deset let po izgradnji še vedno v odličnem stanju. Občasno je bilo potrebno zakrpati le posamezne razpoke, nastale na stikih lesene konstrukcije, prekrite z ometom.
Poleg konstrukcijskega materiala ter večine gradiv za notranjo opremo sta avtorja lokalno okolje vpletla tudi v sam proces izdelave – večino del sta izvedla bodisi sama s pomočjo prijateljev, sovaščanov ali prostovoljcev na delavnicah, ki sta jih organizirala med samo izgradnjo. S hišo sta, kot nekoč, gradila dom in skupnost, a oboje prilagodila drugačnemu, našemu času.




Ime projekta: Gorička lepotička – Eco house
Avtor projekta: Alja Petric, Kristijan Zver
Investitor: Alja Petric, Kristijan Zver
Lokacija: Šulinci 87, Goričko, Prekmurje
Leto načrtovanja: 2011
Leto izvedbe: 2011–13
Površine: 59,8 m², 80,9 m² bruto
Klet: /
Pritličje: 51,8 m² neto, 69,2 m² bruto
Podstrešje: 8 m² neto, 11,7 m² bruto
Parcela: 354,9 m²
Pozidana površina: 86,4 m²
Projektanti: Darko Ipša, Alja Petric, Kristijan Zver
Gradbene konstrukcije: delno obstoječa, delno lokalni izvajalec
Elektro inštalacije: lokalni izvajalec
Strojne napeljave: lokalni izvajalec
Izvajalci: Naravna gradnja s.p. (Kristijan Zver, Alja Petric)
Glavni izvajalec gradbeno-obrtniških del: Naravna gradnja s.p. (Kristijan Zver, Alja Petric)
Foto: Amadeja Smrekar
Pripravila: Pia Gerbec
Naročite se lahko v spletni trgovini ali pa nam pišite na: [email protected]
Hvala!



