Advertisement
_KAB2295-2002_LC
Meta Kutin, Tomaž Ebenšpanger: Hiša za preprosto bivanje

Recept za preprosto bivanje*

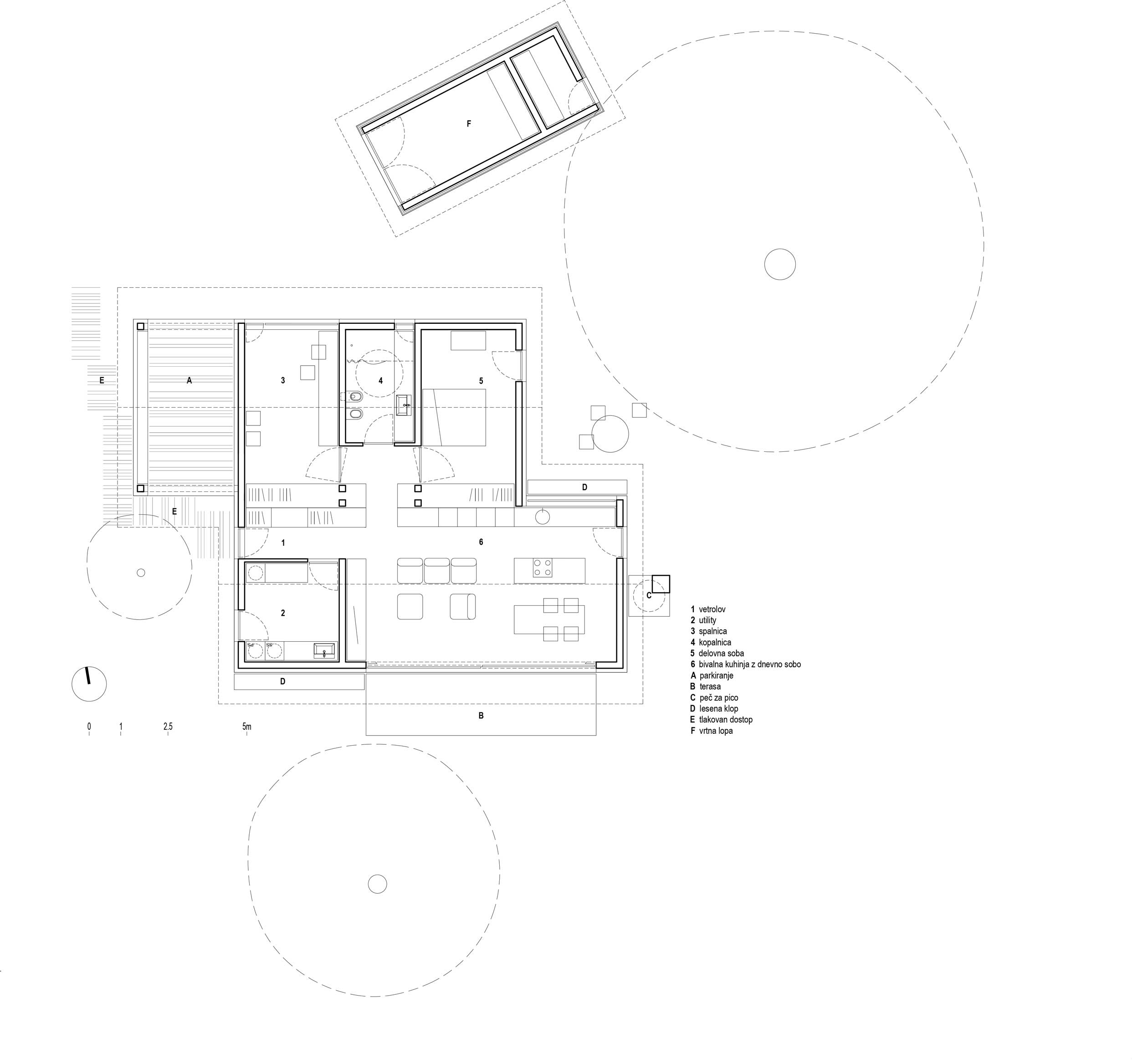
Za takšno hišo potrebujemo dva arhitekta, dva naročnika (par na pragu tretjega življenjskega obdobja), obstoječe gospodarsko poslopje, dve drevesi, južno orientacijo, zidano peč za pizze (po okusu), in okvirno montažno konstrukcijo.

Hišo postavimo, denimo, na lokacijo v bližini Litije, da se ji pogled lepo odpre proti okoliškim gričem in Šmartnemu v daljavi. Tudi če je lokacija zazidljiva le na neugodnem trikotnem območju, hišo pametno razdelimo na dve lameli in ju rahlo zamaknemo, da pridobimo na pogledih. Potem pripravimo leseno montažno okvirno konstrukcijo in jo pokrijemo s plastjo sive valovite vlaknocementne kritine.

Vse skupaj opremimo po pogovoru z naročniki in z jasnim vodilom: da bo življenje v hiši čimbolj enostavno. Odstranimo ovire, ki bi se morda lahko na pot postavile invalidskemu vozičku, če se bo ta kdaj zapeljal po hiši. Poskrbimo, da so pragi primerni za vsak korak. Vsemu skupaj pa dodamo veliko mero svetlobe in značaja naročnikov. Hišo napolnimo s spomini in poskrbimo, da se bodo spomini v njej še naprej ustvarjali.

Za ščepec drugačnosti ohranimo ob hiši zidano peč za peko pizz, ki jo je naročnik na tem mestu postavil že pred časom. Nad njo bodo navdušene vse generacije!

Preprostost hiše ne pomeni nujno, da je bilo preprosto njeno načrtovanje ali da je za njo preprost arhitekturni razmislek. Pomeni predvsem, da je hiša enostavna za uporabo in daje prednost tistim stvarem, ki so v življenju zares pomembne.

Pa dober tek!

Odgovarjata: Tomaž Ebenšpanger in Meta Kutin

Kako ste pri zasnovi hiše upoštevali dejstvo, da sta uporabnika v tretjem življenjskem obdobju? Na kaj je treba biti pri načrtovanju za starost še posebno pozoren?
Meta: Kateri so principi gradnje dostopnih prostorov brez fizičnih ovir je znano. Bolj zanimivo je raziskovanje načina projektiranja, ki bo naročnike v tretjem obdobju življenja pripeljalo do osrečujočega rezultata. Po mojih dosedanjih izkušnjah, starejši naročniki močneje kot mlajše generacije, iščejo neko kontinuiteto s svojo preteklostjo. Že tekom projektiranja je zato potrebno svoje odločitve razlagati s pomočjo naročnikovih preteklih izkušenj, si vzeti dovolj časa za podrobno razlago in za to, da vse tiste bolj posebne rešitve malo odležijo, da jih naročniki lahko predelajo, se z njimi poistovetijo.

Tomaž: Pričakovanja glede bivanja in življenski slog uporabnikov so v tem obdobju ponavadi že bolj izoblikovana in lažje razumejo, da se presežek stroke ne zgodi s formalnim bogastvom ampak gre bolj za preprosto in prepričljivo misel arhitekta. Znajo uživati v hrani, v knjigi, v glasbi ali v dobri družbi. Užitek iščejo in pričakujejo tudi v novem bivališču. Dostikrat se ne zavedamo, da v slabi arhitekturi slabše živimo. Hiša je v številnih rečeh zasnovana preprosto, a brez poenostavljanja. Med tema dvema besedama je zelo velika razlika; preprostost vsebuje veliko kompleksnosti, poenostavljenost pa te kompleksnosti ne vsebuje.

Hiša je napolnjena s predmeti, ki imajo za uporabnika močno spominsko vrednost, zunaj stoji tudi obstoječa peč. Kakšen je po vajinem mnenju najboljši recept za gradnjo novega, ki bo oplemenitilo obstoječe?
Tomaž: V našem primeru je uporabnikova želja ohranjanja obstoječe peči že v osnovi narekovala zasnovo, ki je črpala iz spomina preteklosti in ustvarila bivalno kvaliteto sedanjosti; v vidnem betonu obzidana stara peč predstavlja skulpturalni vertikalni poudarek sicer nizki podolgovati in zadržani zasnovi dveh razmaknjenih volumnov.

Meta: Posebno v notranjosti gre bolj za obraten proces, da smo s starimi predmeti in materiali, na primer z uporabo domačega lesa za pomembnejše kose pohištva, oživili sicer sodoben ambient. Sicer pa ni recepta, odgovor je odvisen od vsake posamezne projektne situacije.

Kako hiša odgovarja na problematiko razpršene gradnje, ki prevladuje v okolici?
Meta: Na zunaj popolnoma zadržana hiša, kljub pragmatičnemu izboru materialov, ki so že prisotni v okolici, z lahkotno prezenco in detajli osmišlja zaledje obstoječe okoliške zazidave. Z njim je zlita, kot da se je okolica oblikovala po njej. Razkošje prostora pa se pokaže šele ob vstopu in pogledu navzven proti panorami na jugu. Dandanes se razkošje precej površno interpretira preko dragih materialov in kričečega odstopanja, v resnici pa gre vedno predvsem za razkošje samega prostora in svetlobe.

Tomaž: Zanimalo naju je kako na dani lokaciji narediti hišo, ki bo v največji možni meri izkoriščala vse prostorske danosti lokacije; pogledi, osončenost, …, s svojo umeščenostjo in pojavnostjo pa umirila neposredno okolico s prevelikimi enodružinskimi hišami, delavnicami ter raznimi prizidki. Hiša je tako od daleč videti preprosta, ko stopimo bliže pa pozornost pritegnejo avtorski detajli in uporaba v prostoru že prisotnih materialov reinterpretiranih na sodoben način.

Ime projekta: Hiša za preprosto bivanje
Arhitektura: Tomaž Ebenšpanger (UM FGPA, Skupaj arhitekti), Meta Kutin (mKutin arhitektura)
Lokacija: okolica Litije

Leto načrtovanja: 2017–18
Leto izvedbe: 2019

Površine:
Pritličje: 140 m2 (bruto) skupaj z nadstreškom za avto
Parcela: 770 m2
Pozidana površina: 140 m2 hiša + 24 m2 ločen gospodarski objekt

Projektanti:
– Gradbene konstrukcije: Inženirski biro Vozel, Sašo Vozel s.p.
– Elektro inštalacije: IZR, d.o.o.
– Strojne napeljave: IZR, d.o.o.

Izvajalec: RIKO HIŠE, d.o.o., Gradbeništvo Sedevčič Zdravko s.p.
Izvajalec notranje opreme: Mizarstvo Otmar Tatjana Mušič s.p.

Dobavitelji gradbenih materialov: RIKO HIŠE, d.o.o., Eternit Slovenija, d.o.o., Marles PSP, d.o.o.

Fotograf: Miran Kambič

 

Prispevek je bil objavljen v Outsider #21: Sožitje, spomladi 2020.

 

*Za dobro arhitekturo seveda ni recepta.

Mailchimp brez napisa

Dobrodošli na spletnem portalu

Vsebine spletne strani so drugačne od vsebin v reviji! Z naročnino omogočite nastajanje visokokakovostne vsebine o kulturi, arhitekturi in ljudeh.