Vabim vas na popotovanje po Bežigrajskem športnem parku. Zaenkrat gre na srečo samo za virtualno popotovanje. Vendar pa časa zmanjkuje – če se ne zganemo, bomo čez nekaj let imeli priložnost, da bomo lahko tako kot stari Rimljani v živo objokovali dekadenco, ki bo nastala na ruševinah bolj slavne preteklosti. Pred desetimi dnevi je bila na Ministrstvu za okolje in prostor ter na njihovih spletnih straneh namreč objavljena javna razgrnitev načrtov za pridobitev gradbenega dovoljenja za Bežigrajski športni park. Gre seveda za projekt, ki razdvaja že več kot desetletje, in od katerega je odvisno, kaj se bo v prihodnosti zgodilo s Plečnikovim Bežigrajskim stadionom. Dobra novica je, da so zdaj končno javno dostopni vsi projekti, dovoljenja in dokumentacija – zavajanja in manipulacije glede vsebine in posledic projekta so tako vsaj malo manj preprosta. Slaba novica in povzetek tega članka pa je: če bodo načrti realizirani, Plečnikov stadion ne bo obnovljen, ampak uničen.
Walter Benjamin je zapisal, da je vsak dokument civilizacije obenem tudi dokument barbarizma. Tej prefinjeni in ambivalentni misli lahko dodam bolj banalno in sodobno ugotovitev: če želite v sodobni visoko civilizirani družbi izvajati veliko količino barbarizma, ta pač terja veliko količino dokumentacije. Količina dokumentacije Bežigrajskega športnega parka je impresivna. Dokumenti javne razgrnitve projekta vam bodo na disku zavzeli skoraj dva gigabajta. Če imate pred sabo ogromno gradiva z natančno izrisanimi načrti, dovoljenji in utemeljitvami, je prav mogoče, da je tudi količina barbarizma, ki jo zakrivajo ti birokratski zasloni, ogromna.
Priznati moram, da sem od dolgoletne polemike o uničenju Plečnikovega stadiona že precej utrujen, in verjetno nisem edini. V takšnih spopadih vedno obstaja nevarnost, da se dve strani vkopljeta vsaka na svojo stran, ponavljata argumente že prepričanim somišljenikom in na koncu morda celo pozabita razloge za začetni spopad. Prepričevanje že prepričanih me ne zanima. Zato je bilo osvežujoče preučiti načrte za pridobitev gradbenega dovoljenja in s tem tudi lastna stališča – da v njih morda le nisem pretiraval? Morda gre pa vseeno za razumski kompromis v razmerah, kjer ne moremo vedno izbrati idealnega scenarija? »Beggars can’t be choosers,« pravi angleški pregovor: berači le težko izbirajo, in ob napovedih ostre recesije, ki nas čaka, moramo morda malce znižati standarde. Zato ni slabo, da se lahko nekoliko odmaknemo od časopisnih polemik, mnenj bralcev in radijskih pogovornih oddaj, in se vrnemo k dobremu staremu arhitekturnemu načrtu. Ne gre zato, da načrt ne laže; arhitekti dobro vemo, da je način risanja in prezentacije ključen za dojemanje projekta. Isti projekt je lahko narisan in vizualiziran izrazito mikavno ali pa, obratno, izrazito problematično. Vendar pa načrt ne more povsem izkriviti dejstev, na kar smo se že navadili pri izjavah pred kamero ali v časopisju. Če upoštevate nekatera osnovna načela arhitekturne dokumentacije, kot je na primer enako merilo vseh sestavnih delov risbe, si lahko oblikujete vsaj kolikor toliko objektivno sliko o razmerju med novim in starim, ruševinami in rekonstrukcijami, ohranjanjem in uničevanjem.

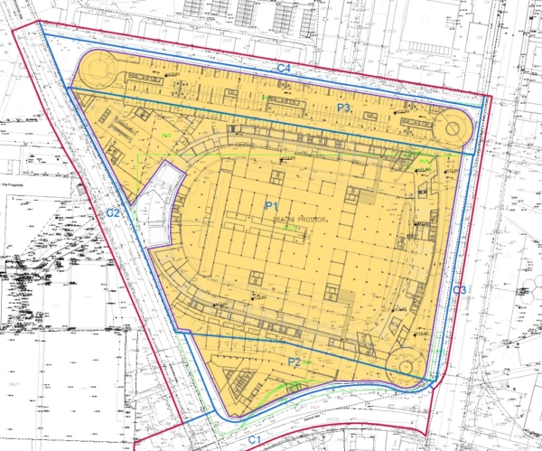
Začnimo z načrtom 3. kleti Bežigrajskega športnega parka. Gre za območje, ki pokriva celotni stavbni otok Bežigrajskega stadiona. Natančneje: skoraj celotni stavbni otok. Na zahodni stranici lahko opazite majhno nepozidano zarezo – to je navidezni kompromis: Plečnikova glorieta se iz podkletitve izvzame. Skupaj s stebriščem tik ob cesti na Dunajski bosta ohranjena, celoten stadion med tema dvema skrajnima točkama pa bo uničen, razrit in podkleten v štirih etažah, nato pa pozidan z ogromnimi novimi volumni. Kako je mogoče varovati dediščino tako, da jo podremo, podkletimo, nato pa v novogradnji, ki zraste na njenem mestu, predvidimo tribune na mestu, kjer so nekdaj že bile?

Razmerje med novim in starim, med varovanjem (ali rekonstruiranim) in »dodanim« je lepo razvidno iz prereza. Zdi se mi, da ta zadošča za učinkovito predstavo tako strokovnjaka kot laika, kaj je jedro projekta. Da bi lahko ilustriral, kaj so (tako ohranjeni kot rekonstruirani) elementi Plečnikovega stadiona, sem jih moral označiti z debelo rdečo črto, drugače bi se v masah novogradnje popolnoma izgubili. Klobuk snamem pred človekom, ki bi si upal javno zagovarjati tak prerez kot model varovanja dediščine.

S takšnim seciranjem predloga za novi Bežigrajski športni park bi kos za kosom lahko nadaljeval v nedogled. Vendar pa celoto prežema osnovni nesporazum: da je mogoče Plečnikov kompleks varovati tako, da tistih nekaj stebrov in betonskih balustrov ohranimo ali rekonstrukiramo. To popolnoma zgreši smisel varovanja kateregakoli dediščinskega objekta in Plečnikove arhitekture še posebej. Iluzija je, da je pri Plečniku česa vreden samo malo višji ali bolj opazen sestaven del – kot da bi po zapuščinski razpravi šli po babičinem stanovanju in si nabrali nekaj vrednih fragmentov, lepšo vazo ali kos družinske srebrnine. Nekaj neoklasicističnih stebrov ni to, kar dela Plečnikovo arhitekturo svetovno prepoznavno in vrhunsko. Gre za urbanistično in arhitekturno celoto. Če bi cerkev v Bogojini obdali z nakupovalnim središčem, v njeno notranjost umestili balinišče in ji z reklamnimi transparenti nadzidali stolp, bi jo uničili, čeprav bi ohranili vse stebre in stene objekta. Projekt Bežigrajskega športnega parka ohranja nekaj detajlov, še več jih rekonstruira, obenem pa popolnoma uniči celoto: razsežna športna javna površina se bo spremenila v šekulativni javno-zasebni komercialni kompleks z površinami in masami, ki nekdanji javni stadion ne le popolnoma uničijo, ampak tudi zanikajo njegov osnovni etos.
Dokumenti javne razgrnitve so še vedno odprto bojno polje: v običajnih razmerah bi bili za pritožbe, pripombe in intervencije na voljo 30 dni, v skladu z razmerami ob epidemiji pa je rok podaljšan in velja do 30 dni po ukinitvi začasnih ukrepov. Seveda pa gre za neenako bojno polje – na drugi strani so nekateri ministri že napovedali brezpogojno podporo projektu, drugi ministri pa so napovedali rahljanje nadzora nad realizacijo novih projektovin celo onemogočanje civilne družbe pri sodelovanju in nadzoru (“Minister za okolje in prostor Andrej Vizjak meni, da je gradbena zakonodaja pisana za normalne, ne za krizne čase, zato je ministrstvo za okolje razrahljajo predpise za gradnjo, s čimer nameravajo pomagati gospodarstvu. Paket gradbene zakonodaje omogoča takojšen zagon investicij, ki zdaj stojijo. Zakon namreč nevladnim organizacijam, ki varujejo okolje in kulturno dediščino, otežuje zaustavljanje gradbenih projektov.”). Očitno bodo uveljavljeni zakoni v realnosti po epidemiji ovira, ne pa osnovni standard. Bralci bodo nekatere osrednje obraze pritiskov za realizacijo Športnega parka Bežigrad prepoznali tudi iz drugih nedavnih časopisnih naslovnic, kjer se pojavljajo skupaj: med njimi vsaj gospodarskega ministra Počivalška in investitorja Pečečnika. Komentar ni potreben. Bo Koronakriza postala katalizator pospešenega uničevanja ali bolj vzdržne in manj barbarske civilizacije? Objavljeni dokumenti javne razgrnitve bodo morda postali drug v nebo vpijoč dokaz Benjaminove teze o dokumentih barbarizma; še vedno pa jih lahko uporabimo tudi pri uporu in pri preprečitvi vandalizma brez primere v naši novejši zgodovini.
Miloš Kosec
Vir načrtov: MOP
Podprite ustvarjanje revije Outsider in obiščite našo spletno trgovino.



