Soseska vrstnih hiš na Langusovi ulici v Ljubljani je nastala med leti 1955 in 1957. Zasnovali in zgradili so jo člani ljubljanskega društva arhitektov Marko Šlajmer, Bogdan Fink, Miloš Lapajne, Marjan Lešnik in drugi, z namenom rešitve lastnega stanovanjskega problema. Nizka in gosta zazidava omogoča neposreden stik z zunanjostjo in predstavlja alternativno obliko bivanja v zelenju, s čimer še danes zagotavlja visoko bivanjsko kvaliteto.

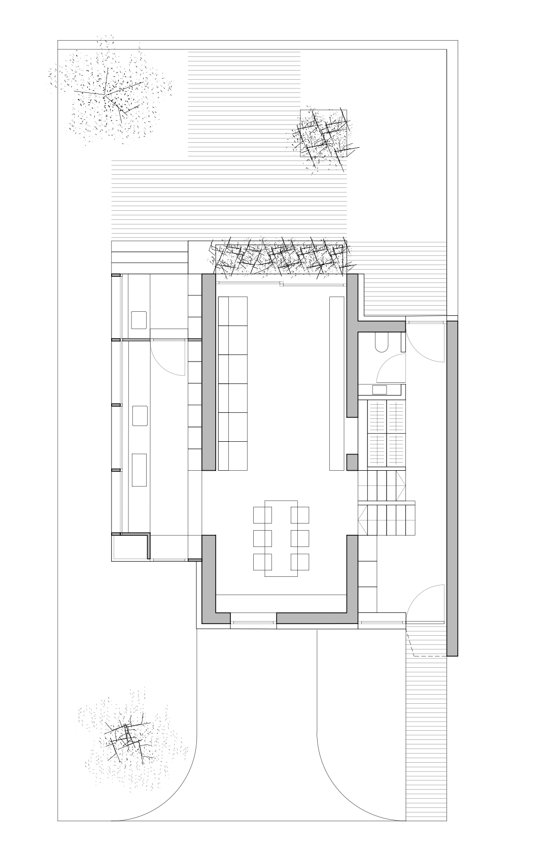
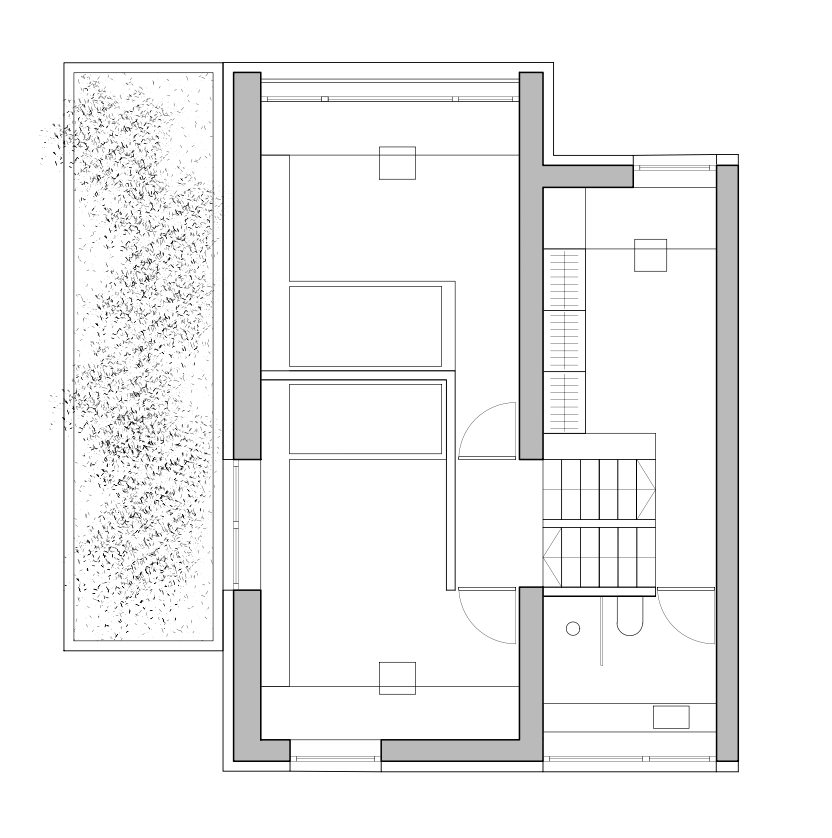
Arhitekta iz biroja Multiplan sta prenovila eno izmed 24 hiš v naselju. Projekt temelji na izhodišču minimalnih posegov v objekt, omejenih na tiste, ki ključno doprinašajo k optimizaciji prostora za sodobno bivanje in ne vplivajo na celovitost zasnove; soseska je namreč vpisana v register kulturne dediščine. Ozke in podolgovate parcele, široke le 6,5 metra, pogojujejo zasnovo hiš na Langusovi – prostor je organiziran po sistemu medetaž, širokih 4 oziroma 2,5 metra, ki se zlagajo po vertikali.


S prenovo so arhitekti 6 medetaž preoblikovali v enovit vertikalen prostor z osrednjim odprtim stopniščem, ki odpira poglede in vizualno povezuje posamezne prostore. Z izbranimi materiali, barvami in teksturami so želeli še nadgraditi idejo prepletanja prostora in doseči vizualne učinke, ki z minimalnimi posegi ključno prispevajo k boljši osvetljenosti in večjemu občutku prostornosti. Vizualni jezik prenove je estetski in preprost, s kombinacijo lesa in belih sten pa ustvari svetel in domačen interier. S premišljeno reorganizacijo programa so si arhitekti prizadevali za maksimalen izkoristek uporabnega prostora v vsaki medetaži. Prenovo interierja dopolnjuje dozidava pritličnega prizidka s kuhinjo ob severovzhodnem robu objekta, ki s preprostim gabaritom in umirjeno zunanjo podobo ne preglasi prvotnega izraza vrstne hiše.

Ko pripravljam predstavitve stanovanjskih projektov, arhitekte vedno vprašam, na kaj je potrebno biti pozoren pri oblikovanju sodobnega bivalnega prostora. Arhitekt Aleš Žnidaršič iz biroja Multiplan je odgovoril, da vsak projekt vedno znova postavi vprašanje, kaj kvaliteten bivalni prostor sploh je – in da pri iskanju odgovora ne moremo slediti uniformirani enačbi, ki bi lahko ustrezala specifikam posameznega prostora. Ključno pa je iskanje ravnovesja ravno pravšnje prostornosti, primerne svetlosti ter optimalne uporabnosti, ki mora biti skladno z načeli estetskega oblikovanja. Omenjene aspekte lahko opazimo tudi pri njihovi prenovi vrstne hiše na Langusovi.

Ime projekta: L21 – hiša NaGor
Avtor arhitekture: Marko Šlajmer s sodelavci: Bogdan Fink, Miloš Lapajne, Jurij Jenšterle in Marjan Lešnik
Avtor prenove: Multiplan arhitekti
Leto načrtovanja: 2020
Leto izvedbe: 2022-2023
Bivalna površina: 186 m2
Odgovorna konservatorka: Marija Režek Kambič
Lokacija: Ljubljana
Foto: Ana Skobe
Pripravila: Neva Mandić





