Od Sežane, kjer zavijemo z avtoceste, do Pliskovice vodi cesta, polna ovinkov. Med potjo se drug za drugim nizajo kraji, ki navdušujejo s svojo kraško identiteto, med njimi tudi Tomaj, domači kraj Srečka Kosovela, vmes pa se vpletajo suhi kraški gozdovi. V vaseh je opaziti še veliko pristne kraške arhitekture, razpadajoče ali zgledno obnovljene, hkrati pa tudi nekaj brezobličnih gradenj (grajene sredi parcele) iz druge polovice prejšnjega stoletja, ki neizbežno zaznamujejo del pokrajine.

Na to nanese tudi pogovor z Jernejem Bortolatom, kamnosekom iz Pliskovice, ki je izdelal kamnite jerte za arhitekta Roberta Prašnikarja. Ta skupaj s partnerko v Pliskovici prenavlja kamnito hišo. Kamnosek omeni pozitiven vpliv Ljubljančanov na Krasu. Prenove ljudi, ki niso domačini, pa so prepoznali kakovost kraške arhitekture, danes odzvanjajo v zavedanju domačinov – da je njihova tradicionalna arhitektura bolj posebna kot gradnja po tipskih načrtih, ki se je razpasla v prejšnjem stoletju.
Vsaka tradicionalna kraška hiša ima svoj borjač – ta varuje pred močnimi vetrovi, ki prihajajo s celine. V ograjeno dvorišče hiše stopimo skozi porton (kamnit okvir z lesenimi vrati). Odprt porton pomeni, pove Robert Prašnikar, ki se kraških navad uči od domačinov, da je v srce domačije – na dvorišče – dobrodošel vsak. Lahko pride potešit radovednost, pomagat pri delih ali pa samo, da spije »glaž« in spregovori besedo ali dve.
Tako sem tudi sama vstopila skozi odprt porton v srce kraške domačije, do hiše, ki jo prenavljajo.


Hiša na Krasu
Robert Prašnikar deluje v okviru Studia.a+v. Projekti, ki se jih v biroju lotevajo, so različni, od večjih javnih projektov, kot je na primer osnovna šola v Škofijah, prenove poslovne stavbe Baumit, enostanovanjskih hiš (prenove in novogradnje), pa tudi poslovnih in gostinskih prostorov ter interjerjev. Svoje delo tako tudi težko omejijo oz. ukalupijo na eno specifično kategorijo objektov.
Tudi prenova kraške hiše, ki se je je Robert lotil kot soinvestitor, predstavlja nov, neznan izziv. Pred letom in pol sta se s partnerko odločila za nakup stare hiše v Pliskovici. Pove anekdoto o tem, kako hitra je bila odločitev, ko sta videla, da je hiša prava: »Zjutraj sva zasledila oglas, popoldne sva se odpravila v Pliskovico in si po pol ure ogleda s prodajalcem segla v roko.« Na odločitev je nedvomno vplivala kakovost in logika tradcionalne kraške arhitekture z notranjim dvoriščem, proti burji zaščitenim z borjačem, ter lokacija hiše sredi vasi, ki pa vseeno ponuja nezastrte poglede na pokrajino in sončni zahod, ki oddaja tisto prijetno, toplo svetlobo.

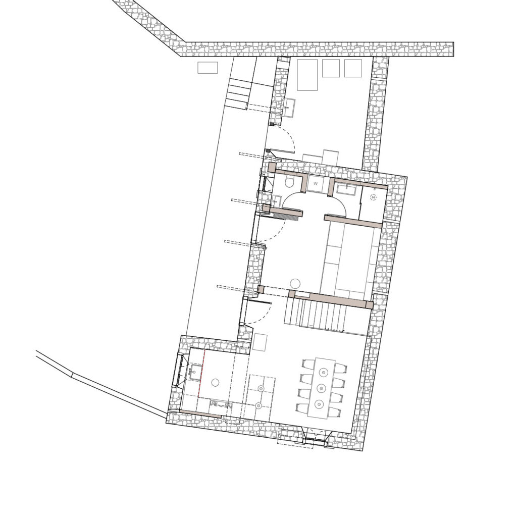
Gre za dvodelno domačijo, ki je sestavljena iz dveh objektov: stanovanjskega in gospodarskega. Stanovanjski je v enem izmed zgodovinskih obdobij hkrati služil za hlev in bivanje, osnovnemu volumnu pa je bila nekoč prizidana tudi spahnjenca, namenjena kuhinji z odprtim ognjiščem. Po podatkih Geodetske uprave naj bi imel objekt več kot 400 let, o njegovi starosti in postopnem razvoju pa med drugim priča tudi odkritje stene, na kateri je bil viden jasen obris nekdanje s škrlami krite strehe z naklonom 45°, ki je bila nekoč značilna za Kras.

Prenova je mogoče nekoliko neznačilna za arhitekta – pri prenovah ti večkrat sanjajo o prebojih in velikih zastekljenih površinah, pri tej pa gre v veliki meri za ohranjanje obstoječe substance. Ob odstranitvi ometov in bršljana, ki je preraščal praktično ves objekt, so odkrili zazidana okna, ki so jih odprli. Ugotovili pa so tudi, da obodna kamnita zidova, ki tvorita osnovni volumen, po sredini pravzaprav nista bila z ničimer povezana; kamnita sredinska stena, ki naj bi ju prečno povezovala, je bila dozidana kasneje. Zato so se odločili za njeno rušitev in izvedbo nove opečne stene z AB vezmi in izvedbo AB medetažnih plošč, sidranih v zid s kovinskimi sidri. Zidove so tudi injektirali – s temi ukrepi so visoke zidove, ki so bili mestoma že nekoliko razslojeni, povezali in tako utrdili stabilnost hiše.


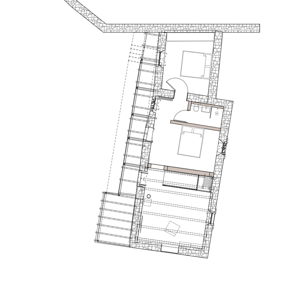
Je pa šlo pri arhitekturni zasnovi za preigravanje možnosti razporeditve prostorov in odločitev, katera je najbolj ustrezna. V procesu so preizkusili pet ali šest različic, tista za izvedbo pa je bila najboljša kombinacija funkcionalnosti, racionalnosti izvedbe in arhitekturnega občutka. Zasnova se povezuje po vertikali: na južnem delu so bolj javni, skupni bivalni prostori: spodaj kuhinja in jedilnica, zgoraj dnevni prostor, proti severu pa značaj hiše stopnjevano prehaja v bolj zasebnega. Tudi »mokri« prostori so vertikalno povezani zaradi preprostejše in racionalnejše izvedbe. Dnevni prostor v nadstropju in povezano podstrešje razkrivata čudovito staro ostrešje, izdelano iz hrastovega lesa, ki je tudi po letih nošenja težke strehe izjemno trdno – tako trdno, da so pri pritrjevanju letev ob menjavi strehe uničili kar nekaj svedrov in vijakov. Odprtine z južno-zahodno orientacijo pa v prostore, še posebej bivalne na južnem delu, v večernem času lovijo romantično svetlobo sončnega zahoda.



Arhitekt, investitor in izvajalec
Robert Prašnikar pravi, da so mu gradbišča od nekdaj domača, saj je z njimi odrasel, pomembnost navzočnosti na gradbišču pa vidijo tudi v arhitekturni praksi v Studiu.a+v – pri njih mora biti vodja določenega projekta z gradbiščem vedno seznanjen. Robert meni, da je poznavanje gradbišča enako pomembno kot teoretično znanje arhitekture – arhitekt mora poleg vsega drugega znati tudi komunicirati z izvajalci, jim predstaviti svojo idejo. Gre za dvosmerno komunikacijo: arhitektova naloga je, da pove, kakšen rezultat si želi, mora pa tudi poslušati izvajalca, kako je nekaj mogoče narediti. Do dobre rešitve je treba priti z medsebojnim sodelovanjem, vsi vpleteni pa morajo imeti voljo za to. »Hkrati je v naloga arhitekta, da v projekt vkomponira vsa različna znanja o gradnji stavb – arhitekturo, statiko, elektro in strojne inštalacije, požarno zasnovo in tehnologijo gradnje. Arhitekt je tako neke vrste dirigent v pisarni in na gradbišču. Poklic zahteva širok spekter znanja, ki ga je treba imeti – fino je, da te to zanima. Tako tudi različni profili arhitektov najdemo svoje mesto v skupini; nekateri smo bolj tehnični, nekateri se včasih malo zasanjajo, na koncu pa vsi skupaj združimo moči, da pridemo do željenega rezultata.«


»S partnerko sva kar nekoliko zasvojena z vonjem po cementu,« se pošali Robert. »Všeč so mi materiali in stik z njimi, pa tudi to, da na gradbišču lahko vidiš, kako se zamisel udejanja.« Zaključna gradbena dela trenutno večinoma izvajata sama, tudi ob izdatni pomoči družine in prijateljev na vikend delovnih akcijah. Gotovo je zelo uporabno bogato gradbeno znanje Robertovega očeta. Sami so in bodo tudi v prihodnje opravili velik del gradnje, vključno s čiščenjem, odbijanjem ometa, manjšimi rušitvenimi deli, pripravo lesa za ostrešje, pripravo oz. razvodom instalacij, talnimi in stenskimi oblogami, obdelavami sten, konstrukcijo ganka … Večja rušitvena in gradbena dela so prepustili zunanjim izvajalcem – medetažne plošče, sanacijo streh, injektiranje, ureditev infrastrukture, zunanjo fasado … Na eni strani gre seveda za veselje do gradnje, na drugi pa samogradnja v obdobju konstantnih podražitev pomeni prihranek. Seveda pa terja znanje ter dosti več časa in usklajevanja z vsemi ostalimi obveznostmi.

In kako je biti arhitekt, investitor in izvajalec? »Je prednost in slabost, želiva pa si hišo obnavljati z dobro voljo in pozitivno energijo. Gre za časovni, finančni pritisk, predvsem v smislu, da je pri omejenem proračunu treba določiti tudi prioritete projekta.« Včasih pride tudi do kompromisa – v dnevnem prostoru so skozi kamnito steno želeli izvesti večji preboj in ga povezati s teraso, vendar bi to pomenilo statično prezahteven poseg, ki bi bil zato tudi zelo drag.
Skupnost
Pri prenovi je prišlo prav tudi lokalno znanje. V sodobnem času, ko se sprašujemo, kako priti do neinvazivne, naravne barve ometa, ki so jo imele hiše nekoč, to znanje v lokalnem okolju še vedno obstaja. Od domačinov je tako izvedel, da se za naravno (zemeljsko) barvo apnenih ometov na Krasu uporablja pesek iz Štanjela, iz kamnoloma pri Sežani pa prihaja pesek, ki bo omet obarval bolj sivkasto. Za fasado so nekoč uporabljali lokalno dostopne materiale namesto sintetičnih barvil, ki jih lahko danes kupimo v katerikoli gradbeni trgovini. V projekt sta bila vključena tudi lokalni statik in gradbinec, ki imata oba izkušnje s prenovami kamnitih objektov, ter sosed kamnosek Jernej, ki je za hišo izdelal kamnite okenske okvire – jerte.


Hiša je polna zgodb, ki so ostale zapisane v njenem drobovju, pa tudi v kupu predmetov, ki so jih generacije odlagale na podstrešje. Njihov pomen odkrivajo domačini. Tu je zgodba aluminijastih glavnikov – Robert je od soseda izvedel, da so izdelani iz zavezniškega letala, ki je strmoglavilo v bližini, in številnih kamnitih izdelkov, ki jih je izdelal prejšnji lastnik stavbe, kamnosek Alojz Širca (med drugim je bil tudi eden od vodij kamnoseških del na slovenskem parlamentu in sodeloval pri delih na vili na Brionih). V hiši pa so našli tudi štiri tone belega zlata – še vedno uporabnega apna, ki zdaj pride še kako prav v mešanici za omete.

Pri zaključnih delih na vikend delovnih akcijah pomagajo družina in prijatelji: ometi, ki jih imajo trenutno v delu, bodo zahtevali približno štiri vikende. Bodoči dom tako prenavljajo roke skupnosti. Če pride do zagate, so pripravljeni pomagati tudi sosedi – ker je dostop do hiše s tovornjakom nemogoč, je pri dovozu materialov pomagal sosed s traktorjem.
Proces Robert deli tudi na Instagram profilu »Sečanjkni Pliskovica« (Sečanjkni je staro ime domačije). Profil ni nastal iz želje po »vplivanju,« temveč deljenju uporabnih informacij ter dokumentiranju procesa, ki je zanimiv za sovaščane in ljudi, ki jih to zanima. S poklicnim znanjem, ki ga ima, pa lahko tudi pomaga komu, ki se sooča s podobno prenovo. Zanimive so objave o izdelavi apnenih ometov, pa tudi o nevarnosti sevanja radona. Ta plin je na določenih območjih prisoten v zemlji in je eden izmed pogostejših razlogov za razvoj pljučnega raka. Ravno na Krasu lahko dosega kritične vrednosti, zaradi česar so na objektu izvedli preventivne ukrepe: prezračevanje kletnih prostorov in zemljine pod talno konstrukcijo, z gornje strani zatesnjeno z materiali, ki preprečujejo prehod radona.
»Ne misliva, da je najin način prenove edini pravi,« pravi Robert. Je pa gotovo spoštljiv do kraške dediščine, pokrajine, pa tudi skupnosti.

Ali so zasebne apartmajske nastanitve odgovor za prazne kraške vasi?
Prenove kraških hiš so v arhitekturni stroki sicer precej pogoste – in ravno te so tudi prispevale k večjemu zavedanju lokalnega prebivalstva o kakovosti lastne arhitekturne tradicije. Vendar lahko ohranjajo arhitekturno dediščino brez dodane vrednosti, ki bi bogatila življenje kraja.
Pliskovica je danes idilična kraška vasica, ki pa je nekoliko prazna. Kraške hiše se sicer kar dosti prenavljajo – investicije v prenove objektov torej so, na drugi strani pa vas nima niti trgovine niti vaške gostilne. Svetla družabna točka kraja je sicer Hostel Pliskovica, ki deluje že 20 let in občasno gosti tudi dogodke. Kljub zmanjševanju števila stalnih prebivalcev skuša biti skupnost biti čim bolj aktivna. Organizirajo festival kamna, balinarska tekmovanja, velikonočni pohod po Pliskini poti ter predstave in koncerte.

Razvoj Pliskovice je na točki, ko se morajo krajani odločiti za smer nadaljnega razvoja, meni Robert. Idilična kraška vasica, v kateri se je tradicionalna kraška pozidava v zadnjih letih praznila, se spet polni, vendar je treba premisliti o vsebini poselitve. Individualna apartmajska vsebina morda prinese zaslužek, a ne prispeva bistveno k življenju kraja – tako lahko duh vasi počasi stagnira. »Domačini so naju zelo lepo sprejeli, sploh ko sva jim povedala, da prenavljava zato, da bi tu živela. Bili so veseli, da končno nekdo prenavlja z namenom, da se preseli sem.« In tudi to, da hiša ni namenjena le začasnim obiskovalcem, temveč nekomu predstavlja dom, je tisto, kar arhitekturo, ki je »ozadje za življenje«, napolni z življenjem.






Piše: Nina Dolar
Foto: Nina Dolar, arhiv Roberta Prašnikarja



