Interier novozgrajene enodružinske hiše na Primorskem je delo Studia Tina Rugelj.

Načrtovanje notranje opreme je potekalo že vzporedno s pripravo idejnega projekta za hišo, kar je omogočilo, da sta ob plati hiše optimalno usklajeni. Strojne in elektro instalacije so tako zasnovane v skladu s predvideno opremo, kar je omogočilo temeljit premislek osvetljave in scenarijev prižiganja luči. Pohištvene kose zaznamuje minimalistična domačnost, za katero stoji funkcionalnost in praktičnost. Povsod po hiši najdemo skrite shranjevalne površine: že ob vstopu nas pozdravi dolga garderobna omara s klopjo, pod katero so umeščeni dodatni predali. V kuhinji je ves servisni del skrit v omaro ob zadnji steni, poleg omare pa so v isto linijo poravnana še skrita vrata, ki vodijo v večjo živilsko shrambo.


Ob severni steni hiše se vzpenja visoko stopnišče, ki povezuje tri nadstropja: vstopno pritličje, spalnice zgoraj in v kleti vinsko klet in mini domači wellness. Eden od izzivov pri oblikovanju stopnišča je bilo zmanjšanje občutka višine ob pogledu navzdol, zato sta arhitektko dodali lesene vertikalne letve, ki dodajo občutek varnosti, hkrati pa učinkujejo kot vizualni poudarek v prostoru. Posebno pozornost sta arhitektki namenili še oblikovanju otroške sobe, saj je njen prebivalec navdušen ljubitelj dinozavrov.

tloris kleti

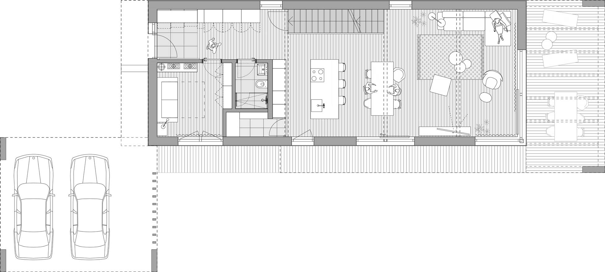
tloris pritličja

tloris nadstropja
Ime projekta: Hiša Š
Investitor: zasebni
Fotograf: Janez Marolt
Lokacija: Primorska
Leto načrtovanja: 2019
Leto izvedbe: 2020
Površine: 250m2
Projektant interierja: Studio Tina Rugelj
Tina Rugelj, Brina Vizjak
Projekt arhitekture: Lumar
Izvajalci: Lumar
Pripravila: Ajda Bračič
Podprite Outsider z naročilom!
