Projekt prenove stanovanja K16 avtorjev Andreja Mercine, Jagode Jejčič, Laure Mercine, Brine Vizjak, Primoža Pavšiča iz biroja TRIIIJE se nahaja v stari meščanski hiši iz zgodnjega 20. stoletja. Mlad par, ki je ves čas aktivno sodeloval pri snovanju prenove, si je zaželel iz klasične zasnove, ki pozna prehodne sobe in na drugi strani dolge hodnike, ustvariti moderno domovanje odprtega tlorisa. Arhitekti so po obodu stanovanja, vzdolž fasade in vzdolžne hrbtne stene, prebili obstoječe zidove in s tem vzpostavili pot in poglede po celotni dolžini stanovanja. Nastal je velik in svetel osrednji prostor s kuhinjo, dnevno sobo in čisto na koncu krožne poti – spalnico.
Zanimivi so oblikovalski detajli po meri narejenega pohištva. Mlad par lahko goste posedi za veliko mizo, ki jo po koncu zabave razstavita in obesita na steno. Mizo Quadra sta stanovalca – z dovoljenjem oblikovalca – naredila po načrtih Luisa Arrivilaga: iz dveh zvarjenih kovinskih podpor med kateri umestita lesene plohe. Arhitekti so belino stanovanja popestrili z detajli odkritega opečnatega zidu v spalnici, poslikano keramiko v kuhinji, nemaskiranimi betonskimi prekladami in policami iz masivnega lesa. Z lastnikoma so umestili pretapecirane kultne Lupine in počivalnike oblikovalca Nika Kralja, predelali staro mesarsko klado iz katere je nastal bar in stenske luči, ki se jih lahko premika po potrebi. Modra stenska umetnina je avtorsko delo arhitekta Andreja Mercine. Uporabil je pečnice s peči v spalnici, ki so jo zaradi neuporabe podrli. Po celem stanovanju so skrbno umeščeni tudi starinski kosi pohištva z željo, da bi kljub modernemu videzu ohranili povezavo s časom, v katerem je stanovanje nastalo.

Mizo stanovalci po potrebi sestavijo oziroma zložijo na steno.



Zanimiva je krožna pot skozi stanovanje, pri kateri so posamezne enote hkrati samostojni otoki in povezani del bivalne celote.



Enostavna in duhovita rešitev radiatorja v kopalnici.

Arhitekt Andrej Mercina je pečnice s stare peči shranil in jih uporabil pri dekoraciji stanovanja.

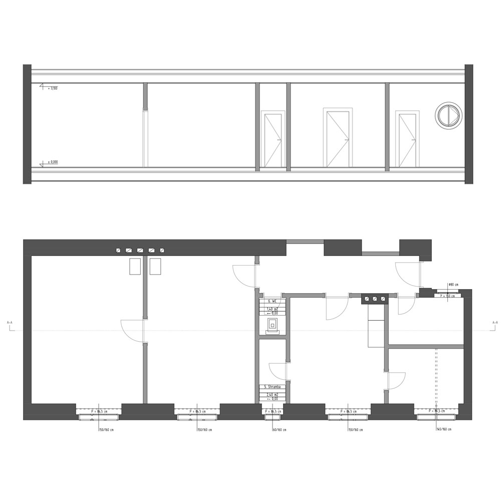
Tloris prenove

Tloris pred prenovo
Ime projekta: K16
Avtor projekta: Andrej Mercina, Jagoda Jejčič, Laura Mercina, Brina Vizjak, Primož Pavšič
Investitor: Zasebni
Fotograf: Matevž Paternoster
Lokacija: Ljubljana
Leto načrtovanja: 2015
Leto izvedbe: 2015
Površine: 78.00m2
Izvajalci:
Glavni izvajalec gradbeno obrtniških del: Montaža Magister, Bogdan Magister s.p.
Pripravila: Nuša Zupanc



