V Poljanah nad Škofjo Loko so arhitekti iz pisarne 3biro realizirali privlačno enodružinsko hišo, katere posebnost je premoščanje višinske razlike med nivoji.



Tisto, kar vsako dobro realizirano arhitekturo dela učinkovito in nepozabno, je v prvi fazi načrtovanja njena navidezna slabost in trn v peti arhitektov. Neprivlačni pogledi, neraven teren, pomanjkanje svetlobe, hrup, prevelika bližina sosedov – robni pogoji so tista težava, ki jo arhitektura vsakič znova rešuje in ki šele omogoča, da lahko dobra arhitektura sploh nastane. Takšna arhitektura domiselno presega pomanjkljivosti ter jih spreminja v atribute, projekt pa postaja boljši in močnejši kot bi bil brez začetnih omejitev.



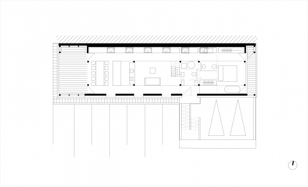
Hiša v Poljanah nad Škofjo Loko se zelo očitno ukvarja s problemom terena – parcela, na kateri stoji, je namreč izrazito nagnjena. Arhitekti so, namesto da bi vanjo agresivno posegli ter jo poskušali izravnati, lokacijo sprejeli kot izziv in jo spremenili v vodilno misel svojega projekta. S tem je hiša dobila nezamenljiv karakter, ki je tako značilen za uspešne arhitekturne projekte. Nižji nivo ceste je z višje ležečim pritličjem povezan z dolgim nadstreškom, ki sledi nivoju terena, ter pod katerim se skrivata stopnišče in garaža. Višje ležeč glavni volumen stavbe je tako umaknjen od ceste, obiskovalec pa se po pokritem vhodu vzpne v drug svet, kjer vladata domačnost in toplina.

Kontrast med betonskim vznožjem in leseno strešno konstrukcijo, ritmična menjava fasadnih oblog ter poudarjena poteza strehe, ki se plazi navzdol po terenu – vse to so elementi prijetnega novega domovanja, ki je hkrati tudi nadvse zanimiv arhitekturni izdelek.



3biro:Strm teren in lokacija ob gozdu na robu naselja so narekovali premišljeno zasnovo hiše, ki s svojo obliko premošča višinsko razliko med nivojem ceste in višje ležečim pritličjem in hkrati omogoča krasne poglede na nižje ležečo dolino.
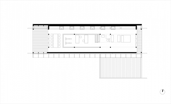
Gabarit hiše je izrazito podolgovat, strma streha pa se nad vhodnim delom nadaljuje v pokrit dovozni nadstrešek. V pritličju so bivalni prostori, ki so v celotnem obrobnem pasu dvovišinski. V nadstropju je galerija s fitnesom, savna in soba za goste, katere vidna lesena konstrukcija poudarja konstrukcijsko logiko hiše.
Ime projekta: Hiša Poljane
Arhitektura: 3biro
Projektna ekipa: prof. Janez Koželj u.d.i.a., Tina Rupar Kobe u.d.i.a., Blaž Rupar u.d.i.a. Barbara Petek m.i.a., Alenka Kranjec abs.arh.
Investitor: zasebni
Fotograf: Miran Kambič
Lokacija: Poljane pri Škofji Loki
Površine: 123 m2
Leto izvedbe: 2017
Gradbene konstrukcije: Gradbeni biro Zajc d.o.o.
Elektro instalacije: Miha Uršič/Esprit d.o.o.
Strojne napeljave: Boštjan Rant s.p.
Izvajalci:
betonski del: Zidarstvo Božnar s.p.
leseni del: Tesarstvo in krovstvo Kaltak d.o.o.
Napisala: Ajda Bračič
Podprite Outsider z naročilom!



