V Retečah so arhitekti studia 3biro zasnovali veterinarsko kliniko Etvetera, ki s svojo podobo neposredno odgovarja na dane pogoje lokacije. Značilna oblika vzpenjajočega se kvadra spremlja obris sosednjih hiš in nakazuje okoliško strešno krajino. Razgibano oblikovno zasnovo umirja izbira zunanjih oblog iz parjenih smrekovih desk temne sive barve.


Veterinarska klinika stoji ob glavni cesti, proti kateri se odpira s severnim vhodom, na nasprotni strani pa se dviguje proti naselju. Tam se konča z dvoriščem, službenim in servisnim vhodom, v nadstropju pa program dopolnjuje loža stanovanja. Vzhodna in zahodna fasada ostajata bolj anonimni, okenske odprtine pa tvorijo zanimiv likovni učinek. »Oblikovalsko vodilo projekta je bilo z obliko in porazdelitvijo oken ustvariti različna vzdušja v posameznih prostorih klinike – z naravno svetlobo in pogledi skozi okna. Svetla, na tri strani odprta čakalnica blaži strah malih živali in njihovih lastnikov pred neprijetno izkušnjo, padajoča zenitalna svetloba bogato osvetljuje ordinacijo sredi stavbe, kjer se opravlja najzahtevnejše zdravljenje, hodniki in stopnice dobijo svetlobo s strani, stanovanje pa veliko sonca prek lože. Na ta način se dnevna svetloba z različnih višin in strani mehko razliva po vseh prostorih in povsod ustvarja prijetne pogoje za gibanje, različna opravila in bivanje v stavbi,« koncept razporeditve odprtin opišejo arhitekti.


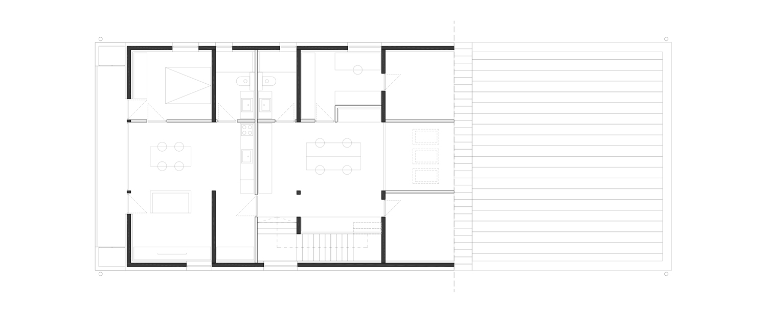
Tlorisno je klinika zasnovana v obliki črke H. Stranski lameli vsebujeta pomožne prostore, srednja pa je namenjena operacijski dvorani. Programsko objekt sledi konceptualni logiki same oblike in lokacijskih pogojev. Od javnega dela s sprejemnico in lekarno program preide k bolj zasebnemu značaju ambulant, operacijske dvorane in nazadnje hospitala za živali. V nadstropju so pisarne in stanovanje. Notranjost je zasnovana v nevtralni maniri, s poudarki in medicinsko opremo v sivinah, v čakalnici pa paciente in njihove lastnike pozdravi pohištvo v lesu.


Avtorji projekta:
Ime projekta: Klinika za male živali Reteče
Avtor projekta: 3biro d.o.o.
Projektanti: prof. Janez Koželj u.d.i.a., Tina Rupar Kobe u.d.i.a., Blaž Rupar u.d.i.a., Maruška Jamnik m.i.a., Črt Jaklič m.i.a.
Investitor: Etvetera d.o.o.
Fotograf: Miran Kambič
Lokacija: Reteče, Škofja Loka
Leto načrtovanja: 2019
Leto izvedbe: 2020
Površine:
Pritličje neto (m2): 165 m2
Nadstropje neto (m2): 118 m2
Parcela (m2): 835 m2
Pozidana površina (m2): 246 m2
Projektanti:
– Gradbene konstrukcije: Gašper Ziherl, Punkt d.o.o.
– Strojne napeljave: SIMEP inženiring d.o.o.
Izvajalci:
Glavni izvajalec gradbeno obrtniških del: Tesarstvo Kaltak d.o.o.
Mizarska dela: M PROJEKT d.o.o.
Pripravila: Manca Košir
Podprite Outsider z naročnino!



