Dukičevi bloki arhitekta Jožeta Sivca v Ljubljani so eden najbolj prepoznavnih primerov medvojne moderne stanovanjske gradnje in zgodnjega funkcionalizma v Sloveniji. Kot najsodobnejša stanovanja, namenjena uradnikom, so bili zgrajeni leta 1935. Prvi prostostoječi bloki v tradicionalno sklenjeni pozidavi mestnega središča so grajeni kot armiranobetonska skeletna konstrukcija, ki jo zavetrujejo opečne stene, zaznamuje pa jih zadržana estetika zgodnjega modernizma z značilnim navtičnim motivom zaokroženih balkonskih pomolov.

Eno od stanovanj v srednjem, manjšem bloku so za mlado tričlansko družino celovito prenovili a2o2 arhitekti, ki se pri svojem delu redno srečujejo z dediščino različnih obdobij. Projektov prenove se lotevajo spoštljivo in v raziskovalnem duhu ter se pri tem povezujejo s pristojnimi inštitucijami – tokrat je bila njihova sogovornica odgovorna konservatorka Marija Režek Kambič z ljubljanske enote ZVKDS. (Ker so bloki vpisani v register nepremične kulturne dediščine, je tudi sicer pri vseh posegih v varovane prvine potrebno pridobiti kulturnovarstveno soglasje zavoda.)
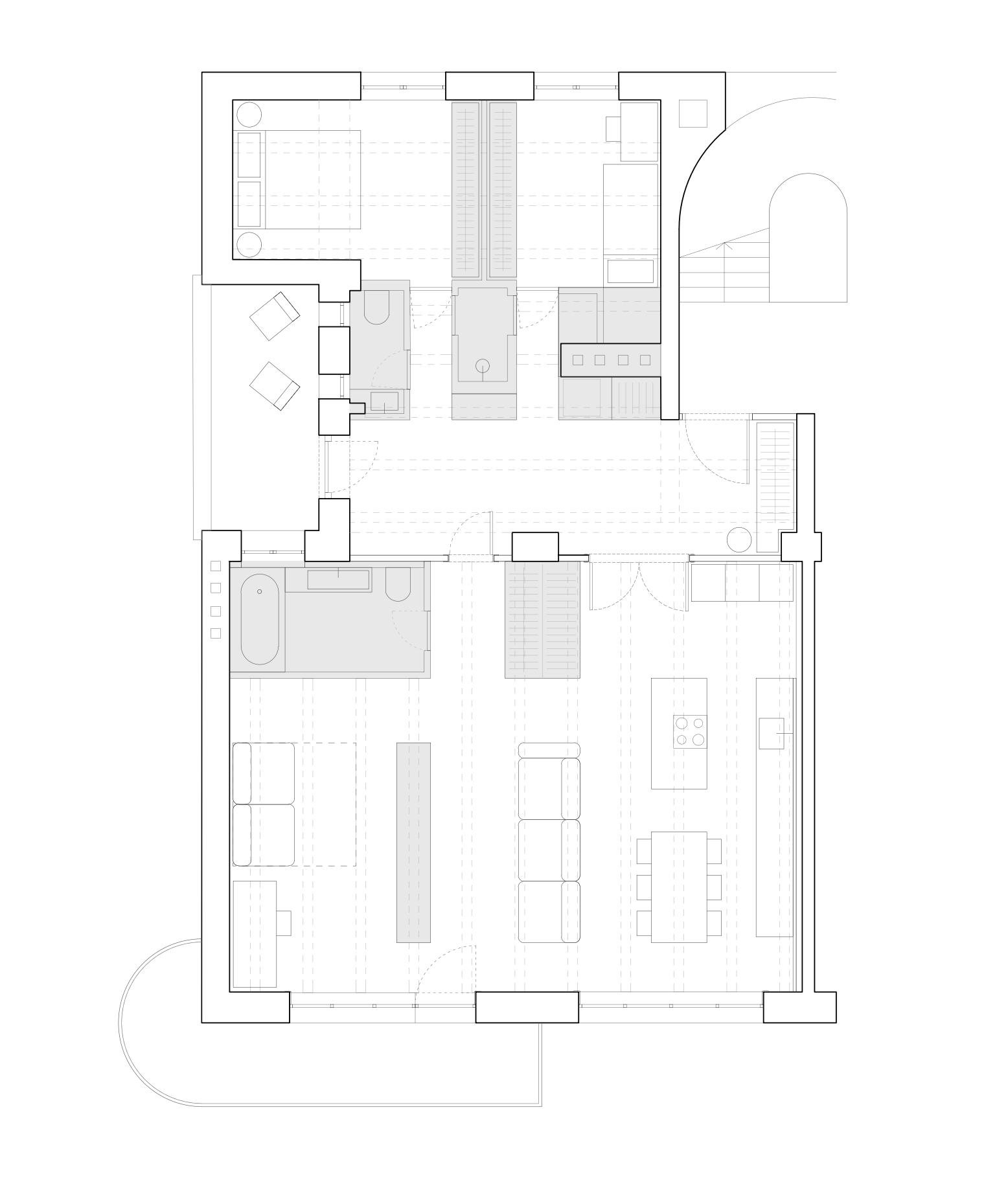
Stanovanje je ob nakupu še imelo ohranjene kvalitetne izvorne elemente, a je bila prvotna jasnost tlorisne zasnove z naknadnim zapiranjem prostorov zabrisana, originalna funkcionalna logika, ki je vključevala sobo za hišno pomočnico, pa tudi sicer ni bila več aktualna. Osnovno vodilo prenove je bilo zato vzpostavljanje berljivosti prostora v skladu s kvalitetami prvotne zasnove in sodobnimi bivanjskimi navadami. Stanovanje so odprli v prečni in vzdolžni smeri, konceptualno pa so ga povezali z enovitim principom vstavljenih volumnov, prepoznavno avtorsko potezo kolektiva: elementi vgradne pohištvene opreme in servisni prostori so obravnavani ločeno od arhitekturne »lupine« – konstrukcijskih elementov in oboda, kar je izraženo v enotni obdelavi; tu jih povezuje nežno siva barva.
Na ta način pride posebej do izraza osrednji arhitekturni element prenove, ki ga avtorji v stanovanje niso vnesli, pač pa so ga najprej metaforično in potem dobesedno odkrili. Nad stropom stanovanja se je namreč med procesom raziskovanja pokazala ekspresivna medetažna konstrukcija iz armiranobetonskih reber in čeprav beton ni bil izveden kot zaključni sloj ter je bil na več mestih načet, so naročnika uspeli prepričati, da nepričakovano odkritje vključijo v podobo interierja kot povezovalni element, ki se pne preko celotne površine stanovanja. Beton stropa in prav tako razkritih nosilnih stebrov so skrbno sanirali, nekoliko grob in neenoten videz pa v sicer umirjeno eleganco interierja vnaša prvinski kontrast.
Funkcionalno je stanovanje ločeno v dnevni in nočni del, ločnico pa predstavlja prostorna in svetla veža, ki presega funkcijo predprostora. Vgradne omare zagotavljajo veliko prostora za shranjevanje, vanje pa so pospravljeni tudi tehnični pripomočki in domača pralnica. Največja odlika veže pa je neposredna povezava z ložo, ki deluje kot zeleni zimski vrt. Lože Dukičevih blokov so bile prvotno odprte, a ker je bila tukajšnja predhodno že zastekljena, je spomeniška služba pristala na zasteklitev zimskega vrta brez vmesnih profilov, ki v fasado vnaša minimalno spremembo in bo služila kot vzorčni primer za podobne posege v prihodnosti.

Velik, svetel in zračen dnevni del stanovanja se navezuje na balkon na ulični strani bloka in je nastal z združitvijo prej ločenih sob. Središče dogajanja je kuhinja, ki so jo prestavili iz manjše zaprte sobe. Kuhinjska oprema kot izjema odstopa od principa enotnih vstavljenih volumnov: vsi kuhinjski elementi so zasnovani kot otoki, ki ne segajo do stropa, ambient pa sije v dialogu dveh osnovnih barv – rdeče obarvanih kuhinjskih elementov in modre pralne površine za kuhinjskim pultom. Barvi so arhitekti vzeli iz Le Corbusierove palete ter se tako poklonili pionirskemu obdobju moderne arhitekture, v katerem je nastala stavba. Kuhinjo dopolnjuje masivna hrastova miza osnovnih oblik, ki se skupaj s stoli Lajt Janeza Suhadolca ubrano poveže z materialnostjo parketa in geometrijo prostora. Središčnost jedilnega ambienta poudarjajo tri viseče svetilke – povsod drugod je osvetlitev integrirana v opremo oziroma indirektna.
Dnevni prostor na drugi strani zamejuje pohištveni volumen, za katerim se ob diskretno umeščeni kopalnici oblikuje še manjša soba, namenjena odmiku in delu, ki se v prihodnje po potrebi lahko z minimalnim posegom spremeni v dodatno spalnico.
Spalnica in otroška soba sta umeščeni v »nočni« del stanovanja, ki ga od veže ločuje prehodni sanitarni pas z manjšim straniščem in prehodnim tušem – domiselnim elementom, vpetim v enovito potezo garderobnih omar, ki spretno rešuje zagato tlorisne ožine.
Originalno, skoraj 90 let staro stavbno pohištvo – okna v dnevnem delu, vrata in zastekljena vrata v salon – ter balkonske ograje so bili restavratorsko prenovljeni. Prav tako sta ohranjena in deloma po vzoru obstoječega na novo izvedena parket v dnevnem in teraco v nočnem delu stanovanja. Še eno navezavo na stavbno dediščino najdemo v opremi kopalnice iz naravnega kraškega kamna iz Lipice, ki jo je navdihnila marmorna obloga skupne veže.
Arhitektura, porojena iz raziskovalne radovednosti, organizirana s konceptualno disciplino in oživljena s posluhom za presenečenja, v katerih prostor pridobi svoj pravi značaj.

Ime projekta: Prenova stanovanja v Dukičevih blokih
Avtorji projekta: a2o2 arhitekti (Klara Bohinc, Andraž Keršič, Žiga Ravnikar, Eva Senekovič, Uršula Novak)
Lokacija: Ljubljana
Leto načrtovanja: 2022
Leto izvedbe: 2023
Površine: 120 m² neto
Foto: Ana Skobe
Napisal: Luka Jerman



