Poslovni prostor v središču Grosuplja, v katerem se je pred desetletjem nahajala trgovina z blagom, nazadnje pa je služil kot skladišče, se je z zadnjo preobrazbo prelevil v mehkobe polno ustvarjalno okolje studia Alter arhitektura & design.
Dobrih petdeset kvadratov velik prostor z obojestransko osvetlitvijo (severovzhod–jugozahod) je imel vse, kar potrebuje manjši oblikovalski studio. Čeprav v stiku z mestnim utripom središča Grosuplja, je prostor od vrveža ravno prav odmaknjen, da zagotavlja potrebni mir za ustvarjalno delo. Glavni vhod v stavbo je med delovnimi urami v vseh toplih mesecih odprt, dolgi napušči arhitekture objekta pa tvorijo ugodno klimo za delo, saj je neposrednega sonca malo, svetlobe pa veliko.
»Oblikovalski oziroma arhitekturni studio se precej razlikuje od klasičnih poslovnih prostorov,« pravi avtorica prenove in ustanoviteljica studia Janja Štibernik. »Našega je oblikovala velika želja po tem, da bi zares dihal, se odpiral, dajal svežino … – da bi ponujal okolje tako za poglobljeno delo kot za sanjaško ustvarjanje, prijetne sestanke, skupinske delavnice risanja in še kaj.«

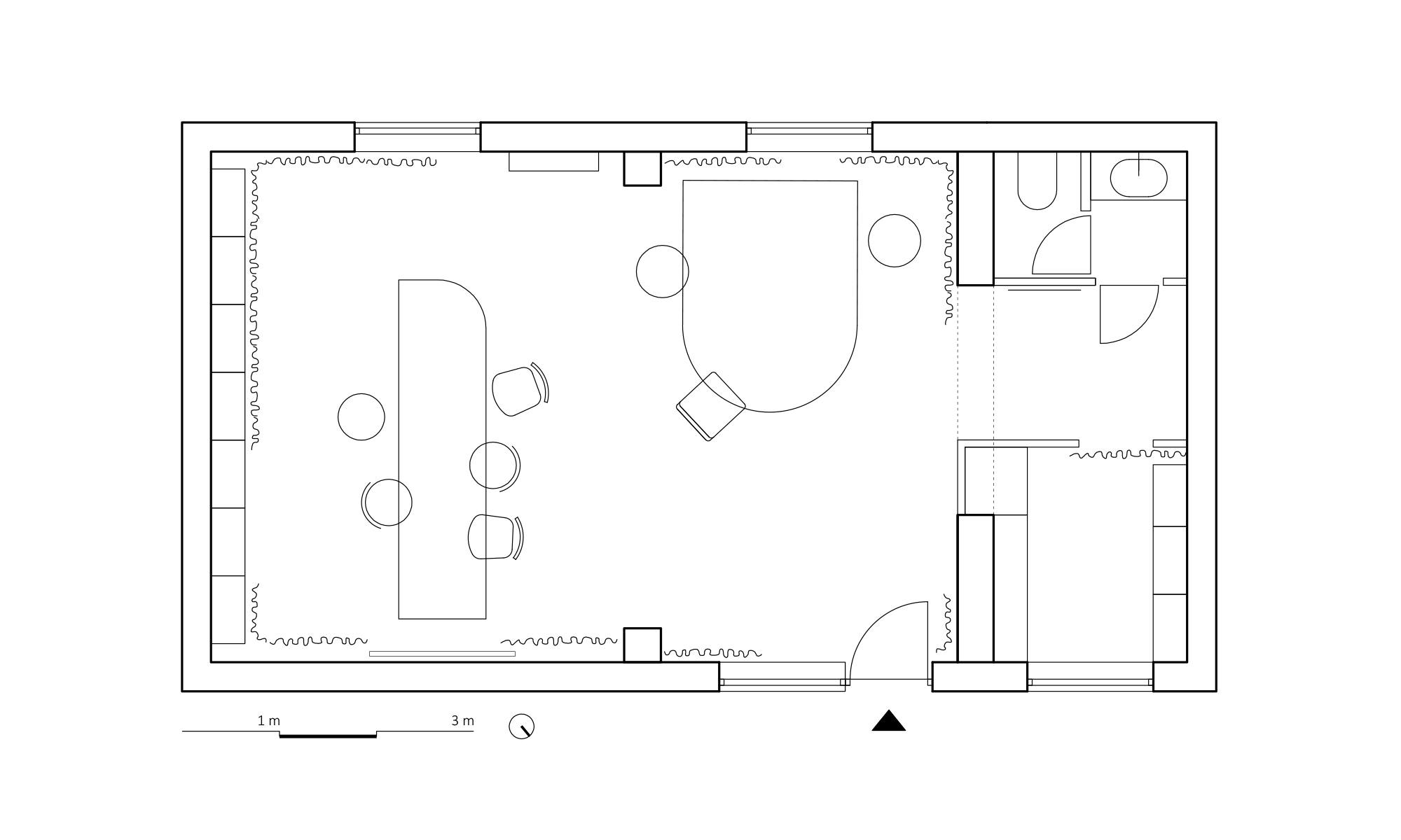
Prenova prostora je bila celovita in je poleg obdelav vseh sten in stropov ter novih inštalacij vključevala tudi namestitev novih predelnih sten, ki odprt glavni prostor ločujejo od servisnega dela s čajno kuhinjo in sanitarijami.
Kombinacija polnih in prosojnih belih zaves z zaokroženo linijo mehča pravokotni studijski del ter zakriva in odkriva vsebine glede na trenutno dejavnost studia: projektiranje, sestanek, skupinsko delo, risarska delavnica ipd.

Velika zaokrožena miza je namenjena delu. Nad njo lebdi veliko viseče svetilo, pomenljivo poimenovano ‘Klaud’ – delo Janje Štibernik –, ki s »puhasto« svetlobo še poudarja mehkobo prostora. Difuzna svetloba nudi pravo osvetlitev za delo in obenem ustvarja kontrast ostali reflektorski svetlobi v prostoru, ki je načrtovana bolj galerijsko, tako da usmerjeno poudarja posamezne dele studia (stenske grafike, kotiček za vzorce, valove zaves).

Drugi del glavnega studijskega prostora opredeljuje dolga miza z zaobljenim vogalom, ki je namenjena sestankom in pripravi vzorčnega gradiva. Ob sestankih se izza zavese pokaže stenski zaslon za predstavitve.
Predprostor servisnega dela je bil načrtovan širše, saj ne gre samo za hodnik, ampak lahko tu simulirajo različne temperature svetlobe – tej namenja studio pri svojem delu posebno pozornost.
Iz beline ozadja v ospredje stopajo glavni poudarki: rozasti pop art stol hrvaškega oblikovalca Vladimira Sušanja Inđića in njegovo nasprotje, resnobni črn Bauhausov stol, temnomodra mehka talna obloga in svetlomodra žametna zavesa v čajni kuhinji ter stenska grafika s kompozicijo kovinsko sive, živo rumene in intenzivno rožnate – še en izdelek avtorice projekta.


Ime projekta: Studio Alter arhitektura & design
Avtorica projekta: Janja Štibernik, Alter arhitektura & design
Investitor: Janja Štibernik
Lokacija: Grosuplje
Leto načrtovanja: 2023
Leto izvedbe: 2024
Površine skupaj: 50 m² neto
Izvajalci:
Glavni izvajalec gradbeno-obrtniških del: Woodmont
Notranja oprema: Woodmont, Mizarstvo Trunkelj
Dobavitelji:
Pohištvo: Woodmont, Mizarstvo Trunkelj, IKEA
Svetila: Alter arhitektura & design
Stoli: Retrodot, pisarniški stoli: Delight
Izvedba zaves: Šiviljstvo Majda Kastelic
Blago za zavese: Margo Slovenija
Tepih: Delight
Pripravil: L. J.
Foto: Ana Skobe



