V neposredni bližini Univerzitetnega kliničnega centra Maribor in le nekaj korakov stran od Magdalenskega parka, se v pritličju enega izmed tipskih blokov nahaja igrivo opremljena zobozdravstvena ambulanta Artdental. Z željo naročnikov po nekonvencionalno opremljenem prostoru, ki odraža predvsem sproščeno vzdušje in estetiko, ki se skozi opremo navezuje na dotično medicinsko prakso, so arhitekti zasnovali interier.

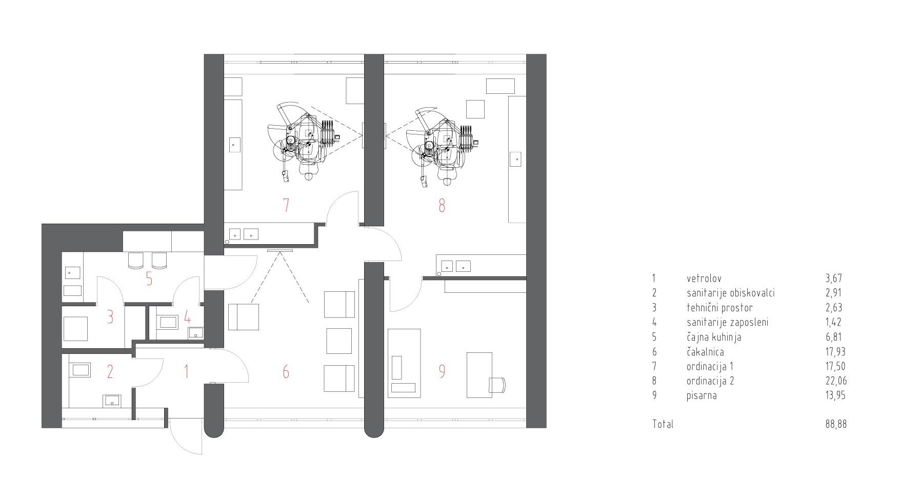
Dostop do prostorov ambulante je z dvoriščne strani bloka, ki je del stanovanjske soseske iz 60. let prejšnjega stoletja. Ob vstopu v manjši vetrolov nas preseneti bujna »ozelenjena« stena in obloga iz lesa, ki pacienta nagovarjata, da ne gre za klasično sterilno-opremljeno ambulanto, temveč za prostor, ki s svojim ambientom vzbuja dobro počutje. Iz vetrolova prehajamo v manjši prostor čakalnice, v katerem se nahajajo trije udobni naslonjači večjih dimenzij, oblečeni v tkanino zelenomodrega odtenka. Prostor čakalnice poleg večjih oken, ki se odpirajo na stran dvorišča, osvetljuje velika okrogla stropna luč v živo zelenem odtenku s črnim okvirjem. Opremo dopolnjujejo še manjša črna mizica, umeščena med počivalnika, dekorativne rastline in okvirjene slike z abstraktnimi kompozicijami. Grafike so bile izdelane prav namensko za prostore ambulante; sestavljene so iz preprostih motivov drug na drugega se nalagajočih motivov kroga in trikotnika v nežnih lila, rožnatih, zelenih in rjavkastih odtenkih – ti predstavljajo decentni barvni akcent v prostoru. V les oblečen del stene in vanjo umeščena prav tako lesena vrata v sicer belo opleskanem prostoru čakalnice nakazujejo vhod v dve ordinaciji.

Ordinacijski sobi sta podobno opremljeni, v obliki črke L so v vsako umeščeni na steno vijačeni predalniki in shranjevalne omarice v antracit sivem odtenku, pokriti s preprostim belim pultom. Na eni strani so nadpultne viseče omarice, ki nudijo dodaten prostor za shranjevanje potrebščin ter s svojo belo barvo delujejo lahkotno in vizualno nevsiljivo. Izbrana barvna paleta se odraža tudi v ostali medicinski opremi; zobozdravstvena stola v črno-beli kombinaciji in črni delovni stolčki. Oprema ordinacij je dopolnjena z okvirjenimi slikami enakih grafičnih motivov in odtenkov, kot so tiste na hodniku. Najizrazitejši element ordinacije se pravzaprav ne nahaja znotraj le-te, temveč zunaj, prostorsko sta umeščeni tako, da gledata na park – pacientu se ob sedenju na stolu med opravljanjem posega skozi velika okna odpira pogled na bujne krošnje mogočnih, starih dreves. Iz ordinacije na desni strani je urejen dostop še do pisarne, ostali pomožni program, kot so sanitarije za obiskovalce in zaposlene ter manjša čajna kuhinja, pa so umeščeni ob vetrolov in čakalnico.

Celotno ambulanto pokrivajo vinilna tla v svetlo bež odtenku, ki dajejo prostorom pridih topline in ga delajo vizualno enotnega, prav tako pa zaradi tega prostor deluje večji in je preprost za vzdrževanje. Izbor materialov in barvnih tonov opreme je jasen, umirjen in s pridihom svežine. Ambulanta je oblikovana minimalistično, arhitekti so z umeščanjem igrivih barvnih elementov, uporabo lesenih oblog in zelenja prostor uredili tako, da ta ustvarja prijetno in sproščeno okolje za paciente, kot tudi zaposleno zdravstveno osebje.



Avtor: Arhitektura Jure Kotnik ( Jure Kotnik, Urška Gomboc, Olga Bombač )
Grafična oprema: agencija Yootree
Lokacija: Pupinova ulica 2, Maribor
Velikost: 89 m2
Leto načrtovanja: 2022
Leto izvedbe: 2023
Foto: Janez Marolt
Napisala: Pia Tomažič



