Celovita prenova družinske hiše in gospodarskega poslopja na družinski kmetiji na otoku Krk.

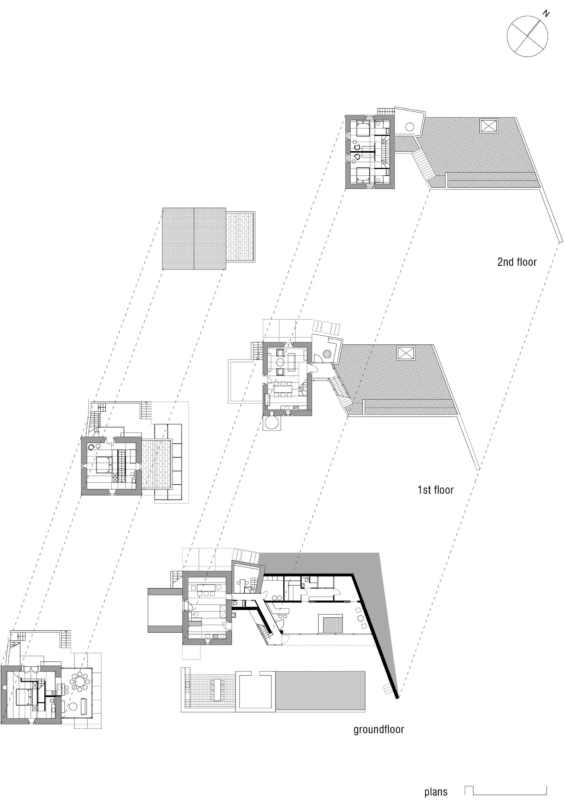
Obstoječa družinska kmetija Jerini na otoku Krk je obsegala štiri glavne elemente: staro bivalno hišo, skedenj za sušenje sena, shrambo, od katere so ostale le še obodne stene, in pa t.i. ‘guvno’, mlatilno strukturo, ki obdaja glavno dvorišče in je glede na teren nekoliko dvignjena. Te elemente, ki so tvorili majhen urbanizem, sta arhitektki Branka Juras in Lorena Posinković z novo intervencijo sklenili povezati v enovito celoto.

Poleg rekonstrukcije in funkcionalne obnove samih konstrukcij je kmetija ob prenovi pridobila nekaj dodatkov: bivalno hišo sta tako arhitektki nadgradili z wellness prostori, ki so na dveh straneh vkopani pod zemljo. Skedenj pa sta ob eni izmed stranic odprli v letno kuhinjo. Vse elemente oblikovno povezujejo lokalni naravni materiali. Iz pritličnih prostorov se odpirajo čudoviti pogledi na notranje dvorišče, preplet čudovitih tradicionalnih elementov in novih intervencij pa se razkriva v bogati in razgibani arhitekturi, ki spominja na okoliško topografijo.

Ime projekta: Hiša Jerini
Arhitekti: Branka Juras mag.ing.arch., Lorena Posinković mag.ing.arch., Architectural Design Studio Branka Juras
Fotografije: Robert Matić, Srđan Hulak
Lokacija: Bajčići, Island Krk, Croatia
Leto izvedbe: 2018.
Pozidana površina: 450 m2
Parcela: 1422 m2
Glavni izvajalec: Zidarski obrt Šivolija
Ogrevanje in hlajenje: Frigo-Ve
Pohištvo: Prostoria d.o.o
Bazen:. Toring d.o.o.
Keramika in sanitarni elementi: Šotovento d.o.o.
Savna, hidromasažni bazen: SpaStudio d.o.o.
Steklena stena in aluminijasti okviri: Ligo Grupa d.o.o.
Leseni elementi: Noliot d.o.o.
Svetila: Eart d.o.o.
Keramika, hidroizolacija: Zadro d.o.o.
Vodovodne instalacije:Milohnić d.o.o.
Elektro instalacije: ACDC elektroinstalacijski obrt
Ključavničarstvo: Colići
Vrt: Paolownia d.o.o.
Polaganje betonskih tlakovcev: Nela d.o.o.
Beton in agregat: GP KRK d.d.
Besedilo: Ajda Bračič
Podprite Outsider z naročilom!

