Hišo za družino glasbenikov v središču vasi je zasnoval arhitekt Matija Miler.





Na Selah pri Lavrici je novogradnja zapolnila vrzel v razpršenem vaškem tkivu. Hiša stoji v središču vasi, tik ob križišču – to bi pri nekaterih naročnikih in arhitektih lahko vzbudilo željo po oblikovanju zaprte, introvertirane hiše, ki bi notranjost varovala pred radovednimi pogledi. Hiša na Selah namenoma deluje ravno obratno: z velikimi odprtinami velikodušno omogoča poglede v in iz notranjosti, kot bi želela živeti in dihati z vasjo, v kateri stoji, in mimoidočim gostoljubno prikimati v pozdrav.





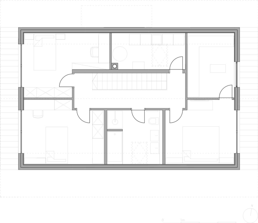
Hiša je montažna in nizkoenergetska. Štiričlanska družina investitorjev, vseh odličnih glasbenikov (akademski tolkalist, klarinetistka, kontrabasist in violinistka), se je odločila za klasično razporeditev prostorov, pri katerih je velik bivalni prostor v pritličju, v nadstropju pa so spalnice. Hiša na nekaj več kot dvainosemdesetih kvadratnih metrih v pritličju najde prostor še za sobo za goste in kabinet.

Ime projekta: HIŠA NA SELAH
Investitor: zasebni
Fotograf: Jože Kunšek
Lokacija: Sela pri Lavrici
Leto načrtovanja: 2017
Leto izvedbe: 2018
Pritličje (m2): 82,64 m2
Nadstropje (m2): 68,98 m2
Parcela (m2): 1004 m2
Projektanti:
– Arhitektura: Matija Miler; raum, arhitekti
– Gradbene konstrukcije: Riko, d.o.o.
– Elektro instalacije: Matvoz, d.o.o.
– Strojne napeljave: Matvoz, d.o.o.
Izvajalci:
Glavni izvajalec: Riko Hiše, d.o.o.
Gradbena dela. Zidarstvo Dolinšek, Aleš Dolinšek, s.p.
Instalacije: Sivenns, d.o.o.
Zunanja ureditev: Drevesnica Omorika, d.o.o.
Podprite Outsider z naročilom!

