Prenova poslovnih prostorov za ekipo mladih odvetnikov v Novi Gorici, ki jo je načrtoval arhitekt Matjaž Bolčina.

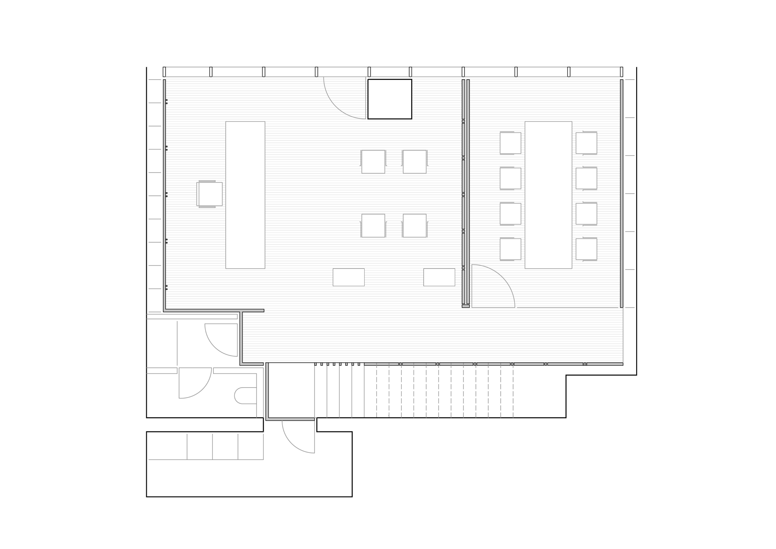
Skupaj z arhitektom so naročniki najprej poiskali primerno lokacijo za svoje nove pisarne in po številnih ogledih izbrali prostore v pritličju in prvem nadstropju stavbe v Novi Gorici. Ker so bili prostori pred tem namenjeni drugi dejavnosti, se je skozi prenovo njihov značaj bistveno spremenil. Eden od prvih posegov je bila premestitev stopnišča s sredine tlorisa na obod, s čimer je arhitekt osvobodil osrednji del prostora, na obod pa so pomaknjene tudi arhivske omare in ostale shranjevalne površine. V bolj javnem pritličju se nahajata sprejemnica in sejna soba, v zasebnejšem nadstropju pa štiri pisarne.

Svetloba v prostor prihaja skozi zasteklitev na zahodni strani objekta. Ob tem je bilo veliko pozornosti usmerjene v ohranjanje osvetlitve tudi v globini prostora: vse stene so umeščene v smeri padanja svetlobe, da bi žarkom zagotovile čimbolj prosto pot, pisarne in sejna soba pa se zapirajo zgolj s steklenimi pregradami. Materialnost pisarn zaznamuje les v naravni barvi in kot temnejša obloga. Prehod iz markantne barvne obloge v pritličju v nadstropje, v katerem prevladuje naravna barva lesa, je zaznati že na stopnišču, ki s kombiniranjem obeh barv obiskovalca elegantno popelje v zgornje nadstropje.

Ime projekta: ODVETNIŠKE PISARNE
Avtor projekta: Matjaž Bolčina
Investitor: Mihelj, Barbič in partnerji, d.o.o.
Fotograf: Tadej Bolta
Lokacija: Nova Gorica
Leto načrtovanja: 2016-17
Leto izvedbe: 2017
Pritličje (m2): 83m2
Zunanja ureditev: 76m2
Notranja oprema: Mizarstvo Kos, AB3 (stoli)
Besedilo: Ajda Bračič
Podprite Outsider z naročilom!



