POBUDA ZA OŽIVITEV PODHODA AJDOVŠČINA V LJUBLJANI
Kinodvor z ustanoviteljico, Mestno občino Ljubljana, sodeluje pri načrtovanju novega mestnega minipleksa, ki je na podlagi predloga za prenovo osrednjega dela Slovenske ceste umeščen v podhod Ajdovščina. Načrt za minipleks s tremi manjšimi in eno večjo kinodvorano, ki je v fazi usklajevanja za pripravo sprememb prostorskih planov mesta, zagotavlja prostorske pogoje, v katerih lahko resnično zaživi koncept mestnega kina kot ustvarjalnega kulturnega središča za vse generacije, s poudarkom na pridobivanju novega, zlasti mladega občinstva.

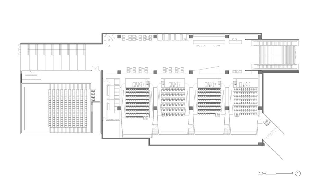
V ljubljanskem arhitekturnem biroju SCAPELAB so pripravili idejno zasnovo ureditve zapuščenega podhoda Ajdovščina. Predlagajo umestitev ene večje in štirih manjših kinodvoran.

Več o viziji razvoja prenovljene Slovenske ceste, spremljevalnih programih, o problematiki in smernicah nadaljne prenove Ljubljane, smo pisali v drugi številki revije Outsider, junija 2015.
ARHITEKTURA: Scapelab
NAROČNIK: Mestna občina Ljubljana
SKUPNA POVRŠINA: 3.300
LETO PROJEKTA: 2014
PROJEKTNA SKUPINA: Marko Studen, Miha Dobrin, Boris Matić, Jernej Šipoš, Miha Brezavšček, Jana Kraševec, Eva Matjašič, Peter Sovinc
Tiskane in spletne vsebine Outsider nastajajo v popolnoma neodvisni produkciji, brez podpore javnih sredstev. Za ustvarjanje potrebujemo aktivne bralce. Naročite se na tiskano edicijo Outsider!
Pišite nam: [email protected]







