Mansardno stanovanje v Ljubljani je zaživelo v novi, svetlejši in sodobnejši podobi. Proti soncu so ga usmerili arhitekti iz biroja Superform.



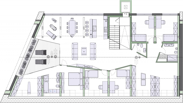
Na podstrešju stare meščanske hiše, v prostoru z 275m2, so se arhitekti srečali z obstoječo konstrukcijo zidanih dimnikov in vešal, ki nosijo ostrešje, njen ritem pa sredi prostora nadaljuje stopnišče, po katerem se na podstrešje vzpnemo iz spodnjega nadstropja. Kljub temu, da je gozd podporne konstrukcije na prvi pogled omejeval arhitekturni potencial prostora, so arhitekti v njem prepoznali možnost za sodobno prenovo. Stebri so tako postali deli predelnih sten, ki razmejujejo bolj intimne prostore na vzhodni strani stanovanja. Tam najdejo svoje mesto spalnice, kopalnice in servisni prostori. Horizontalne lesene lege pa so nadomestili s kovinskimi, ki so s svojo belino na belem ozadju skoraj dematerializirane.



Glavna poteza stanovanja je programska zareza v sredini stanovanja, ki usmerja pogled proti jugu, od koder se odpira najlepša mestna panorama – arhitekti osrednji prostor povedno imenujejo kar ‘soteska’. Ta se od skrajno severnega dela vije proti jugu ter se tam razširi v srce doma, jedilnico in kuhinjo. Še bolj pa sotesko odpre terasa, skozi katero v stanovanje doteka obilica svetlobe. Belina lomljenih sten ‘soteske’ prostor naredi še bolj zračen in odprt, da se zdi, kot da smo se znašli v prijetno domačni in prav nič hladni ledeniški razpoki.



V stanovanju, ki se ozira proti soncu, so arhitekti iz biroja Superform uspeli oblikovati tisto najpomembnejšo izmed arhitekturnih surovin: svetlobo, ter tako ustvariti izjemen ambient, ki uspešno združuje organske prvine z obstoječim prostorom meščanske hiše.

Superform:
Osrednji prostor po funkciji predstavlja bivalni prostor – dnevno sobo in komunikacijo med ostalimi prostori. Na ta način nadomesti nepotrebne hodnike, ki se pojavljajo pri konvencionalni ureditvi. Osrednji prostor se na južnem kraku na zahodni strani razširi v zaliv, kjer se nahajajo jedilnica, kuhinja in fitnes. Prav tako se na severnem kraku odpre v garderobo.

Ime projekta: “Proti soncu” – prenova mansardnega stanovanja
Arhitektura: Superform – Marjan Poboljšaj, Anton Žižek, Špela Gliha
Izbor svetil in pohištva: Arcadia Lightwear, Ajda Kenda
Fotograf: Miran Kambič
Lokacija: Ljubljana
Leto izvedbe: 2016
Napisala: Ajda Bračič
Podprite Outsider z naročilom!



