Nizka atrijska hiša z opečno fasado v Dragomeru blizu Ljubljane ob pogledu z ulice deluje majhna, običajna in vzbuja asociacijo na hiše v Murglah. Ob vstopu najprej preseneti zaobljena, srebrno lakirana mizica z okroglimi ročaji, v osi vhoda vidimo, če so vrata odprta, transparentno rožnato kopalno kad v glavni spalnici, na drugi strani se nahaja zelena garderobna omara, ki se razteza ob celotni dolžini hodnika. Ti elementi napovedujejo ekstravaganten interier, navdihnjen z željami naročnikov po eleganci, toplini ter uporabi okroglih oblik, poln kontrastov in med sabo uravnoteženih presenečenj. Za mlado družino ga je oblikovala arhitektka Tina Hočevar.

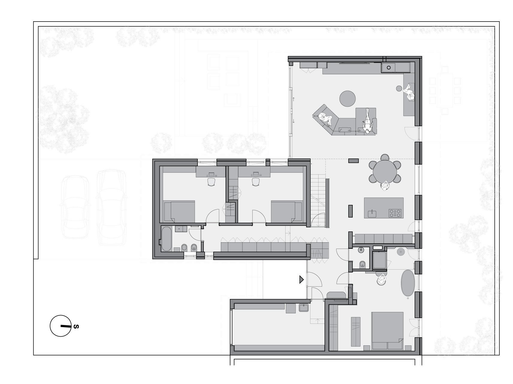
Hiša iz poznih sedemdesetih let je delo arhitekta Franca Kvaternika in ima dobro zasnovan tloris, ki je za sodobno družino zahteval le manjše prilagoditve. Omogoča delitev na cone dnevnega prostora s kuhinjo, trakta z otroškimi sobami ob atriju, umirjenega predela glavne spalnice ter hobi in delovne sobe v nadstropju.
Pogled po razmeroma ozkem hodniku usmeri ritem ponavljajočih se pretiranih okroglih ročajev garderobne omare, konča pa se v svetli dnevni sobi, ki preseneti s svojo višino – odpre se namreč do ostrešja z vidno leseno konstrukcijo. Fokusne točke sodobnih dnevnih sob so (hote ali nehote) vse večji televizorji, ki pozornost ujamejo, če so prižgani ali ne. Z vprašanjem, kako to veliko črno ploskev uravnotežiti z ostalimi elementi dnevne sobe, se je arhitektka soočila tudi v tem primeru; umestila ga je sicer v središče stene ob dnevnem prostoru, a je njegova prezenca uokvirjena z veliko srebrno sivo omaro na eni in kaminom, obloženim z naravnim kamnom, na drugi strani. Oblazinjena klop ob kaminu uporabniku omogoča, da dnevno sobo doživi še z druge perspektive, ne le obrnjen proti televizorju, in hkrati ustvarja središče družinskega življenja ob ognju.

Navdih pri izbiri materialov je arhitektka črpala iz originalne materialnosti iz sedemdesetih, med drugim tekstilnih oblog, ki so v novem kolažu uporabljene na različne načine. Stopnice v nadstropje so oblečene v mehko zeleno preprogo, ki vpija zvok ter ustvarja prijeten kotiček za sedenje; občutek domačnosti in udobja je v dnevni sobi potenciran z mehko preprogo; v spalnici pa je tekstil uporabljen na najbolj nenavaden način, kot pretirana žametasta stenska obloga, ki nasprotuje horizontalnosti velike vodne postelje in zavlada v prostoru. Kontrast mehkobi polkrožne obloge je ustvarjen z ortogonalno garderobno omaro ter kopalniško nišo, obloženo z gladkimi ploščicami in ogledali.
Nasprotje mehkim materialom dnevne sobe je ogledalna stena ob kuhinji iz okroglih toniranih ogledal v rožnati, bronasti ter sivi barvi, zloženih v tehniki intarzije.

Celoten interier sledi jasnemu oblikovalskemu konceptu, kjer vsi deli, čeprav po besedah arhitektke nekoliko čudaški in pretirani, tvorijo povezano celoto. Na vprašanje, če so pri oblikovanju razmišljali, kako bi pristopili, če bi želeli katerega od delov spremeniti, sta naročnika odgovorila negativno – s pomočjo arhitektke Tine Hočevar sta si namreč ustvarila dom za vse življenje.



Ime projekta: Prenova hiše v Dragomeru
Avtor projekta: Tina Hočevar
Lokacija: Dragomer
Leto načrtovanja: 2021
Leto izvedbe: 2024
Površine skupaj: 306 m²
Izvajalci:
Mizarstvo Susman s.p.
RPS d.o.o.
Steklarstvo Kresal d.o.o.
Meavista d.o.o.
Tapetništvo Kršinar s.p.
MIK Celje d.o.o.
Interrier d.o.o.
Foto: Mario Zupanov
Napisala: Neva Mandić



