Članek je bil objavljen v tiskani izdaji Outsider – november 2023.
Priznam: dokler si nisem šel ogledat prenovljenega skednja v Zgornje Gorje, nisem imel pojma, kaj pomeni »na petrah smo seno skladali«. Besedo petre boste zaman iskali v sodobnih slovarjih slovenskega jezika. Našli jo boste le v Pleterškovem slovensko-nemškem slovarju iz leta 1894. Petre so leseni odri za shranjevanje slame ali sena v hlevih in skednjih, mi je pojasnil tudi arhitekt Matej Gašperič, ki je tipičen gorenjski skedenj preuredil v stanovanjsko hišo in pri tem ohranil petre (seveda).
Ko so prišli naročniki do arhitekta, njihova želja niti ni bila prenova skednja, ampak novogradnja hiše v neposredni bližini na isti gradbeni parceli. Ko si je arhitekt lokacijo ogledal, pa je potencial zaznal prav v opuščenem skednju. Zakaj bi gradili na novo, če bi lahko uporabili odsluženo? Zakaj bi postavljali novo konstrukcijo, če ta že stoji? Zakaj ne bi ohranili peter, če te omogočajo veliko bolj zanimiv in prepleten prostor, kot če jih ni?

Tako se je začela večletna prenova, ki je sicer terjala večji angažma arhitekta, saj je nepredvidenih odkritij pri takšni prenovi bistveno več, kot če načrt nastaja na praznem papirju. Izhodiščna ideja je bila, da se izvorne prvine skednja ohranja v največji možni meri. Novo pa se doda čim bolj nevsiljivo, a se ga tudi ne skriva.
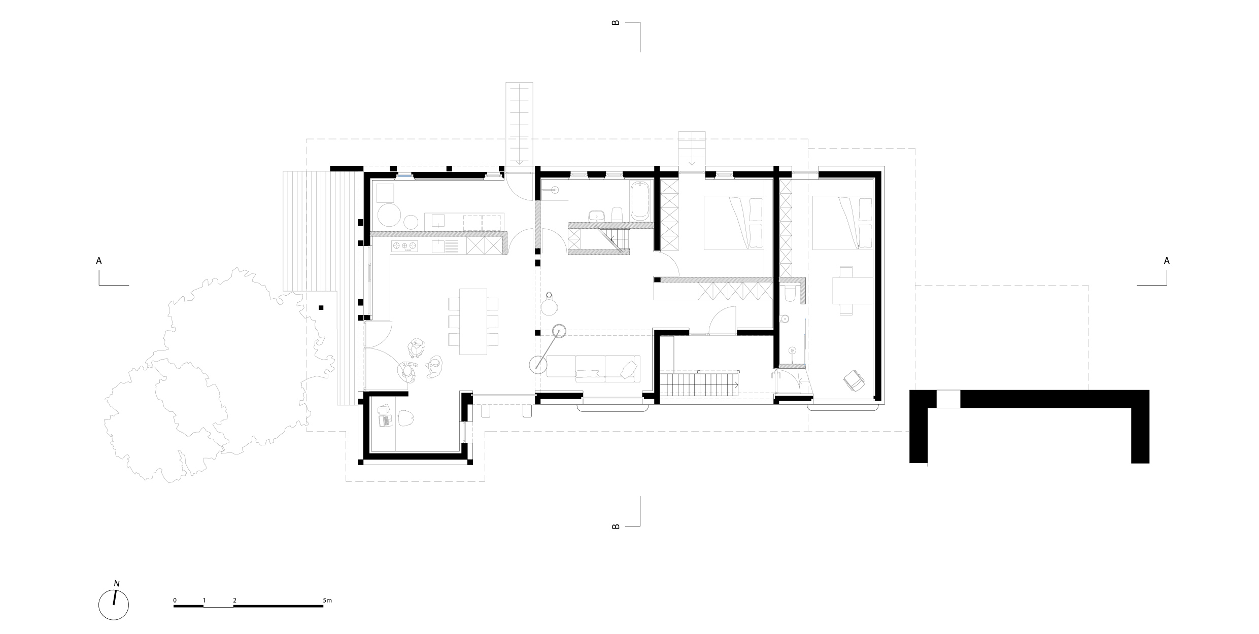
Skedenj je sestavljen iz dveh delov: kamnitega pritličja, ki je delno vkopano v teren, in lesenega nadstropja z mansardo, ki je bilo predmet prenove. Pritličje je ostalo nedotaknjeno. Opuščeni prostori hleva služijo kot skladišče krame, pomenljivo pripomni Matej Gašperič, ko mu povem, da bo tema nastajajoče številke prav krama. Ob tem poudari, da s kramo ne misli nič slabšalnega, ampak enostavno reči, ki jih nimamo kam drugam odložiti, vendar pa nikakor niso odvečne. Ob kamnitem pritličju se v nadstropje dvigujejo lesene stopnice. In tu se zgodba začne.

Ko je arhitekt prvič vstopil v skedenj, ga je fascinirala svetloba, ki prehaja v prostor skozi reže desk. Smrekove deske na fasadi so stare več desetletij in med tem so se dobro posušile in malo ukrivile. Tako je na prvi pogled povsem zaprt prostor osvetljen na prav poseben način. Dodaten svetlobni poudarek tvorijo kelihi, vrezani med deske. Ta svetlobni motiv je želel ohraniti, še več, nadgradil ga je v arhitekturno izjavo. Na ta način je tudi uspel obdržati zunanjost skoraj nedotaknjeno, notranjost pa svetlo in zračno.

Tlorisna zasnova je zelo jasna in enostavna. Spalni prostori so umeščeni v vzhodnem delu objekta. Sanitarije in kuhinja na severnem robu. Vse ostalo je horizontalni prosti tloris — in petre v prerezu. Ohranjene so vse kakovostne prvine skednja. Porušen je bil le prizidek na severni strani, ki je bil dograjen v drugi polovici prejšnjega stoletja in kompozicijsko ni ustrezal celoti.
Izolacija, parne zapore in parne ovire so dodane z notranje strani. Zunanje deske so fasadna zaščita, dodane so notranje deske, ki definirajo bivalni prostor. Les, les in les. Na tak način starodavnega skednja ni težko pretvoriti v sodobno bivališče z nizkoenergijskim standardom rabe energije. Predniki, ki so gradili te pragmatične strukture, si niso mogli zamisliti takšne tehnološke nadgradnje, a sama logika naravnega materiala omogoča trajnostno preobrazbo.

Če bi želeli najti ta skedenj, to ne bi bilo tako enostavno. Podobnih je v bližini namreč veliko. A ne le v okolici Bleda. Takšne skednje so gradili po celi Gorenjski pa tudi drugje. Najdemo jih na celotnem območju Slovenije. In pogosto so lastnikom v napoto. Ne tako redko jih porušijo in zgradijo sodobna generična skrpucala, čeprav je njihova konstrukcija še povsem zdrava. Morda pa bo podatek, da je prenova skednja v stanovanje približno tretjino cenejša, kot bi bila novogradnja, koga prepričal, da premisli glede potenciala prečudovitih lesenih objektov, ki so jih pragmatično in skrbno gradili naši predniki.
Ko sva z Matejem Gašperičem stala v mansardi skednja, mi je zaupal, da je posebno vesel, da je uspel ohraniti petre. Te namreč ponujajo prostorski preplet volumnov. Adolf Loos je tak preplet poimenoval raumplan, a veliko kasneje, ko je ta prostorski koncept že obstajal v preprostih slovenskih skednjih.













Ime projekta: Hiša za pet svobodnih duhov
Avtor projekta: Matej Gašperič, Biro Gašperič arhitektura
Lokacija: Zgornje Gorje
Leto načrtovanja: 2019-2020
Leto izvedbe: 2021-2023
Površine:
Pritličje: 111,8 m²
Mansarda: 42,2 m²
Klet: 51 m²
Parcela: 1309 m²
Pozidana površina: 160,9 m²
Projektanti:
Gradbene konstrukcije: Ciril Bogataj, Cibos d.o.o.
Elektro instalacije: Jakob Lovšin, Biro Lovšin d.o.o.
Strojne napeljave: Tomaž Kalan, Kalkem d.o.o.
Osvetlitev: Arcadia d.o.o.
Glavni izvajalec gradbeno-obrtniških del: Rok Razinger, TRAM d.o.o.
Foto: Miran Kambič
Napisal: Matevž Granda
Članek je bil prvič objavljen decembra 2023 v Outsider #36.



