Valldaura Labs je raziskovalni projekt pod okriljem IAAC (Institute for Advanced Architecture of Catalonia), ki proučuje samozadostne habitate kot potencial za razvoj krožne bioekonomije prihodnosti. Nahaja se na nekdanjem kmečkem posestvu znotraj naravnega parka Collserola, v zelenem srcu širšega metropolitanskega območja Barcelone. Nedaleč od kmečkega dvorca iz 19. stoletja, kjer je sedež raziskovalne ustanove, so nedavno v sodelovanju s proizvajalcem 3D-tiskalnikov WASP zgolj v sedmih tednih uspešno zgradili prototipski 3D-tiskani objekt iz ilovice, poimenovan TOVA, ki je prva tovrstna zgradba v Španiji.

Zgrajena je s tehnologijo namenskega arhitekturnega 3D-tiskalnika Crane WASP. Na področju 3d-tiskanja z zemljo sledi projektoma podjetja WASP GAIA iz leta 2018, prvi zgradbi te vrste, in TECLA iz leta 2021 (oba zgrajena v Italiji). Slednjega, ki je nastal v sodelovanju z arhitekturnim birojem Mario Cucinella Architects, smo predstavili tudi na naši spletni strani.

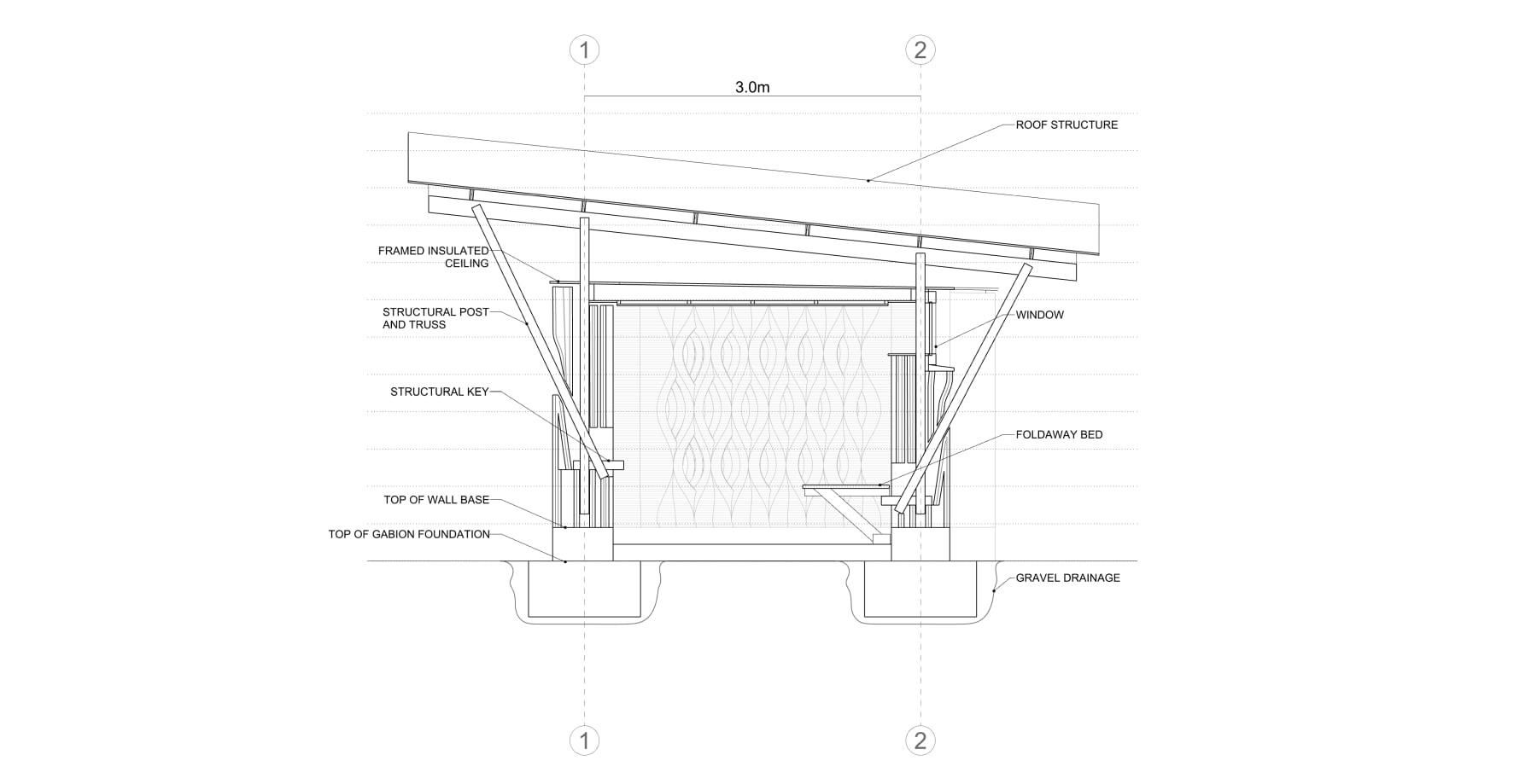
Osnovni material za zidove so pridobili v radiju le 50 metrov od lokacije gradnje. Edini dodatki so bili encimi in drugi aditivi, potrebni za zagotavljanje zadostne elastičnosti pri 3D-tiskanju. Odpornost materiala na vremenske vplive zagotavlja vodoodporen premaz iz surovih naravnih materialov, kot sta aloja in jajčni beljak.

Stene so zasnovane kot mreža izolativnih zračnih žepov, ki v poletnih mesecih varujejo hišo pred pregrevanjem, pozimi pa zmanjšujejo toplotne izgube. Temelji hiše so sestavljeni iz geopolimernega materiala, streha pa je preprosta lesena konstrukcija.

Projekt je sad dela skupine študentov in raziskovalcev podiplomskega programa 3D Printing Architecture (3dPA) ustanove IAAC. Zasnovan je bil kot prototip za trajnostno bivanje, ki bi ga lahko zgradili kjerkoli na svetu, in nakazuje nove poti za ustvarjanje bolj trajnostnih in cenovno dostopnih zgradb, ki so obenem prilagojene funkciji in lokaciji.

Gradnja zahteva samo lokalni material in delovno silo, ne povzroča gradbenih odpadkov, njen ogljični odtis pa je praktično ničen, zagotavljajo v IAAC. Kot še dodajajo, bi tovrsten sistem v prihodnosti lahko omogočil bolj zdravju in okolju prijazne stavbe, tako javne kot stanovanjske, obenem pa tudi bistveno hitrejšo gradnjo, kar bi lahko bilo bistvenega pomena v izrednih situacijah, kot so begunske krize in naravne katastrofe.



Video: povezava.






Ime projekta: TOVA
Projektni partnerji: Colette, WASP, UN-Habitat, BAC Engineering, LaSalle, Smart Citizen, Squares in Living Prototypes Research Innovation
Lokacija: Valldaura Labs, Collserola, Barcelona, Španija
Leto: 2022
Avtorji arhitekture: Ekipa IAAC (Edouard Cabay, Alexandre Dubor, Lili Tayefi, Vincent Huyghe, Ashkan Foroughi, Eduardo Chamorro Martin, Elisabetta Carnevale, Guillem Baraut, Gloria Font Basté, Nikol Kirova, Francesco Polvi, Bruno Ganem Coutinho, Marielena Papandreou in David Skaroupka)
Raziskovalci: dr. Adel Alatassi, Aslinur Taskin, Charles Musyoki, Deena El-Mahdy, Eugene Marais, Hendrik Benz, Juliana Rodriguez Torres, Leonardo Bin, Mariam Arwa, Al-Hachami, Marwa Abdelrahim, Mehdi Harrak, Michelle Bezik, Michelle Antonietta Isoldi Campinho, Mouad Laalou, Nareh, Khaloian Sarnaghi, Nawaal Saksouk, Orestis Pavlidis in Seni Boni Dara
Foto: Gregori Civera, IAAC
Pripravil: Luka Jerman
*
Vsebine, ki jih objavljamo na spletu, so drugačne od vsebin v tiskani reviji. Revija in splet imata ločeni uredniški zasnovi. Z naročilom revije podprete oboje, spletne in tiskane vsebine, in omogočite Outsiderjevo ustvarjanje na različnih kanalih.
Naročite se lahko v spletni trgovini ali pa nam pišite na: [email protected]
Hvala!



