Čez trg se vije pot, ki se ji v vegastem trikotniku priključi še druga. Ta pripelje s severa, da se prostor organsko zadebeli in ustvari šolski primer lynchevskega vozlišča.

Nezgrajena struktura prostora je bila jasno berljiva že prej, še preden se je leta 2014 materializirala in postala objekt s svojim lastnim karakterjem. Prisotna je bila v vsakdanjih tokovih pešcev, ki jim je korak nezavedno stekel čez trg, vedno vštric z obstoječo gradnjo na jugu.


Če so prišli s severa, is smeri zdraviliščnega kompleksa, pa jih je trg s svojo frontalnostjo upočasnil in jih postavil pred izbiro: levo ali desno?



Paviljon v Dobrni je bil na nek način tam, še preden so ga zgradili.


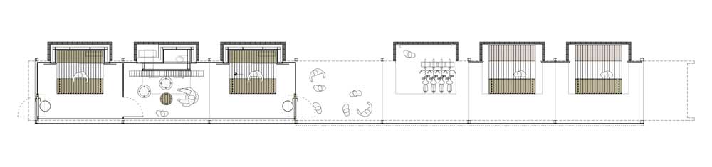
Sredi trga, umeščena med vse prepotrebne gradnike krajevnega središča – pošto, trgovino, gostilno – je kot prvi korak v celostni preureditvi novega centralnega trga zrasla podolgovata konstrukcija, ki nežno poudarja usmerjenost prostora. Vidna členjenost lamele omogoča, da jo lahko jemljemo kot homogen objekt ali pa kot serijo polzaprtih prostorov, namenjenih različnim dejavnostim. V njih bomo našli to, kar iščemo: informacije, turistično središče, lokalne izdelke in pridelke, izposojevalnico koles za bolj poglobljeno raziskovanje kraja. Po eni izmed daljših stranic se lamela zapira z opečnim hrbtom, na katerem se s pozornostjo do detajla izrisujejo vzorci, po drugi pa se skoz zastekljeno in odprto fasado objekt razliva čez trg in ga tako v celoti jemlje za svojega.


Paviljon v Dobrni je objekt, za katerega se zdi, da je tam že od nekdaj, da ni postavljen v prostor temveč iz prostora. Verjetno je to tisto, čemur se lahko, malce slovesno in nekoliko sramežljivo, reče dobra arhitektura.




Napisala: Ajda Bračič
PODATKI O PROJEKTU
Ime projekta: Dobrna paviljon
Investitor: Občina Dobrna
Fotograf: Miran Kambič
Lokacija: Dobrna
Leto načrtovanja: 2010-11
Leto izvedbe: 2014
Pozidana površina : 95m2
Gradbene konstrukcije: RC PLAN M
Elektro instalacije: MM BIRO
Strojne napeljave: MM BIRO
Z naročilom revije Outsider podprete nastajanje kakovostnih, neodvisnih vsebin o prostorski kulturi, tako na spletu kot v tiskani ediciji. Pozor: tiskana revija Outsider in spletni magazin staging.outsider.si se razlikujeta!



