Trebelno je spomeniško zaščitena vas na Dolenjskem. Naselje stoji na vrhu enega izmed gričev valovite pokrajine, s cerkvico v središču. Do lanskega leta je pod vrhom stala majhna, sedaj pa nekoliko večja podružnična osnovna šola z vrtcem. Glavna pridobitev prejšnjega leta pa je velika telovadnica ob šoli.

Umestitev prostornega športnega centra v vaško morfologijo je izredno dobro premišljena. Volumen kljub svoji velikosti ne zmoti zgodovinske podobe vasi in je v celoti umeščen pod višje ležeče zgradbe. Temu pripomorejo natančno določeni nakloni streh, ki sledijo topografiji terena. Na ta način veduta cerkve na vrhu griča ostaja prostorska dominanta in orientir.

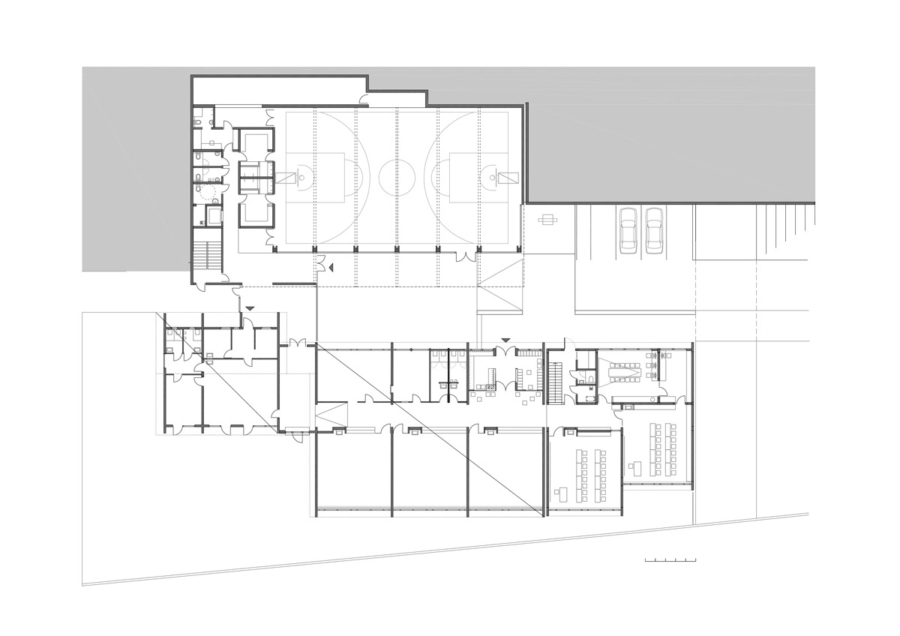
Projekt učinkovito rešuje prostorsko stisko osnovne šole. Poleg dodatnega prostora v prizidku sta arhitektki skozi prenovo optimizirali obstoječ objekt. Hodnik, ki je prej služil kot telovadnica in jedilnica v enem, je sedaj spremenjen v neobremenjen prostor srečevanja s po meri narejeno opremo. Organizacija športnega objekta je projektirana na način, da se telovadnica lahko uporablja tudi izven časa pouka za namen izvenšolskih aktivnosti in drugih prireditev. V nadstropju je šola pridobila knjižnični prostor. Arhitektki sta uredili tudi celotno okolico, ki je sedaj otrokom prijaznejša in bolj varna, svoje urejeno mesto pa je dobil tudi spomenik kiparja Draga Tršarja, ki je stal na parceli.

Športna dvorana na Trebelnem je še ena v vrsti številnih izjemnih arhitekturnih projektov šolskih telovadnic, ki smo jim priča v zadnjem času. Izjemnih predvsem zato, ker so ti projekti več kot le šolske telovadnice. Občine se končno spopadajo z večletno prostorsko stisko mnogih slovenskih šol; ti projekti skozi uspešno sodelovanje arhitektov z naročniki pogosto pripomorejo ne le h kvaliteti pouka, temveč tudi h kvaliteti življenja v naselju skozi povezovanje skupnosti. Včasih je namreč za to potrebna le ena dobro izvedena arhitektura.




Ime projekta: Športni center Trebelno in dozidava šole
Avtor projekta: Mojca Gregorski, Martina Ferfila
Investitor: Občina Mokronog Trebelno
Fotograf: Miran Kambič
Lokacija: Trebelno
Leto načrtovanja: 2017
Leto izvedbe: 2018
Površine: Pritličje in nadstropje: 980m2 (športni center) + 227m2 (dozidava šole)
Projektanti: Arhitektura: KONTRA arhitekti d.o.o., projektantska ekipa: Mojca Gregorski, udia, Martina ferfila, udia, Samo Kralj, mia, Žiga Misjak, udia (grafika), Sanel Muranovič, mia (prostorski prikazi)
Gradbene konstrukcije: Proding d.o.o.
Elektro instalacije: TE biro d.o.o.
Strojne napeljave: Emineo d.o.o.
PHPP: Simon Brlek
Izvajalci: Glavni izvajalec gradbeno obrtniških del: CGP gradnje d.o.o. in Marles hiše Maribor d.o.o.
Besedilo: Gaja Golob
Članek je bil objavljen v Outsider #20




